


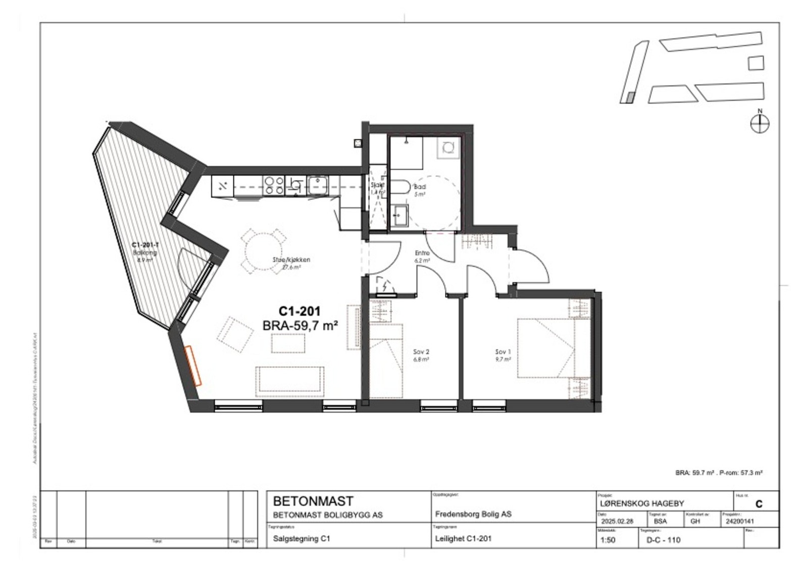
Velkommen til visning i Bjarne Haugens gate 47 - En lys og romslig 3-roms hjørneleilighet fra 2025.
Salgsoppgaven beskriver vesentlig og lovpålagt informasjon om eiendommen
Se komplett salgsoppgave
Bjarne Haugens gate 47
på annonsen
prisantydning per kvadratmeter
Pris per m² ligger 5 733 kr over snittet for leiligheter i Lørenskog.
Grafen viser antall leiligheter solgt i Lørenskog siste året fordelt på pris per m² - totalt 925 leiligheter
Antall boliger
Kvadratmeterpris tilsvarer prisantydning pluss fellesgjeld per kvadratmeter (p-rom eller BRA-i). Prisene i grafen er avrundet til nærmeste 1000 kr.










| FINN-kode | 449197643 |
|---|---|
| Sist endret | 26. feb. 2026 10:54 |
| Referanse | 199260003 |
Annonsene kan være mangelfulle i forhold til lovpålagt opplysningsplikt. Før bindende avtale inngås oppfordres interessenter til å innhente komplett informasjon fra meglerforetaket, selger eller utleier.