Bildegalleri

- EiendomsMegler 1 v/Sondre Jakobsen ønsker hjertelig velkommen til en flott familiebolig med utleiedel i Medkila! Foto: H5
Medkila
Romslig familiebolig med godkjent 3-roms utleiedel | Dobbelgarasje | 5 soverom | Attraktivt område
Prisantydning5 990 000 kr
Nøkkelinfo
- Boligtype
- Enebolig
- Eieform
- Eier (Selveier)
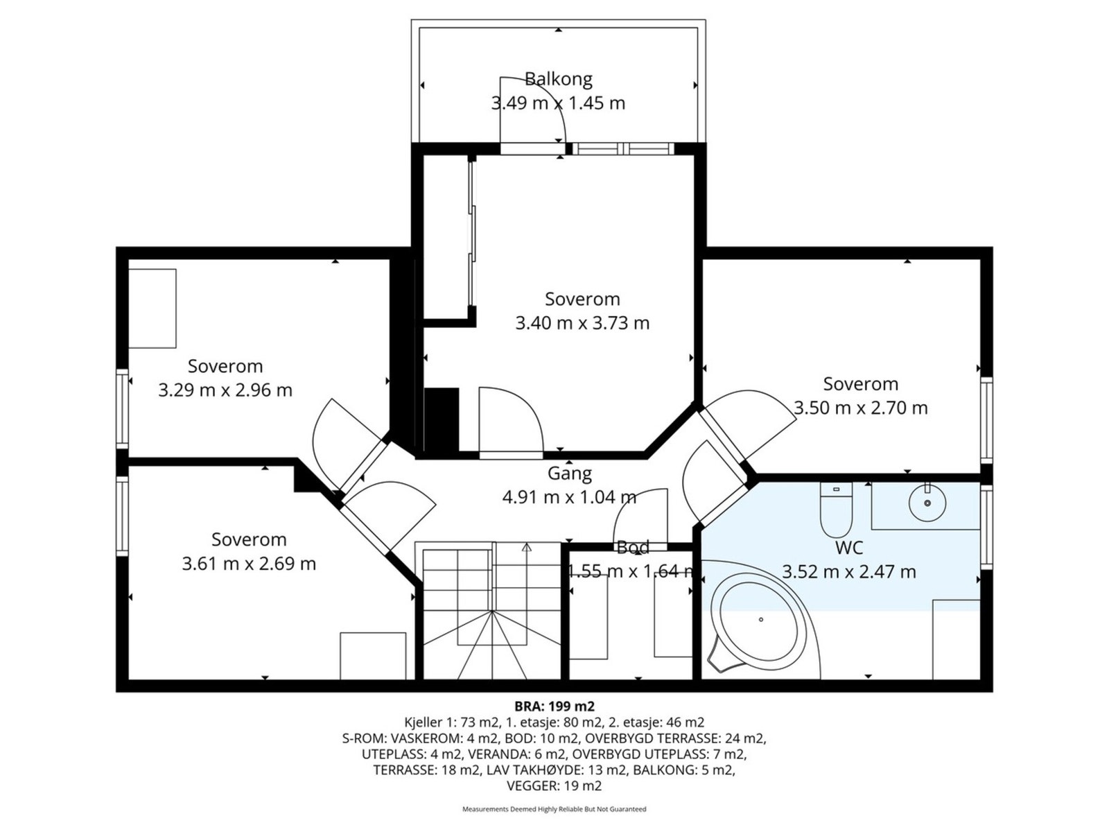
- Soverom
- 7
- Internt bruksareal
- 198 m² (BRA-i)
- Bruksareal
- 234 m²
- Eksternt bruksareal
- 36 m² (BRA-e)
- Balkong/Terrasse
- 63 m² (TBA)
- Byggeår
- 2003
- Energimerking
- C - Oransje
- Rom
- 8
- Tomteareal
- 1 019 m² (eiet)
Fasiliteter
Barnevennlig
Balkong/Terrasse
Garasje/P-plass
Kabel-TV
Offentlig vann/kloakk
Peis/Ildsted
Utsikt
Bredbåndstilknytning
Moderne
Rolig
Visning
mandag, 09. februar
17:00 – 18:00
Alle våre visninger har påmelding. Dette for at vi kan planlegge visningene best mulig, og ha god tid til de som kommer. Det er enkelt å melde seg på, og du kan like enkelt melde deg av. Visninger uten påmeldte deltakere kan bli avlyst.
Om boligen
EiendomsMegler 1 v/Sondre Jakobsen ønsker velkommen til Gartneriveien 16 - en innholdsrik og moderne familiebolig med attraktiv og barnevennlig beliggenhet.
Gode grunner til å møte opp på visning:
Gode grunner til å møte opp på visning:
- Parkering i romslig garasje
- Attraktiv beliggenhet i et stille og rolig nabolag med nærhet til Medkila skole, barnehage, dagligvarehandel, Krafthallen og fine turområder
- Godkjent utleiedel i underetasje som genererer kr 10.350,- pr mnd i skattefrie inntekter
- Nyoppusset delikat kjøkken fra 2024 med integrerte hvitevarer
- 2 flislagte bad i hoveddel fra byggeår
- 5 soverom i hoveddel + 2 soverom i utleiedel
Ønsker dere med dette hjertelig velkommen til visning!
NB: Knappen for å vise hele beskrivelsen har kun en visuell effekt.
NB: Knappen for å vise hele beskrivelsen har kun en visuell effekt.
Salgsoppgaven beskriver vesentlig og lovpålagt informasjon om eiendommen
Se komplett salgsoppgaveNyttige lenker
Nærområdet
EiendomsMegler 1 Harstad
Vi loser deg trygt gjennom hele boligsalget
Annonsene kan være mangelfulle i forhold til lovpålagt opplysningsplikt. Før bindende avtale inngås oppfordres interessenter til å innhente komplett informasjon fra meglerforetaket, selger eller utleier.





























