Bildegalleri

Velkommen til Gymes vei 32 i attraktive Sandeåsen, presentert av Eiendomsmegler 1 ved Jesper Snekkestad!
Enebolig m/alt på ett plan og underetasje | Solrik tomt | Sentralt i rolig gate i attraktive Sandeåsen | Supersentralt!
Nøkkelinfo
- Boligtype
- Enebolig
- Eieform
- Eier (Selveier)
- Soverom
- 3
- Internt bruksareal
- 222 m² (BRA-i)
- Bruksareal
- 252 m²
- Eksternt bruksareal
- 30 m² (BRA-e)
- Balkong/Terrasse
- 28 m² (TBA)
- Byggeår
- 1976
- Energimerking
- E - Oransje
- Rom
- 17
- Tomteareal
- 769 m² (eiet)
Fasiliteter
Visning
Beliggenhet
VELKOMMEN TIL GYMES VEI 32 I ROLIG VILLAGATE I SENTRALE OG ATTRAKTIVE SANDEÅSEN:
Velkommen til Gymes vei 32 og denne flotte eiendommen med usjenert og rolig beliggenhet med kort avstand til det aller meste og drøye 2 kilometer til Tønsberg sentrum.
Eiendommen ligger i gate fri for gjennomgangstrafikk og dermed både skjermet og rolig. Dette er en ypperlig eiendom for alle aldersgrupper. Huset er stort nok for barne-/ungdomsfamilier, men passer like godt for de hvor barna allerede har flyttet ut med sin lettstelte og romslige bebyggelse med alt på ett plan på grunnplanet i 1. etasje.
I den usjenerte og flott opparbeidede hagen, kan man finne en rekke lune og solrike plasser å sitte. I tillegg til en godt skjermet og solrik hovedterrasse mot syd, er det også anlagt uteplass på baksiden av huset i tillegg til soveromsbalkong. Hekkbeplantning, prydbusker og trær gjør tomten svært usjenert.
Eiendommen er velholdt og gir et fint helhetsinntrykk så vel inne som ute. Lyse farger og godt med vindusflater gjør at oppholdsrommene i 1. etasje oppleves som lyse og trivelige. Huset byr blant annet på en trivelig stue-/spisestue, TV-stue i delvis adskilt sone, et moderne kjøkken med spiseplass og ny innredning fra 2020, tre soverom, entre og gang, baderom med dusjnisje/wc, vaskerom/grovkjøkken og ekstra toalettrom i 1. etasje. Boligen har også en romslig underetasje med god takhøyde som byr på godt med plass. Flere av rommene i underetasjen er innredet, men det må gjøres enkelte tiltak for at disse skal være godkjent som rom til varig opphold (se egen beskrivelse).
Familiens kjøretøy plasseres trygt og godt i praktisk garasje og på eiendommens gårdsplass.
På vegne av eier og Eiendomsmegler 1 ved Jesper Snekkestad ønskes det velkommen til visning!
FREMTREDENDE EGENSKAPER VED EIENDOMMEN:
º Ypperlig sted for barn og unge med gode oppvekstvilkår
º Trafikkstille, barnevennlig og svært skjermet villagate
º Kort gangavstand til barneskole, barnehage og forretninger
º Flotte tur-/rekreasjonsområder i nærmiljøet
º Velstelt bolighus over to etasjer med alt på ett plan i 1. etasje
º Selveiertomt på 768 m² med gode solforhold
º Planløsning som passer for alle aldersgrupper
º Romslig stue med flere "avdelinger"
º Nytt kjøkken i 2020
º Tre soverom i første etasje og mulighet for flere soverom i underetasje
º Flislagt baderom oppusset på 1990-tallet
º Separat vaskerom/grovkjøkken
º Gjestetoalettrom i tilknytning til entrè i 1. etasje
º Innholdsrik underetasje med både innvendig og utvendig inngang
º Rikelig med bodplass og arbeidsrom i underetasjen
º Skjermede og flotte uteplasser med fine solforhold
º Frittstående garasje
º Oppvarming med blant annet peis og varmepumpe
º En herlig og rolig beliggende eiendom
º Kun drøye 2 km til Tønsberg sentrum
º Ingen boplikt!
BELIGGENHET:
Boligen ligger i et sentralt, svært populært og barnevennlig boligområde i Sandesåsen. Et supert villaområde for alle aldersgrupper, og ikke minst attraktivt for de med barn og unge med tanke på gode oppvekstvilkår og kort vei til skoler, barnehager og fritidsaktiviteter. Huset ligger i en trafikkstille og svært skjermet gate uten gjennomgangstrafikk.
Sandeåsen er et sentralt knutepunkt som gir deg enkel tilgang til opplevelser som beriker hverdagen. Her bor man også bynært. Det er drøye 2 km til Tønsberg sentrum. Det er gang-/sykkelsti på hele denne strekningen fra Gauterødveien, så for mange ligger Norges eldste by innen kort sykkelavstand. Det er gode bussforbindelser med hyppige avganger til/fra Tønsberg sentrum med bussholdeplass ved Olsrød park. Det er ca. 3 km til Tønsberg jernbanestasjon.
Sandeåsen barneskole ligger kun ca. 400 meter fra huset. Presterød ungdomsskole ligger kun 12-13 minutter unna til fots (1.4 km).
Man bor kun noen hundre meter fra Olsrød park med diverse forretninger og servicetilbud i bygget. Handelssenteret rommer bl.a. Rema1000-dagligvareforretning med post-i-butikk, legesenter, apotek, frisørsalong, cafè, bank, helsekostforretning, eget "mini-/surdeigsbakeri" med mer. I tillegg har senteret kanskje Vestfold sitt flotteste treningssenter (Level) med blant annet badeanlegg m/innendørs svømmebasseng i kombinasjon med et stort trenings-/velværesenter. Det er også kort vei til Kiwi-dagligvare på Gauterød.
For den som er glad i å ferdes ved sjøen, finner i en kjøreavstand på 3-4 minutter bl.a. flotte strender på Ringshaug, Furustrand og Klopp. Her finner du også en rekke småbåthavner som fører deg rett ut til den vakre Tønsberg-/Nøtterøy-/Tjømeskjærgården. Vallø båthavn, Vestfolds største småbåthavn, ligger en kort sykkeltur fra området.
Området ligger ca. 100 km fra Oslo og har enkel adkomst til E 18 med tilførselsveien i Kjelletunnelen fra Kilen. E-18 fra Tønsberg til Oslo har firefelts motorvei hele veien, noe som gjør at kjøreturen fra Jarlsø til Oslo gjøres unna på drøye timen! Utmerket kommunikasjonstilbud både med buss til Tønsberg sentrum og togforbindelse fra Tønsberg jernbanestasjon. Det er kort gangavstand til bussholdeplass. Til Torp Flyplass er det ca. 25 minutter med bil som ved normale ruteavganger har daglige flyvninger til en rekke Europeiske byer. Det nye dobbeltsporet på Vestfoldbanen fram til Tønsberg antas å være klart til bruk i 2026. Det planlegges da fire tog i timen mellom Tønsberg og Oslo-regionen, samen en reisetid på under en time.
Se for øvrig vedlagte nabolagsprofil som beskriver området fasiliteter og avstander til disse.
Innhold
Boligen er oppført over to innholdsrike etasjeplan. En ypperlig familiebolig for alle aldersgrupper. Man har alt man trenger på ett-plan, i tillegg har hjemmet flere muligheter for underetasjen i tillegg til svært godt med bodplass.
Huset byr på en arealeffektiv og fleksibel planløsning hvor inndelingen er som følger:
1. ETASJE (BRA-i 118 m²):
Noe overbygget/inntrukket INNGANGSPARTI med trapp opp fra eiendommens gårdsplass.
ENTRÈ med tilknyttet GJESTERTOALETTROM.
GANG med lukket trappegang til hjemmets underetasje. Herfra der det nedtrekkbar villetrapp til delvis gulvet lagringsloft.
Innholdsrik og lys STUE-/SPISESTUE med flere "avdelinger", peis og skyvedør ut til hage og terrasse mot syd.
TV-STUE i delvis åpen løsning med stue-/spisestuen.
KJØKKEN med spiseplass og ny innredning fra 2020.
VASKEROM/GROVKJØKKEN med inngang fra hjemmets kjøkken og utgang til hagen i nord.
Flislagt BADEROM med blant annet baderomsinnredning med både over-/underskap, toalett og dusj med skyvedører.
TRE SOVEROM plassert samlet i hjemmets ende mot nord-øst-syd. Fra et av soverommene er det utgang til østvendt soveromsbalkong.
SOVE-/BADEROMSGANG som leder inn til samtlige soverom og baderommet.
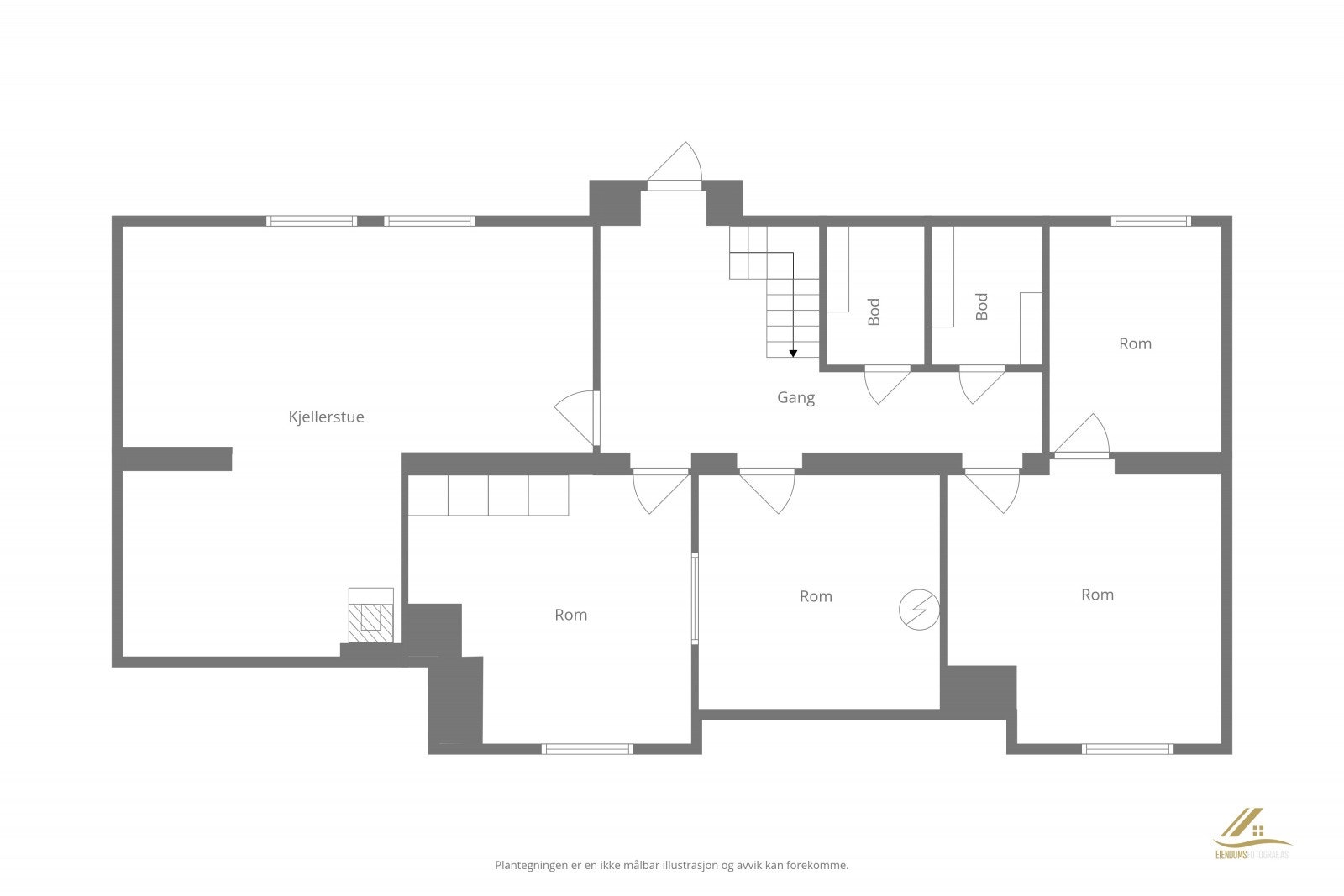
UNDERETASJE (BRA-i 104 m²):
Denne etasjen har tilkomst fra innvendig trappenedgang i tillegg til utvendig trappegang.
HALL/GANG med trappeløp til 1. etasje og utgang til hagen i nord.
Romslig KJELLERSTUE med peisovn og god plass til flere møbelgrupper *)
To innredede rom som benyttes i dag som KONTOR og GJESTEROM *)
BOD/TEKNISK ROM med blant annet innlagt vann og gulvsluk.
TRE BODER hvorav den største av disse har kjellervindu mot nord.
GARASJE (BRA-e 30 m²:
Garasjen er strategisk plassert i terrenget, i front av huset og ved asfaltert gårdsplass Plasseringen gir kort gangvei frem til husets hovedinngangsdør. Denne er oppført i 1980 med innvendig betongstøpt gulvdekke med murte oppkanter. Det er innlagt lys og strømuttak. Garasje har en bod i bakkant og i tillegg til elektrisk garasjeport av lakkert stål/aluminium er det inngangsdør i front av bygningen. Det er i tillegg sideinngang i bakkant av garasjen som leder inn til bodarealet. Garasjen har valmet tak som er tekket med betongtakstein - med andre ord i samme bygningsstil som huset.
TERRASSER OG UTEPLASSER:
Eiendommen ligger svært solrikt med flotte lysforhold fra tidlig morgen til godt ut på kvelden. Dette gjenspeiles i eiendommens terrasseløsninger og utemiljø.
Hovedterrassen ligger orientert mot syd, langs fronten av huset. Denne ca. 19 m² skjermende uteplassen med flislagt dekke, plassert godt opp fra hageterrenget, blir nærmest som en "ekstra stue" i sommerhalvåret. Det er plass for både sittegruppe, loungemøbler og sone for utekjøkken/grilling - perfekt utformet for både rolige stunder og sosiale samlinger med familien og venner. Uteplassen har adkomst både via fra hagen og skyvedør i stue-/spisestue i 1. etasje. Terrassen er godt skjermet av murte sidevegg, gjerde og ikke minst av av planter og trær på tomten. Terrassemarkise dekker deler av uteplassen og denne i kombinasjon av delvis overbygg gjør at man kan oppholde seg på hovedterrassen også på dager med litt "duskregn".
Luftebalkongen ut for soverommene strekker seg langt husets endevegg mot syd. Balkongen har tredekke, er på ca. 9 m² og rekkverk av tre og takutstikk gir overdekning. Adkomsten er fra hovedsoverommet.
På baksiden av huset er det anlagt en stor, flislagt uteplass i terrenget. Denne er sammenføyet med en tilsvarende gangpassasje på vestsiden av huset.
PLANSKISSER:
Vedlagt følger planskisser som illustrerer inndelingen av boligen. Denne er kun ment for å gi et innblikk hva angår rominndeling og muligheter i boligen og er ikke å anse som noen eksakt plantegning. Garasjen er ikke illustrert.
* Kjellerstuen, kontor og gjesterommet mangler godkjennelse hos kommunen for den aktuelle bruken som oppholdsrom da rommene har krav til større vindusflater/rømningsmuligheter for bruk som rom til varig opphold. Rommene har for små vinduer til å fungere som godkjente rømningsveier slik forholdene er i dag. Ved kommunal godkjenning av kjelleretasjen (gitt januar 2026) er rommene tegnet inn som stue og to soverom ovenfor kommunen, men det er stilt betingelser for godkjenning av disse rommene til denne bruken. Se punktet "ferdigattest" for ytterligere beskrivelse av dette forholdet.
Tomt
Eiendommen har et solrikt, skjermet og pent opparbeidet hageanlegg med god boltreplass for store og små. Det forholdsvis flate hageterrenget gir gode uteoppholdsarealer og innbyr til alt fra lek og moro for barn til store familie-/venneselskap.
Hagen er skjermet av hekkbeplatning, trær/vegetasjon og noe levegg som skaper en privat og skjermet atmosfære.
Gårdsplassen ved garasjen er asfaltert for lettvint vedlikehold.
For beskrivelse av tomtens grenselinjer; se situasjonskart og matrikkelkart som følger av vedlegg til salgsoppgaven.
Bebyggelse
Enebolig med frittstående garasje
Byggemåte
Boligens byggemåte beskrives på forenklet vis som følger.
GENERELT:
Eiendommen består av en enebolig opplyst oppført i 1976, og frittstående garasje.
YTTERVEGGER:
Veggene har bindingsverkskonstruksjon fra byggeår. Fasade har stående bordkledning av treverk.
YTTERTAK:
Taktekkingen er av betongtakstein. Takkonstruksjonen har valmet tak med W-takstoler i tre. Undertak av rupanel. Renner og nedløp i aluminium.
GRUNNMUR/FUNDAMENT.
Grunnmur i betongblokker. Støpt gulv på grunn i kjeller.
VINDUER OG DØRER:
Huset har malte trevinduer med 2-lags glass. Enkelte vinduer er skiftet ut etter byggeår.
Boligen har videre malt hovedytterdør, malt balkongdør i tre, skyvebalkongdør i malt tre og enkel kjellerdør med glass i tre.
ØVRIG:
Etasjeskiller er av trebjelkelag. Boligen har uisolert kryploft med luketilkomst fra gang. Huset har elementpipe, helbeslått over tak.
Beskrivelsen er basert på utarbeidet tilstandsrapport. Se for øvrig denne rapporten for mer inngående beskrivelse. Opplysningene i dette avsnittet er hentet fra tilstandsrapport utført på eiendommen. Opplistingen over er ikke uttømmende og du oppfordres til å lese og sette deg grundig inn i tilstandsrapporten, som ligger vedlagt i salgsoppgaven.
Standard
Boligen er velholdt og preges av et godt og helhetlig materialvalg hvor eiendommen er jevnlig påkostet og modernisert. Innvendig er det gjennomgående lyst og innbydende fargevalg og hjemmet gir et fint helhetsinntrykk.
Beskrivelse av de ulike rom og installasjoner er som følger:
GULVFLATER:
Det er enstavs eikeparkettgulv i TV-stuen, i stue-/spisestuen og i gangen i 1. etasje. Parkettgulvet er utskiftet i nyere tid. Utstrakt bruk av eikelister langs gulvene skaper en fin helhet til tregulvene. På kjøkkenet, på alle tre soverom, på gjestetoalettrom, i entre og i sove-/baderomsgangen er det parkettlaminat. Blant annet på kjøkkenet, på ett av soverommene og i entreèn er det enstavs gulv. På baderommet og på vaskerommet er det flislagte gulv.
De fleste innrede rom i underetasjen har tregulv med unntak av blant annet kjellerstuen som har parkettlaminat og gang/hall som har flislagt gulv.
INNERVEGGER OG HIMLINGER:
På vegger er det i det vesentlige malt tapet i rommene i 1. etasje. Etasjen er malt i lyse farger som gir en fin helhetsopplevelse. Det er innslag av malt trepanel, blant annet på kjøkkenet, i gang og på ett av soverommene. På bad og vaskerom er vegger flislagt. Det er i det vesentlige hvitbehandlet trepanel i de innredede rommene i underetasjen. Kjellerstuen har også malte innervegger.
I himlinger er det hvitmalte himlingsplater i de fleste rommene 1. etasje med unntak av blant annet på de to største soverommene hvor det er malt på det ene rommet og ubehandlet trepanel på det andre. Det er malt trepanel på baderommet og ubehandlet trepanel i himlingen på vaskerommet. I underetasjen er det i det vesentlige trepanel i himlingene.
DEN LYSE STUE-/SPISESTUEN MED UTGANG TIL TERRASSE:
Stuen er romslig og møbleringsvennlig - et lyst og flott rom som sammen med TV-stuen har vinkelløsning som skaper flere soner innenfor ett og samme oppholdsrom. Rommets størrelse og utforming muliggjør fleksible møbleringsmuligheter hvor det er plass til ulike møbelgrupper, både sofa-/loungmøbler og plass for spisestuebord. Ved spisestuedelen kan man plassere et godt langbord og dekke på til venne-/familieselskap. Ut for spisestuen leder skyvedøren deg ut til den solfylte og usjenerte terrassen mot syd. Dette er et åpent og lyst rom hvor det er godt med vinduer og store lysåpninger orientert mot både syd og nord som slipper inn godt med naturlig lys. Vinduene gir også en fin nærkontakt med både hagen og terrassen. Peisen med innsatsovn gir deilig varme på mørke vinterkvelder. Tross gode vindusflater er det godt med veggplass å møblere mot. Varmepumpen i rommet sørger for ekstra god og energiøkonomisk varme i vinterhalvåret samt mulighet for svaling av rommet på hete sommerdager.
DEN DELVIS ÅPNE TV-STUEN:
TV-stuen ligger i en fin sammenheng med øvrig del av stuen i 1. etasje. Det er god plass til sofa-/loungemøbler. Murveggen (bak peisen i stue-/spisestuen) er sannsynligvis den mest naturlige sonen å plassere hjemmets TV ved. Vinduer mot hagen i syd slipper inn rikelig med dagslys til rommet. Helhetsfølelsen med øvrige stuer i etasjen understrekes for øvrig av identisk materialbruk og valg av farger hvor blant annet enstavs eikeparkettgulvet gir et solid helhetsinntrykk!
KJØKKENET MED SPISEPLASS OG NY INNREDING FRA 2020:
Vinduet i dette rommet vender ut mot nord, og under dette er det en hyggelig spiseplass. Kjøkkenet har lettvint tilkomst til stuene og har en Innholdsrik og pent tilpasset kjøkkeninnredning fra Ikea som er nytt fra 2020. Innredning i hvit profil utførelse hvor det godt med skap- og benkeplass. Innredningen byr blandt annet på detaljer som noe bruk av praktiske kolonialskuffer, praktisk hjørnerondell, innslag av glassdører i høyskap og dempere på på skuffer og dørknekter. L-løsningen sørger for god benkeplass, og de mørke laminatbenkeplatene gir en fin kontrast til den lyse innredningen. Fliser mellom over-/underskap sørger for å beskytte sonen mellom over-/underskapene. Belysning skjult bak lyslister under overskap gir godt med lys til benkeplatene. Alle overskap er ført helt opp til taket. Alt av hvitevarer er integrert; Heltintegrert oppvaskmaskin, nedfelt steketopp (induksjon) i benkeplate og stekeovn i underskap og helintegrert kjøleskap. Over stekesonen er det skjult ventilator integrert i overskap. Det er installert water-stop system. Med vaskerom/grovkjøkken på innsiden av rommet er avstanden kort til eventuelt ekstra kjøle-/fryseskap hvis behov.
ENTRÈ MED TILKNYTTET TOALETTROM OG GANG:
Entrèen og gangen ligger i en fin sammenheng med hverandre. Entreèn byr på noe anhengsplass, mens det i gangen er plass til garderobeskapsmøbler hvor klær og skotøy kan ryddes pent vekk. Fra gangen er det inngang til lukket trappegang som leder ned til underetasjen. Den nyere hovedinngangsdøren er utstyrt med vindusglass som slipper inn dagslys til entreèn. Den noe inntrukne og overbygde bygningskroppen ved inngangspartiet skjermer ytterdøren for vind og nedbør. Gjestetoalettrommet sørger for at hjemmet har to toaletter i 1. etasje. Dette rommet er utstyrt med sokkeltoalett, vegghengt håndvask og vindu med skjermingsglass mot syd.
BADEROMMET:
Baderommet er pusset opp på 1990-tallet hvor det er lagt nye fliser på gulvet og nye fliser på vegger. Gulvflisene er lagt over eksisterende gulvbelegg. Det er varmekabler i gulvet med unntak av i dusjsonen, grunnet tidligere badekar som var plassert i denne sonen. Baderomsinnredningen er utskiftet i nyere tid. Vinduet mot syd sørger for innslipp av naturlig lys. Innerst på badet er det en raus dusjsone med nisje av glidedører av herdet glass. Baderomsinnredningen, med overliggende helstøpt servantbenk, har to brede kolonialskuffer med god oppbevaringsplass. Over denne er det 3-dørs speilskap med LED-bar. Ytterst på badet er det sokkeltoalett.
VASKEROM/GROVKJØKKEN MED UTGANG:
Vaskerommet har inngang fra kjøkkenet og kan hvis ønskelig også kombineres som et praktisk grovkjøkken til hjemmet. Varmekabler under det flislagte gulvet gir god varme til rommet og den utskiftende utgangsdøren gir lettvint adkomst til hagen på nordsiden av huset. Vaskerommet har god plass både vaskemaskin, tørketrommel og hvis ønskelig ekstra hvitevarer som for eksempel kjøleskap og fryseskap. Det er installert veggmontert vaskekum av stål og noe skapinnredning med oppbevaringsplass i over/underskap i det ene hjørnet av rommet.
TRE SOVEROM OG SOVE-/BADEROMSGANG i 1. ETASJE:
Det er dør mellom husets gang og sove-/baderomsgang som skjermer soveromsavdelingen i 1. etasje. Fra sove-/baderomsgangen er det inngang til alle tre soverom i 1. etasje. I tillegg er det inngang til baderommet.
Hovedsoverommet ligger på hushjørnet mot nord-øst. Dette har vindu mot nord og balkongdør på østveggen som leder ut til luftebalkongen. 3-dørs takhøy og plassbygget skyvedørsgarderobe sørger for god oppbevaringsplass. Rommet har plass for dobbeltseng hvis ønskelig.
Soverom 2 i 1. etasje har også godt med garderobeskap. På samme vis som på hovedsoverommet sørger nemlig takhøy 3-dørs skyvedørsgarderobe for god klesoppbevaringsplass. Rommet, som for øvrig har vindu mot syd, har god plass for kleskommoder eller tilsvarende møbler i tillegg til plass for dobbeltseng.
Soverom 3 er etasjens minste soverom. Vinduet i rommet vender ut mot hagen i nord. Det er ikke installert gardeobeskap, men det er plass til både skap og enkeltseng i rommet.
ROMMENE I UNDERETASJEN:
Hallen i underetasjen har varmekabler under det flislagte gulvet. Dette romslige rommet har leder inn til de fleste rommene i etasjen. I tillegg er det trapp opp til 1. etasje og utgang til utendørs trappeløp ut til hagen på nordsiden av huset.
Den romslige kjellerstuen med vedovn og de to øvrige innredede rommene som i dag benyttes som gjesterom og kontor har blant annet ikke tilstrekkelig vindusflater/rømningsmuligheter, noe som må besørges av nye eiere for å få rommene godkjent som rom til varig opphold. Dette er nærmere beskrevet i punktet "ferdigattest". Hjemmet har videre rikelig med oppbevaringsplass i praktiske boder i underetasjen.
ØVRIG:
* Takstein er takfornyet for noe år siden (renset og malt)
* Malte og ubehandlede fyllingsdører.
* Det medfølger en nyere robotgressklipper fra Segway
* 230V elektrisk anlegg med 50A hovedsikring
* Innmat i sikringskap (automatsikringer) er skiftet ut etter byggeår
* Innvendige vannledninger er av kobber.
* Stoppekran er plassert i rom med sluk i kjeller.
* Det er avløpsrør av plast.
* Boligen har naturlig ventilasjon.
* Varmtvannstanken er på ca. 200 liter
* Innlagt fibernett fra Altibox - Viken fiber
Se for øvrig tilstandsrapport for ytterligere beskrivelser.
TILSTANDSRAPPORT OG TILSTANDSGRADER:
Det foreligger en tilstandsrapport fra Ståle Brattestå som er sertifisert takstingeniør.
En tilstandsrapport er en utvidet teknisk rapport utarbeidet av en autorisert takstmann. Tilstandsrapporten, hvor innholdet i denne er regulert i egen forskrift, gir en vurdering og beskrivelse av eiendommens byggverk og bygningsdeler som takstmannen har observert, og som normalt vil være av betydning ved salg av eiendommen. Den bygningssakkyndige undersøker rom og bygningsdeler slik det kommer frem av Forskrift til avhendingsloven. Rapporten fremhever vanligvis ikke positive egenskaper ved boligen. Det er opp til selger å avgjøre hvorvidt det skal innhentes slik rapport eller ikke ved salg av eiendom. Både tilstandsrapport og selgers egenerklæringsskjema følger som vedlegg til salgsoppgaven for denne eiendommen.
Følgende tre forhold har fått TG 3 :
1) DØR TIL KJELLER:
Dør til kjeller har begynnende fuktskader på terskel. Det er ikke synlig blekk eller annen type tetning i bunn av terskel
Konsekvens/tiltak:
- Det bør etableres tilfredsstillende tetting eller beslag i bunn av terskelen for å hindre videre fuktskader.
- Dersom tiltak ikke iverksettes, kan fuktskader forverres og føre til råte eller behov for utskifting av dør.
Kostnadsestimat: 10 000 - 50 000
2) VASKEROM I 1. ETASJE:
Hulltaking er foretatt uten å påvise unormale forhold. Hulltaking er foretatt i trapperom i vegg bak vaskemaskin.
Våtrommet må oppgraderes for å tåle normal bruk etter dagens krav. Våtrommet er fra før 1997 og skal vurderes til tilstandsgrad 3 (TG3) på grunn av alder og manglende dokumentasjon på utførelse i henhold til dagens krav.
Kostnadsestimat: 100 000 - 300 000
3) BADEROM I 1. ETASJE:
Hulltaking er foretatt uten å påvise unormale forhold. Hulltaking er foretatt i toalettrom i vegg bak dusj..
Våtrommet er fra før 1997 og skal vurderes til tilstandsgrad 3 (TG3) på grunn av alder og manglende dokumentasjon på utførelse i henhold til dagens krav.
Våtrommet må oppgraderes for å tåle normal bruk etter dagens krav.
Det opplyses at det en gang er lagt flis på vegger og gulv, hvor belegg fra byggeår ble beholdt som membran.
Enkelte fuger på gulv i dusj er oppsprukne og utvaskede.
Det er vindu i våtsone i dusj.
Gulvet er tilnærmet flatt. Det kan ikke påvises membranoppkant ved dørterskel.
Kostnadsestimat: 100 000 - 300 000
Konsekvens av avvikene og tiltak for å lukke avvikene finnes i tilstandsrapporten.
TG 2 vurderingene som er gitt for eiendommen er relatert til forhold knyttet til innvendig forhold med kommentarer til overflater, etasjeskille/gulv mot grunnen, radon, pipe/ildsted, rom under terreng, innvendige trapper, toalettrom og innvendige dører. For utvendig forhold er vurderingene relatert til taktekking, nedløp/beslag, veggkonstruksjon, vinduer og dører. For tekniske forhold er vurderingene relatert til avløpsrør, varmtvannstank og vannledninger. For tomteforhold er vurderingene relatert til utvendige vann-/avløpsledninger, grunnmur/fundamenter, fuktsikring/drenering og terrengforhold. Opplysningene i dette avsnittet er hentet fra tilstandsrapport utført på eiendommen og beskrivelsen av forholdene er inngående beskrevet i denne.
Opplistingen over tilstandsvurderingene er ikke uttømmende og du oppfordres til å lese og sette deg grundig inn i tilstandsrapporten, som ligger vedlagt i salgsoppgaven.
Oppvarming
Oppvarming med luft-til-luft varmepumpe, ved og elektrisitet.
Elektrisk oppvarming med panelovner/opplegg for panelovner i enkelte rom. Det er varmekabler i enkelte rom, se beskrivelse i punktet "standard".
Boligen har elementpipe hvor det er tilkoblet vedovn og peis med innsats.
Dersom beboelsesrom ikke har vegg- eller fastmonterte varmekilder ved visning følger dette heller ikke med.
Brannvesenet hadde sist tilsyn med fyringsanlegget den 08.04.2025 og siste feiing ble utført 10.02.2022.
Det ble under tilsynet ikke avdekket avvik ved anlegget og det foreligger ingen påbud om utbedring.
Energimerking
Denne bolig er energimerket. På en skala fra A til G, der A er best, har denne bolig oppnådd E. Kopi av energiattest ligger vedlagt i salgsoppgaven.
Radonmåling
Det er ikke utført radonmåling og det er heller ikke krav til dette med mindre boligen leies ut. Kjøper overtar eiendommen slik og er selv ansvarlig for å utføre eventuelle tiltak. For mer informasjon vedrørende radon se www.dsa.no.
Adkomst
For veibeskrivelse henvises det til vedlagte kart i salgsoppgaven.
Det vil bli skiltet med EiendomsMegler 1 skilt ved fellesvisning.
Parkering
Det er parkering på egen eiendom, i garasje og på gårdsplass.
Offentlig kommunikasjon
For mer informasjon ang. offentlig kommunikasjon, se vedlagt Nabolagsprofil.
Boligselgerforsikring
Selgeren har kjøpt boligselgerforsikring fra Fremtind forsikring. Forsikringen dekker selgerens økonomiske ansvar hvis du oppdager feil eller mangler som omfattes av avhendingsloven. Forsikringen gjelder fra kjøpers overtagelse av eiendommen og varer i fem år. I tillegg dekker forsikringen perioden mellom budaksept og overtagelse begrenset til 12 måneder. Forsikringsdekningen er begrenset til salgssum, maksimalt 14 millioner kroner. For kombinasjonseiendommer gjelder forsikringen kun for boligdelen. Se nettsidene til Sparebank 1 for mer informasjon om hva forsikringen dekker og hvilke begrensninger som gjelder.
Overtakelse
Overtagelse etter nærmere avtale med selger. Vær vennlig å angi ønsket overtagelsesdato i vedlagte budskjema.
Sentrale lover
Eiendommen selges etter reglene i avhendingsloven.
Salgsoppgaven er basert på de opplysningene selger har gitt til bygningssakkyndig og megler, samt opplysninger innhentet fra kommunen, Statens kartverk og andre tilgjengelige kilder.
Eiendommen skal overleveres kjøper i tråd med det som er avtalt. Det er viktig at kjøper setter seg grundig inn i alle salgsdokumentene, herunder salgsoppgave, tilstandsrapport og selgers egenerklæring. Kjøper anses kjent med forhold som er tydelig beskrevet i salgsdokumentene. Forhold som er beskrevet i salgsdokumentene kan ikke påberopes som mangler. Dette gjelder uavhengig av om kjøper har lest dokumentene.
Alle interessenter oppfordres til å undersøke eiendommen nøye, gjerne sammen med fagkyndig før bud inngis. Kjøper som velger å kjøpe usett kan ikke gjøre gjeldende som mangel noe han burde blitt kjent med ved undersøkelsen. Dersom det er behov for avklaringer, anbefaler vi at kjøper rådfører seg med eiendomsmegler eller en bygningssakyndig før det legges inn bud.
Dersom kjøper ikke er forbruker selges eiendommen som den er , og selgers ansvar er da begrenset jf.avhendingsloven § 3-9 1. ledd 2. pkt.
Informasjon om kjøpers undersøkelsesplikt, herunder oppfordringen om å undersøke eiendommen nøye, gjelder også for kjøpere som ikke anses som forbrukere.
På grunn av ulike avtalevilkår kan selger vurdere bud fra en som ikke er forbruker, ulikt fra en forbrukers bud. Dersom kjøper ikke er forbruker, er selger sitt mulige mangelsansvar begrenset fordi eiendommen selges "som den er". Selger kan ikke ta som den er forbehold ovenfor en forbrukerkjøper. Selv et lavere bud fra en som ikke er forbruker kan foretrekkes fordi begrensningen i mulig mangelsansvar kan ha egenverdi for selger. Selger står fritt til å forkaste eller akseptere ethvert bud, og er for eksempel ikke forpliktet til å akseptere høyeste bud. Budgivere får informasjon dersom andre bud er inngitt av en som ikke er forbruker.
Forbrukerkjøp - definisjon Med forbrukerkjøp menes kjøp av eiendom når kjøperen er en fysisk person som ikke hovedsakelig handler som ledd i næringsvirksomhet.
Forbruker avtalevilkår Eiendommen har en mangel dersom den ikke er i samsvar med kravene som følger av avtalen, eller det foreligger brudd på bestemmelsene i avhendingsloven §§ 3-2 til 3-8. Hvis eiendommen ikke er i samsvar med det kjøperen må kunne forvente ut ifra alder, type og synlig tilstand, kan det være grunnlag for mangelskrav. Det samme gjelder hvis det er holdt tilbake eller gitt uriktige opplysninger om eiendommen. Dette gjelder likevel bare dersom man kan gå ut ifra at det virket inn på avtalen at opplysningen ikke ble gitt eller at feil uriktige opplysninger ikke blir rettet i tide på en tydelig måte.
En bolig som har blitt brukt i en viss tid, har vanligvis blitt utsatt for slitasje og skader kan ha oppstått. Slik bruksslitasje må kjøper regne med, og det kan avdekkes enkelte forhold etter overtakelse som nødvendiggjør utbedringer. Normal slitasje og skader som nødvendiggjør utbedring, er innenfor hva kjøper må forvente og vil ikke utgjøre en mangel.
Boligen kan ha en mangel etter avhendingsloven § 3-3 dersom det er avvik mellom opplyst og faktisk innvendig areal, forutsatt at avviket er på 2% eller mer og minimum 1 kvm. Ved beregning av et eventuelt prisavslag eller erstatning må kjøper selv dekke tap/kostnader opptil et beløp på kr 10 000 (egenandel).
Ikke-forbruker (næringsdrivende) definisjon Dersom kjøper er en juridisk person, eller en fysisk person som hovedsakelig handler som ledd i næringsvirksomhet, vil kjøpet ikke anses som et forbrukerkjøp.
Ikke-forbruker avtalevilkår Eiendommen har en mangel dersom den ikke er i samsvar med kravene som følger av avtalen. Eiendommen selges som den er , og selgers ansvar utover det konkret avtalte er da begrenset etter avhendingsloven § 3-9, første ledd andre setning. Avhendingsloven § 3-3 andre ledd fravikes, og hvorvidt boligens arealsvikt utgjør en mangel vurderes etter avhendingsloven § 3-8.
En forutsetning for salget er at skjøtet for eiendommen tinglyses på kjøper. Interessenter og kjøper må godta at selger og megler bruker elektronisk kommunikasjon i salgsprosessen.
I tråd med eiendomsmeglingsforskriften vil informasjon om oppdragsgiver, salgsobjektet, interessenter og kjøper bli lagret av meglerforetaket i min. 10 år. Se em1.no for mer informasjon om vår behandling av personopplysninger.
Adgang til utleie
Boligen har en boenhet - den har ingen separat boenhet utover denne.
Bolig med en boenhet som fritt kan leies ut i sin helhet. Deler av boligen kan også leies ut, forutsatt at det er en del av boligens godkjente hoveddel med rom godkjent for varig opphold og at den utleide delen ikke er adskilt som en selvstendig boenhet.
Ferdigattest / Brukstillatelse
Det er utstedt ferdigattest den 19.04.1978 på opprinnelig enebolig med kjeller etter godkjenning merket sak 204/76.
At slike tillatelser/ attester eksisterer gir ingen garanti for at det ikke senere er utført arbeider som ikke er byggemeldt/godkjent.
Det foreligger godkjente bygningstegninger, men disse stemmer ikke overens med dagens bruk. Det er følgende avvik fra godkjente tegninger til dagens bruk:
- Tegninger fra kommunens arkiv er lagt til grunn ved vurdering av boligens lovlige arealer.
- Det foreligger ikke tegninger som viser planløsningen i kjeller etasjen. Beskrivelsen av rommene er basert på faktisk bruk på tidspunkt for befaring.
Avvik fra byggemeldte tegninger:
-1. etasje: Ett rom er navngitt som klesrom i bygningstegninger, rommet er per i dag et soverom.
- Kjeller: Boligen er tegnet uten kjeller. Kjeller er innredet i ettertid uten at dette er søkt om. Innredning av kjeller og bruksendring av areal fra tilleggsdel til hoveddel er søknadspliktig.
Det er i etterkant av befaringen levert inn ett-trinns søknad om underbygging/kjeller til enebolig. Søknaden er godkjent av Tønsberg kommune 23.01.2026.
Som kjøper må man være klar over at man overtar ansvaret for følgende:
- Det MÅ søkes ferdigattest/midlertidig brukstillatelse før tiltaket kan tas i bruk.
- Det er viktig å merke seg at tillatelsens varighet er 3 år etter at den er gitt (utløper 23.01.2029). Det samme gjelder hvis tiltaket innstilles i mer enn 2 år. Disse bestemmelser gjelder tilsvarende for dispensasjon.
- Sitat fra tillatelse til tiltak:
"Tiltaket kan ikke tas i bruk før ferdigattest/midlertidig brukstillatelse foreligger. Dette kan utstedes etter skriftlig anmodning fra ansvarlig søker.
Før det kan gis ferdigattest, må det foreligge dokumentasjon på at forskriftsmessig krav til rømning i kjelleretasjen og tilfredsstillende tilgang på daglys i rom for varig opphold er ivaretatt i form av en kontrollerklæring fra et uavhengig kontrollerende foretak. Tegninger (plan og fasade) som viser rømningsvinduenes funksjon og størrelse skal vedlegges anmodning om ferdigattest. Evt. avvik fra gjeldende bygningstekniske forskrift (TEK17) må være dokumentert lukket for at ferdigattest skal kunne utstedes".
- Utvendig kjellernedgang er nærmere nabogrense enn 4 meter. Her er det i forbindelse med søknad om tillatelse til kjeller innhentet nabosamtykke til kjellernedgang.
Det anbefales å sette seg godt inn i tillatelsen fra Tønsberg kommune, og hva som må utføres i kjeller før anmodning om ferdigattest for kjelleren da dette er kjøpers ansvar.
I følge ansvarshavende søker, Ståle Brattestå, er det uttalt at følgende må utføres før ferdigattest for tiltak i underetasjen kan utstedes:
- Det må graves ut større lysgraver og settes inn større vinduer i de rommene man må ha ekstra rømningsvei og/eller mere dagslys jfr. Tek17.
- Eventuelle avvik fra Tek17 må være lukket, eller søkt unntak fra krav jfr. Tek17 §1-2 pkt. 8.
Det foreligger godkjent byggemelding av garasje bod og tegninger merket sak 489/81 fra 1981, som stemmer med dagens bruk.
Hvitvaskingsregelverk
Eiendomsmeglere er underlagt lov om hvitvasking og er forpliktet til å rapportere til Økokrim om mistenkelige transaksjoner. Lov om hvitvasking innehar også strenge regler om kontroll av legitimasjon fra alle parter i handelen, herunder, selger, kjøper og fullmektiger for disse.
Budgivning
Forbrukerinformasjon om budgivning er vedlagt salgsoppgaven.
Megler kan ikke formidle bud med kortere akseptfrist enn klokken 12:00 første virkedag etter siste annonserte visning, dersom selger er forbruker. Det kan hende at fristene for å akseptere bud blir kortere etter hvert som det kommer inn nye bud. Det er budgiver som setter fristen for når et bud må være akseptert og denne fristen er absolutt. Det betyr at selger må akseptere budet og kjøper må ha mottatt aksepten innen fristens utløp. Dersom du legger inn bud tett opp mot akseptfristen, er det en reell fare for at eiendommen blir solgt før budet når frem til megler.
Megler er forpliktet til å legge til rette for en forsvarlig avvikling av budrunden, og for at budene skal kunne bli behandlet og videreformidlet skriftlig til alle involverte parter, må ethvert bud ha en tilstrekkelig lang akseptfrist. Bud og eventuelle budforhøyelser bør derfor ha akseptfrist på minimum 30 minutter fra budet inngis.
Husk å ringe til megler etter du har sendt et bud eller budforhøyelse, for å forsikre deg om at budet er mottatt av megler. Megler tar ikke ansvar for forsinkelser på el- eller telenettet, eller andre tekniske feil.
Alle bud og budforhøyelser med eventuelle forbehold, opplysning om finansiering og ønsket overtakelse, skal sendes skriftlig til megler.
Megler kan ikke formidle bud med forbehold om at budet eller forbehold i budet (hemmelige bud og/eller hemmelige forbehold) skal holdes skjult for andre budgivere og interessenter.
Megler skal sende skriftlig varsel om bud og budforhøyelser, som kan formidles, til budgiver, selger og interessenter. Når et bud aksepteres, skal megler sende skriftlig beskjed om det til både budgiver og selger.
Megler skal kontrollere budgivers finansiering før handel inngås. Dersom slik kontroll ikke lar seg gjennomføre, skal selger motta skriftlig informasjon om dette, og mulige konsekvenser. Dersom megler ikke får kontrollert budgivers finansiering, kan det derfor medføre at en annen budgiver også en med lavere bud anbefales overfor selger.
For å legge inn bud kan du enkelt legge inn bud via EiendomsMegler 1s gi bud -knapp i nettannonsen, eller benytte budskjema, elektronisk budgivning, skannet budskjema sendt på e-post eller annen godkjent skriftlig metode.
Skal du legge inn bud må du legitimere deg med kopi av legitimasjon og signatur. Kravet til legitimasjon og signatur er oppfylt dersom budgiver benytter e-signatur, for eksempel BankID.
Ta en prat med megler om hvordan du legger inn bud.
Det gjøres oppmerksom på at utskrift av budjournal, iflg. forskrift til Lov om eiendomsmegling, vil bli gitt til kjøper og selger av eiendommen etter at handelen er kommet i stand. Øvrige budgivere kan få utlevert kopi av budjournalen i anonymisert form.
Dersom selger ikke er forbruker, vil bestemmelsen om at megler ikke kan formidle bud med kortere akseptfrist enn kl 12 første virkedag etter siste annonserte visning, ikke gjelde.
Vedlegg til salgsoppgaven
- Tilstandsrapport
- Selgers egenerklæring
- Energimerking
- Opplysninger fra kommunen
Diverse
EiendomsMegler 1 Sørøst-Norge AS
-et foretak i SpareBank 1 Sør-Norge konsernet
Meglerforetaket mottar en fast godtgjørelse i form av markedsbidrag fra SpareBank 1 (morselskap) i forbindelse med markedsføring av banken i salgsoppgaven.
Regulering
Gjeldende regulering:
Kommuneplan:
Eiendommen er avsatt til:
- Boligbebyggelse - Nåværende
- Hensynssone Ras- og skredfare
i kommuneplan: Kommuneplanens arealdel 2023 - 2035 vedtatt 03.04.2024
Regulering under arbeid:
Det er ikke igangsatt planleggingsarbeid på et område som inkluderer/berører eiendommen.
Planforslag:
Det eksisterer ikke planforslag som berører eiendommen.
Kopi av kartutsnitt, oversiktskart VA og kommuneplankart ligger vedlagt i salgsoppgaven.
Kommuneplanen med utfyllende bestemmelser og retningslinjer kan fås ved henvendelse til megler. Vi oppfordrer interessenter til å gjøre seg kjent med disse.
Områdeanalysen er vedlagt i salgsoppgaven.
Salgsoppgaven beskriver vesentlig og lovpålagt informasjon om eiendommen
Se komplett salgsoppgaveNyttige lenker
Nærområdet
EiendomsMegler 1 Tønsberg
Annonseinformasjon
| FINN-kode | 449179321 |
|---|---|
| Sist endret | 09. feb. 2026 07:24 |
| Referanse | 2871250096 |
Annonsene kan være mangelfulle i forhold til lovpålagt opplysningsplikt. Før bindende avtale inngås oppfordres interessenter til å innhente komplett informasjon fra meglerforetaket, selger eller utleier.


















































































