Bildegalleri

Velkommen til Njords veg 28 A, presentert av Johannes Tømmerås!
Nardo
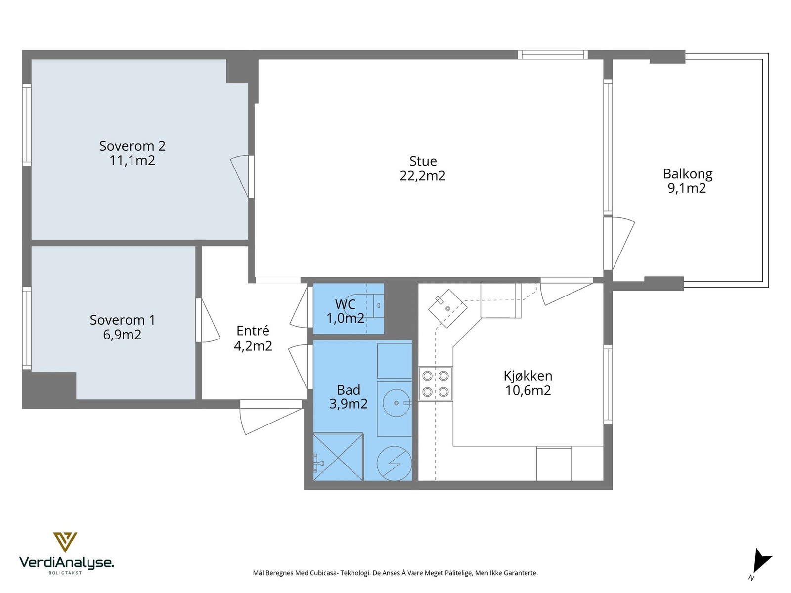
FLOTT 3-ROMS I 3.ETG I POPULÆRT BORETTSLAG. Vestvendt balkong med glimrende solforhold. 2 boder. Renovert BRL. P-plass*
Prisantydning2 700 000 kr
Nøkkelinfo
- Boligtype
- Leilighet
- Eieform
- Andel
- Soverom
- 2
- Internt bruksareal
- 63 m² (BRA-i)
- Bruksareal
- 73 m²
- Eksternt bruksareal
- 10 m² (BRA-e)
- Balkong/Terrasse
- 9 m² (TBA)
- Etasje
- 3
- Byggeår
- 1966
- Energimerking
- D - Gul
- Rom
- 3
- Tomteareal
- 28 048 m² (eiet)
Visning
mandag, 09. februar
16:00 – 16:45
Våre visninger har påmelding. Dette gjør vi for å kunne yte bedre service for våre kunder. Verdifullt for boligkjøper og for oss. Vi anbefaler at salgsoppgaven lastes ned digitalt før visning, og ring oss gjerne på forhånd for spørsmål om boligen. Passer ikke angitt tidspunkt, ta kontakt så finner vi en løsning. Skulle det mot formodning ikke være påmeldte til angitt visningstidspunkt vil ikke visning bli gjennomført.
Om boligen
Velkommen til Njords veg 28 A, presentert av Johannes Tømmerås. Flott 3-roms i et veldrevet og populært borettslag.
Kvaliteter vi ønsker å fremheve:
- 2 gode soverom
- God planløsning
- Romslig stue med flere møbleringsmuligheter
- Vestvendt balkong med gode solforhold
- Balansert ventilasjon som gir et godt inneklima
- 2 boder for lagringsplass
- Felleskostnadene inkluderer bl.a kabel-TV, internett og kommunale avgifter, avdrag og renter m.m
- Muligheter for utvendig parkeringsplass og garasje
- Ingen dok.avgift
- Sykkelparkering
Bygget ble i 2017/2018 utvendig renovert hvor følgende ble gjort:
- Etterisolering
- Nye vinduer og balkongdør
- Nytt ventilasjonsanlegg
- Nye garasjer og sykkelparkering under tak
- Oppgradering av balkonger
- Det ble etablert ladepunkter for EL-biler i 2020
Velkommen til en hyggelig visning!
Kvaliteter vi ønsker å fremheve:
- 2 gode soverom
- God planløsning
- Romslig stue med flere møbleringsmuligheter
- Vestvendt balkong med gode solforhold
- Balansert ventilasjon som gir et godt inneklima
- 2 boder for lagringsplass
- Felleskostnadene inkluderer bl.a kabel-TV, internett og kommunale avgifter, avdrag og renter m.m
- Muligheter for utvendig parkeringsplass og garasje
- Ingen dok.avgift
- Sykkelparkering
Bygget ble i 2017/2018 utvendig renovert hvor følgende ble gjort:
- Etterisolering
- Nye vinduer og balkongdør
- Nytt ventilasjonsanlegg
- Nye garasjer og sykkelparkering under tak
- Oppgradering av balkonger
- Det ble etablert ladepunkter for EL-biler i 2020
Velkommen til en hyggelig visning!
NB: Knappen for å vise hele beskrivelsen har kun en visuell effekt.
NB: Knappen for å vise hele beskrivelsen har kun en visuell effekt.
Salgsoppgaven beskriver vesentlig og lovpålagt informasjon om eiendommen
Se komplett salgsoppgaveNyttige lenker
Nærområdet
EiendomsMegler 1 Lerkendal
Vi loser deg trygt gjennom hele boligsalget
Annonseinformasjon
| FINN-kode | 449172681 |
|---|---|
| Sist endret | 02. feb. 2026 11:18 |
| Referanse | 37260001 |
Annonsene kan være mangelfulle i forhold til lovpålagt opplysningsplikt. Før bindende avtale inngås oppfordres interessenter til å innhente komplett informasjon fra meglerforetaket, selger eller utleier.


































