Bildegalleri

Velkommen til Nyanlegget 14! Foto tatt av Haukdal v/Interiørfoto.
Enebolig med eiertomt. Dobbelgarasje med hems. Fint boligområde på Bjørnli.
Prisantydning1 590 000 kr
Nøkkelinfo
- Boligtype
- Enebolig
- Eieform
- Eier (Selveier)
- Soverom
- 2
- Internt bruksareal
- 144 m² (BRA-i)
- Bruksareal
- 191 m²
- Eksternt bruksareal
- 47 m² (BRA-e)
- Balkong/Terrasse
- 12 m² (TBA)
- Etasje
- 3
- Byggeår
- 1920
- Tomteareal
- 1 033 m² (eiet)
Visning
torsdag, 12. februar
16:00 – 17:00
Ved annonsert visning er det viktig at du melder deg på visningen ved å bruke visningspåmeldingsknappen eller kontakter megler. Annonserte visninger hvor det ikke er noen påmeldte innen kl. 16.00 dagen før visningsdagen vil ikke bli avholdt.
For visninger utover dette, ta direkte kontakt med megler.
VisningspåmeldingOm boligen
Bjørnli er et idyllisk område bestående av stort sett eldre småhusbebyggelse fra gruvetiden på Løkken. Det er ca. 4 km til Løkken sentrum. Her har man butikker, skole, bank/forsikring m.m. På Bjørnli har man nyere barnehage på Vemyrstoppen. Det er skoleskyss til Løkken (Montessori skole) og til felles skole i Meldal.
Boligen er tilbygget på 1980-tallet. Badet er oppgradert i ca. 2007, dobbelgarasje fra ca. 1998. Taktekke, kledning og fleste vinduer ble skiftet i ca. 1980. Pusset opp kjøkken og skiftet flere gulv i nyere tid samt malt rom.
1. et: Vindfang, bad, stue, kjøkken og gang.
2. et: Gang og 2 soverom (garderoberom på det ene soverommet). Utgang til luftebalkong som er overbygd. Lager i knekott.
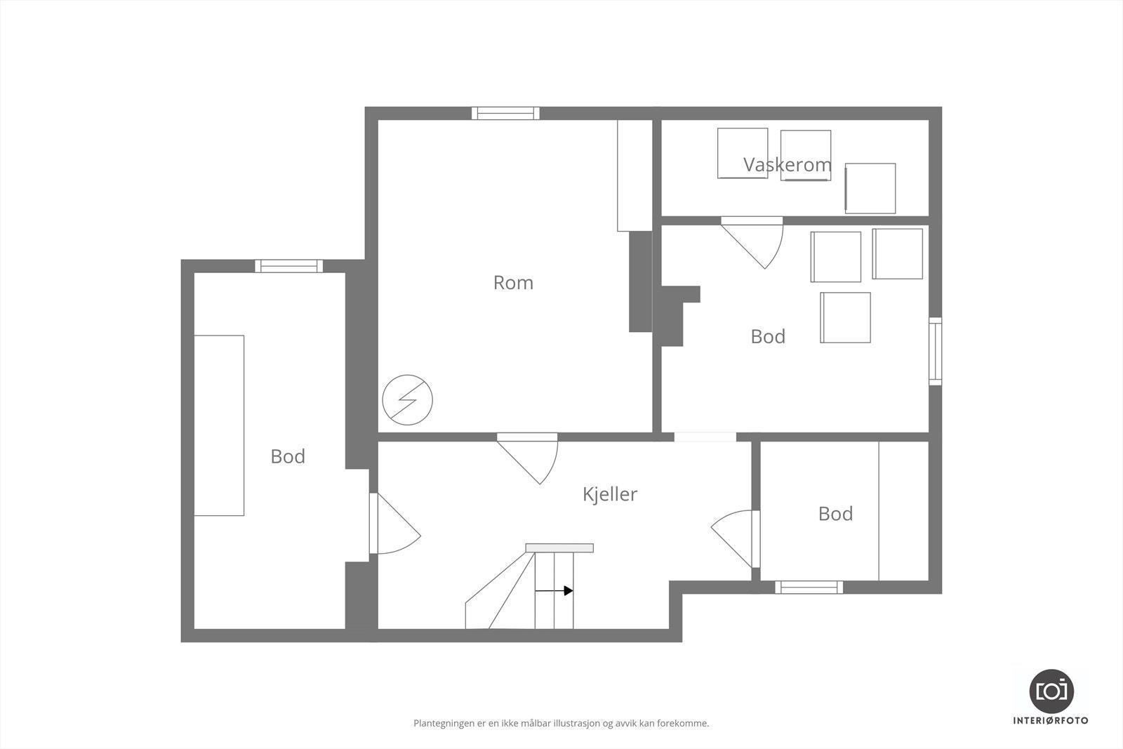
Kjeller: Vedbod, 3 boder og vaskekjeller.
Dobbelgarasje med hems.
Boligen er tilbygget på 1980-tallet. Badet er oppgradert i ca. 2007, dobbelgarasje fra ca. 1998. Taktekke, kledning og fleste vinduer ble skiftet i ca. 1980. Pusset opp kjøkken og skiftet flere gulv i nyere tid samt malt rom.
1. et: Vindfang, bad, stue, kjøkken og gang.
2. et: Gang og 2 soverom (garderoberom på det ene soverommet). Utgang til luftebalkong som er overbygd. Lager i knekott.
Kjeller: Vedbod, 3 boder og vaskekjeller.
Dobbelgarasje med hems.
NB: Knappen for å vise hele beskrivelsen har kun en visuell effekt.
NB: Knappen for å vise hele beskrivelsen har kun en visuell effekt.
Salgsoppgaven beskriver vesentlig og lovpålagt informasjon om eiendommen
Se komplett salgsoppgaveNærområdet
Aktiv Orkla
Annonseinformasjon
| FINN-kode | 449171007 |
|---|---|
| Sist endret | 02. feb. 2026 14:37 |
| Referanse | 1702260006 |
Annonsene kan være mangelfulle i forhold til lovpålagt opplysningsplikt. Før bindende avtale inngås oppfordres interessenter til å innhente komplett informasjon fra meglerforetaket, selger eller utleier.









































