Bildegalleri

Krogsveen v/ Anders Brodshaug Berger presenterer Smedstuvegen 62 - Foto: Heidi Larsen
Nannestad
Pen 3-roms endeleilighet med garasjeplass m/ lader | Sentral beliggenhet | Gode solforhold |
Prisantydning3 250 000 kr
Nøkkelinfo
- Boligtype
- Leilighet
- Eieform
- Eier (Selveier)
- Soverom
- 2
- Internt bruksareal
- 68 m² (BRA-i)
- Bruksareal
- 73 m²
- Eksternt bruksareal
- 5 m² (BRA-e)
- Balkong/Terrasse
- 10 m² (TBA)
- Etasje
- 2
- Byggeår
- 2018
- Energimerking
- B - Lysegrønn
- Rom
- 3
- Tomteareal
- 1 216 m² (eiet)
Fasiliteter
Balkong/Terrasse
Barnevennlig
Bredbåndstilknytning
Garasje/P-plass
Heis
Kjæledyr tillatt
Kabel-TV
Rolig
Sentralt
Lademulighet
Balansert ventilasjon
Om boligen
Velkommen til Smedstuvegen 62
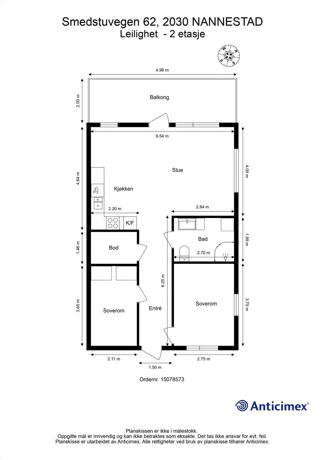
Selveier endeleilighet fra 2018 som holder en god og moderne standard. Leiligheten inneholder entré, to soverom, bad, toalett, stue/kjøkken, bod. Fra stuen har man adkomst til leilighetens balkong på ca. 10 kvm med gode solforhold hvor man har sol hele ettermiddagen til den går ned. Leiligheten disponerer en garasjeplass.
Leiligheten ligger i Nannestad sentrum, med alt man skulle trenge av servicetilbud i umiddelbar nærhet. Dagligvare, bussholdeplass, treningssenter, serveringsteder og mer er alt innenfor 500m fra eiendommen. Med bussen kommer man seg lett til Gardermoen, Jessheim og Lillestrøm.
Husk visningspåmelding.
Selveier endeleilighet fra 2018 som holder en god og moderne standard. Leiligheten inneholder entré, to soverom, bad, toalett, stue/kjøkken, bod. Fra stuen har man adkomst til leilighetens balkong på ca. 10 kvm med gode solforhold hvor man har sol hele ettermiddagen til den går ned. Leiligheten disponerer en garasjeplass.
Leiligheten ligger i Nannestad sentrum, med alt man skulle trenge av servicetilbud i umiddelbar nærhet. Dagligvare, bussholdeplass, treningssenter, serveringsteder og mer er alt innenfor 500m fra eiendommen. Med bussen kommer man seg lett til Gardermoen, Jessheim og Lillestrøm.
Husk visningspåmelding.
NB: Knappen for å vise hele beskrivelsen har kun en visuell effekt.
NB: Knappen for å vise hele beskrivelsen har kun en visuell effekt.
Salgsoppgaven beskriver vesentlig og lovpålagt informasjon om eiendommen
Se komplett salgsoppgaveNyttige lenker
Nærområdet
Krogsveen Jessheim
Verdien av en god megler.
Annonseinformasjon
| FINN-kode | 449153675 |
|---|---|
| Sist endret | 04. feb. 2026 12:48 |
| Referanse | KR63.267 |
Annonsene kan være mangelfulle i forhold til lovpålagt opplysningsplikt. Før bindende avtale inngås oppfordres interessenter til å innhente komplett informasjon fra meglerforetaket, selger eller utleier.































