Bildegalleri

Velkommen til Kampengata 28C og denne fine leiligheten! Foto: Alexander Granlie (boliggram)
Idylliske Kampen
Lys og gjennomgående 2-roms - Varmtvann & internett inkl. - Peisovn - Ingen forkjøp/dok.avgift
Prisantydning4 850 000 kr
Nøkkelinfo
- Boligtype
- Leilighet
- Eieform
- Andel
- Soverom
- 1
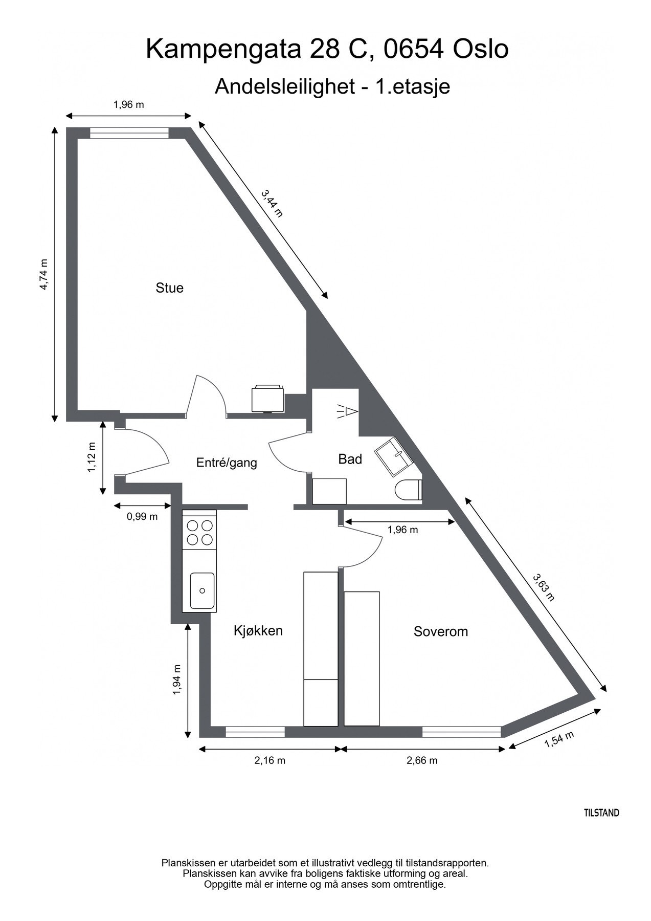
- Internt bruksareal
- 46 m² (BRA-i)
- Bruksareal
- 54 m²
- Eksternt bruksareal
- 8 m² (BRA-e)
- Etasje
- 1
- Byggeår
- 1903
- Energimerking
- G - Oransje
- Rom
- 2
- Tomteareal
- 770 m² (eiet)
Fasiliteter
Offentlig vann/kloakk
Peis/Ildsted
Vaktmester-/vektertjeneste
Sentralt
Bredbåndstilknytning
Moderne
Om boligen
Velkommen til idylliske Kampen og Kampengata 28C!
Dette er en lys og gjennomgående 2-roms leilighet, fint beliggende i byggets høye 1. etasje. Det slippes inn mengder av sollys fra den sørvendte stuen, som gjør rommet lys og trivelig uansett årstid. I andre enden av leiligheten finner vi kjøkken og soverommet, som begge er vendt mot rolig og skjermet bakgård.
Kampen er en av de mest sjarmerende bydelene i Oslo, kjent for sin unike kombinasjon av historisk arkitektur og moderne livsstil. Bydelen gir en perfekt blanding av roligere gater og pulserende byliv.
Høydepunkter:
- Varmtvann og internett inkl. i felleskostnader
- Hyggelig peisovn i stuen
- Overflater malt i 2024-2025
- Pent opparbeidet bakgård
- God oppbevaringsplass i to boder på totalt 8 kvm
- Hyggelig og veldrevet borettslag
- Ingen dok.avgift eller forkjøpsrett
- Kort gangavstand til dagligvare, treningssenter, restauranter og mer.
Velkommen til visning!
Dette er en lys og gjennomgående 2-roms leilighet, fint beliggende i byggets høye 1. etasje. Det slippes inn mengder av sollys fra den sørvendte stuen, som gjør rommet lys og trivelig uansett årstid. I andre enden av leiligheten finner vi kjøkken og soverommet, som begge er vendt mot rolig og skjermet bakgård.
Kampen er en av de mest sjarmerende bydelene i Oslo, kjent for sin unike kombinasjon av historisk arkitektur og moderne livsstil. Bydelen gir en perfekt blanding av roligere gater og pulserende byliv.
Høydepunkter:
- Varmtvann og internett inkl. i felleskostnader
- Hyggelig peisovn i stuen
- Overflater malt i 2024-2025
- Pent opparbeidet bakgård
- God oppbevaringsplass i to boder på totalt 8 kvm
- Hyggelig og veldrevet borettslag
- Ingen dok.avgift eller forkjøpsrett
- Kort gangavstand til dagligvare, treningssenter, restauranter og mer.
Velkommen til visning!
NB: Knappen for å vise hele beskrivelsen har kun en visuell effekt.
NB: Knappen for å vise hele beskrivelsen har kun en visuell effekt.
Salgsoppgaven beskriver vesentlig og lovpålagt informasjon om eiendommen
Se komplett salgsoppgaveNyttige lenker
Nærområdet
EIE eiendomsmegling Ullevål & Sagene
Annonseinformasjon
| FINN-kode | 448814527 |
|---|---|
| Sist endret | 02. feb. 2026 18:36 |
| Referanse | 15260023 |
Annonsene kan være mangelfulle i forhold til lovpålagt opplysningsplikt. Før bindende avtale inngås oppfordres interessenter til å innhente komplett informasjon fra meglerforetaket, selger eller utleier.





























