Bildegalleri

Velkommen til Litj-Øra 11.
Enebolig med sentral og attraktiv beliggenhet på Litj-Øra. Flat og fin tomt. Blindvei. Garasje.
Prisantydning2 750 000 kr
Nøkkelinfo
- Boligtype
- Enebolig
- Eieform
- Eier (Selveier)
- Soverom
- 3
- Internt bruksareal
- 137 m² (BRA-i)
- Bruksareal
- 167 m²
- Eksternt bruksareal
- 30 m² (BRA-e)
- Balkong/Terrasse
- 46 m² (TBA)
- Etasje
- 3
- Byggeår
- 1980
- Energimerking
- G - Oransje
- Tomteareal
- 851 m² (eiet)
Fasiliteter
Balkong/Terrasse
Barnevennlig
Garasje/P-plass
Hage
Kjæledyr tillatt
Offentlig vann/kloakk
Peis/Ildsted
Rolig
Sentralt
Visning
mandag, 09. februar
16:00 – 17:00
Passer ikke oppsatt tidspunkt? Ta kontakt for en privatvisning.
Dersom ingen er påmeldt annonsert visning vil visning ikke bli gjennomført.
VisningspåmeldingOm boligen
Velkommen til Litj-Øra 11!
Enebolig med sentral og attraktiv beliggenhet. Boligen ligger fint til innerst i en blindvei uten gjennomgangstrafikk. Flat og fin tomt opparbeidet med plen og busker.
Boligen inneholder følgende:
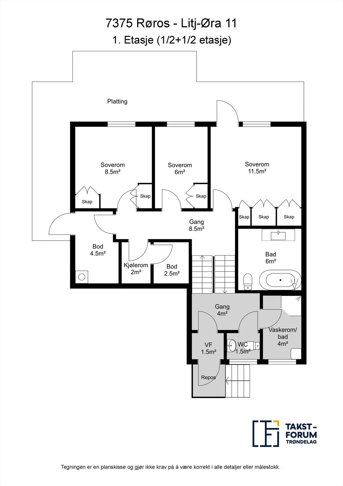
1. etasje (1/2 etasje + 1/2 etasje):
Vaskerom, toalett, hall, vindfang, gang, bad og tre soverom.
I tillegg to boder og kjølerom.
2. etasje:
Stue, kjøkken og spisestue.
Loft:
Loftstue.
1/2-part av garasje:
Garasje og to boder.
Velkommen på en trivelig visning.
Enebolig med sentral og attraktiv beliggenhet. Boligen ligger fint til innerst i en blindvei uten gjennomgangstrafikk. Flat og fin tomt opparbeidet med plen og busker.
Boligen inneholder følgende:
1. etasje (1/2 etasje + 1/2 etasje):
Vaskerom, toalett, hall, vindfang, gang, bad og tre soverom.
I tillegg to boder og kjølerom.
2. etasje:
Stue, kjøkken og spisestue.
Loft:
Loftstue.
1/2-part av garasje:
Garasje og to boder.
Velkommen på en trivelig visning.
NB: Knappen for å vise hele beskrivelsen har kun en visuell effekt.
NB: Knappen for å vise hele beskrivelsen har kun en visuell effekt.
Salgsoppgaven beskriver vesentlig og lovpålagt informasjon om eiendommen
Se komplett salgsoppgaveNærområdet
Aktiv i Fjellregionen
Annonseinformasjon
| FINN-kode | 448722636 |
|---|---|
| Sist endret | 30. jan. 2026 17:33 |
| Referanse | 1705260001 |
Annonsene kan være mangelfulle i forhold til lovpålagt opplysningsplikt. Før bindende avtale inngås oppfordres interessenter til å innhente komplett informasjon fra meglerforetaket, selger eller utleier.






































