


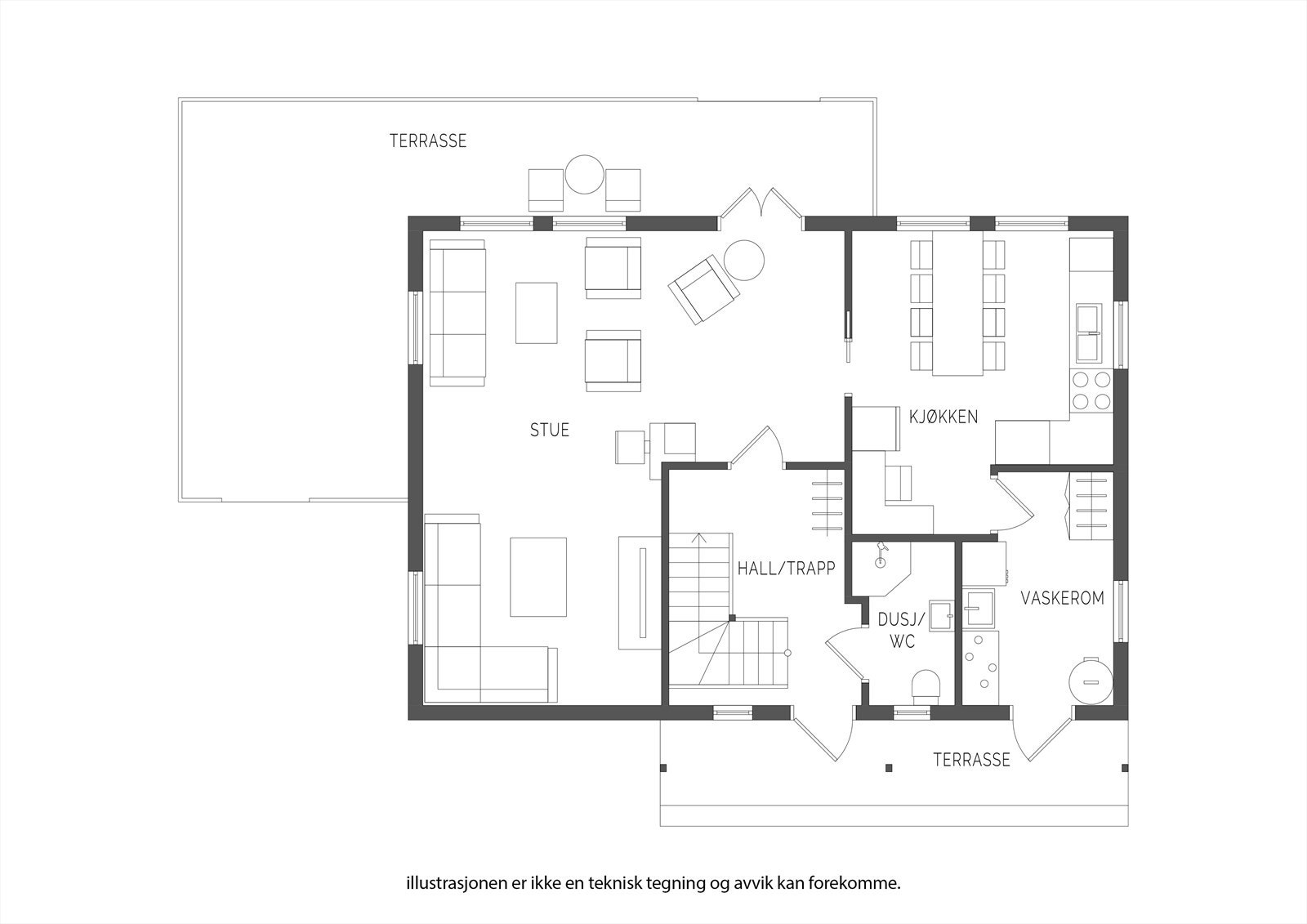
Velkommen til Rishagen 9 på Kvernaland, Presentert av Andreas Rage v/Aktiv Eiendomsmegling Jæren Foto: Brian Engen
Salgsoppgaven beskriver vesentlig og lovpålagt informasjon om eiendommen
Se komplett salgsoppgaveRishagen 9
på annonsen
prisantydning per kvadratmeter
Pris per m² ligger 9 513 kr over snittet for eneboliger i Time.
Grafen viser antall eneboliger solgt i Time siste året fordelt på pris per m² - totalt 150 eneboliger
Antall boliger
Kvadratmeterpris tilsvarer prisantydning pluss fellesgjeld per kvadratmeter (p-rom eller BRA-i). Prisene i grafen er avrundet til nærmeste 1000 kr.












| FINN-kode | 448714742 |
|---|---|
| Sist endret | 14. feb. 2026 11:59 |
| Referanse | 1403260009 |
Annonsene kan være mangelfulle i forhold til lovpålagt opplysningsplikt. Før bindende avtale inngås oppfordres interessenter til å innhente komplett informasjon fra meglerforetaket, selger eller utleier.