Bildegalleri

PrivatMegleren Hamar v/Arbresh Vitija har gleden av å presentere Børstadalleen 5C!
Lys og moderne 3-roms i 2. etasje | Veletablert borettslag | Balkong og fjernvarme | God beliggenhet |
Prisantydning2 590 000 kr
Nøkkelinfo
- Boligtype
- Leilighet
- Eieform
- Andel
- Soverom
- 2
- Internt bruksareal
- 63 m² (BRA-i)
- Bruksareal
- 72 m²
- Eksternt bruksareal
- 9 m² (BRA-e)
- Balkong/Terrasse
- 11 m² (TBA)
- Byggeår
- 1958
- Energimerking
- C - Lysegrønn
- Tomteareal
- 3 300 m² (eiet)
Fasiliteter
Barnevennlig
Balkong/Terrasse
Visning
mandag, 09. februar
17:00 – 17:30
Velkommen til visning!
Alle våre visninger har påmelding. På denne måten sikrer vi at megler har god oversikt og tid til å imøtekomme alle interessenter på beste måte. Dette er veldig verdifullt for boligkjøpere og for oss. Det er enkelt å melde seg på, og du kan like enkelt melde deg av. Kontakt også gjerne megler i forkant av visning dersom du har spørsmål.
Om boligen
PrivatMegleren Hamar v/Arbresh Vitija har gleden av å presentere Børstadalleen 5C!
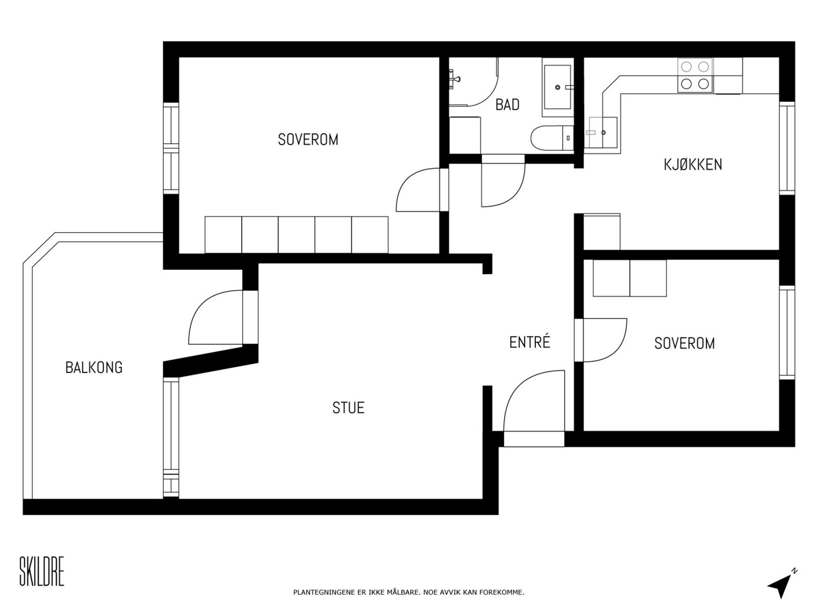
Velkommen til en praktisk og innbydende 3-roms leilighet beliggende i et veletablert borettslag med sentral beliggenhet i Børstad i Hamar. Leiligheten byr på entre, stue, kjøkken, bad, balkong og to soverom.
Boligen passer godt for både førstegangskjøpere, par og små familier.
Høydepunkter:
- 3-roms leilighet i 2. etasje
- Balkong med utgang fra stue
- Bad med fliser og varmekabler
- Bod i både loft og kjeller
- Kort vei til Hamar sentrum og turområder
Velkommen til visning!
Velkommen til en praktisk og innbydende 3-roms leilighet beliggende i et veletablert borettslag med sentral beliggenhet i Børstad i Hamar. Leiligheten byr på entre, stue, kjøkken, bad, balkong og to soverom.
Boligen passer godt for både førstegangskjøpere, par og små familier.
Høydepunkter:
- 3-roms leilighet i 2. etasje
- Balkong med utgang fra stue
- Bad med fliser og varmekabler
- Bod i både loft og kjeller
- Kort vei til Hamar sentrum og turområder
Velkommen til visning!
NB: Knappen for å vise hele beskrivelsen har kun en visuell effekt.
NB: Knappen for å vise hele beskrivelsen har kun en visuell effekt.
Salgsoppgaven beskriver vesentlig og lovpålagt informasjon om eiendommen
Se komplett salgsoppgaveNyttige lenker
Nærområdet
PrivatMegleren Hamar
Kun det beste på dine vegne
Annonseinformasjon
| FINN-kode | 448704386 |
|---|---|
| Sist endret | 30. jan. 2026 15:20 |
| Referanse | 320260016 |
Annonsene kan være mangelfulle i forhold til lovpålagt opplysningsplikt. Før bindende avtale inngås oppfordres interessenter til å innhente komplett informasjon fra meglerforetaket, selger eller utleier.
































