Bildegalleri

Velkommen til Stasjonsveien 48! Eiendommen består av en lys og attraktiv selveierleilighet beliggende i 3. etasje med stor balkong. (Foto: Hanna Kristensen)
Furumoen
Romslig 4-roms selveier i 3. etg. med stor balkong, heis, garasje og flott utsikt - VISNING MANDAG 9/2 v/PÅMELDING
Prisantydning5 800 000 kr
Nøkkelinfo
- Boligtype
- Leilighet
- Eieform
- Eier (Selveier)
- Soverom
- 3
- Internt bruksareal
- 96 m² (BRA-i)
- Bruksareal
- 101 m²
- Eksternt bruksareal
- 5 m² (BRA-e)
- Balkong/Terrasse
- 17 m² (TBA)
- Etasje
- 3
- Byggeår
- 2007
- Rom
- 4
- Renovert år
- 2022
- Tomteareal
- 3 561 m² (eiet)
Fasiliteter
Balkong/Terrasse
Barnevennlig
Garasje/P-plass
Heis
Kjæledyr tillatt
Utsikt
Turterreng
Lademulighet
Visning
mandag, 09. februar
16:00 – 17:00
mandag, 09. februar
11:00 – 12:00
Alle våre visninger har påmelding. Dette gjør vi for å planlegge visningene best mulig, og ha god tid til de som kommer. Visninger uten påmeldte deltakere vil bli avlyst.
VisningspåmeldingOm boligen
Velkommen til Stasjonsveien 48:
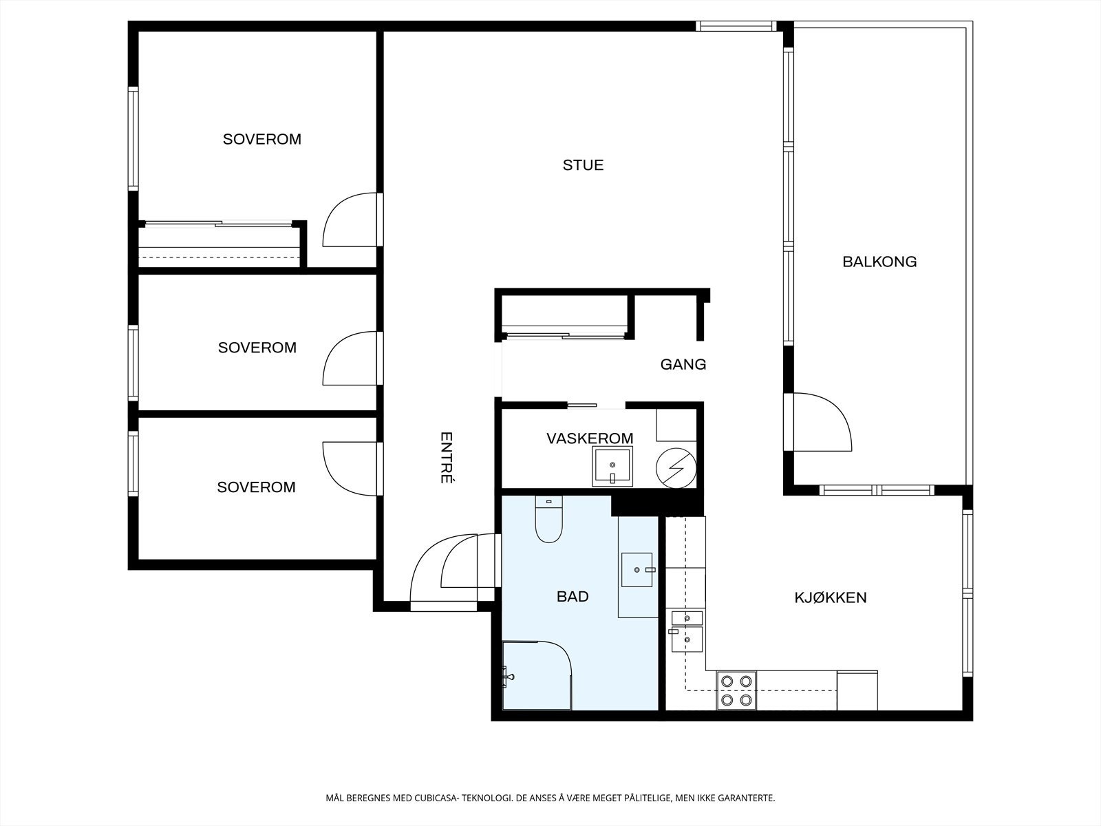
Lys og romslig 4-roms selveierleilighet beliggende i 3. etasje i attraktivt og sentrumsnært boligområde på Furumoen.
Leiligheten har god planløsning med tre soverom, stue med store vindusflater og utgang til romslig balkong på ca. 17 m² med flott utsikt mot Narvik by og Ofotfjorden.
Heis fra parkeringskjeller til leilighetsplan.
Parkeringsplass i felles garasjeanlegg med opplegg for elbillader gir enkel og komfortabel hverdag. Bod i garasjeanlegg.
Kort gangavstand til kjøpesenter, dagligvare, sentrum, sykehus og barnehage, samt fine turområder i Fagernesfjellet og Tøttadalen.
Leiligheten fremstår som normalt godt vedlikeholdt for alder, men med enkelte vedlikeholdsbehov. Gode solforhold.
Kan dette være leiligheten du ser etter?
Kontakt for å avtale visnning
Lys og romslig 4-roms selveierleilighet beliggende i 3. etasje i attraktivt og sentrumsnært boligområde på Furumoen.
Leiligheten har god planløsning med tre soverom, stue med store vindusflater og utgang til romslig balkong på ca. 17 m² med flott utsikt mot Narvik by og Ofotfjorden.
Heis fra parkeringskjeller til leilighetsplan.
Parkeringsplass i felles garasjeanlegg med opplegg for elbillader gir enkel og komfortabel hverdag. Bod i garasjeanlegg.
Kort gangavstand til kjøpesenter, dagligvare, sentrum, sykehus og barnehage, samt fine turområder i Fagernesfjellet og Tøttadalen.
Leiligheten fremstår som normalt godt vedlikeholdt for alder, men med enkelte vedlikeholdsbehov. Gode solforhold.
Kan dette være leiligheten du ser etter?
Kontakt for å avtale visnning
NB: Knappen for å vise hele beskrivelsen har kun en visuell effekt.
NB: Knappen for å vise hele beskrivelsen har kun en visuell effekt.
Salgsoppgaven beskriver vesentlig og lovpålagt informasjon om eiendommen
Se komplett salgsoppgaveNyttige lenker
Nærområdet
JENSSEN & BOLLE EIENDOMSMEGLING AS
Jenssen & Bolle Eiendomsmegling
Annonseinformasjon
| FINN-kode | 448701094 |
|---|---|
| Sist endret | 30. jan. 2026 15:13 |
| Referanse | JOB1.263 |
Annonsene kan være mangelfulle i forhold til lovpålagt opplysningsplikt. Før bindende avtale inngås oppfordres interessenter til å innhente komplett informasjon fra meglerforetaket, selger eller utleier.










































