Bildegalleri

Velkommen til Valheimveien 25! Foto: Arve Gravdal.
Lekker leilighet med sørvendt balkong | 2 soverom | IN ordning | Heis | Gjestehybler
Prisantydning2 000 000 kr
Nøkkelinfo
- Boligtype
- Leilighet
- Eieform
- Andel
- Soverom
- 2
- Internt bruksareal
- 59 m² (BRA-i)
- Bruksareal
- 65 m²
- Eksternt bruksareal
- 6 m² (BRA-e)
- Balkong/Terrasse
- 10 m² (TBA)
- Etasje
- 4
- Byggeår
- 2021
- Energimerking
- A - Gul
- Rom
- 3
- Tomteareal
- 1 972 m² (eiet)
Fasiliteter
Balkong/Terrasse
Garasje/P-plass
Kabel-TV
Heis
Offentlig vann/kloakk
Turterreng
Sentralt
Bredbåndstilknytning
Moderne
Rolig
Lademulighet
Balansert ventilasjon
Visning
onsdag, 11. februar
16:00 – 17:00
For å yte premium rådgivning, har alle våre visninger påmelding. Dette sikrer at megler har god oversikt og tid til å imøtekomme alle interessenter på aller beste måte. Dersom ingen interessenter er påmeldt, kan visningen bli avlyst.
Om boligen
Valheimveien 25 er en del av det populære boligprosjektet Husene i Skogen som stod ferdigstilt i 2021. Boligblokken ligger mellom Jåttåvågen og Jåttånuten, og anerkjente Helen & Hard har satt sitt preg på både arkitekturen og fellesområdene.
Innhold:
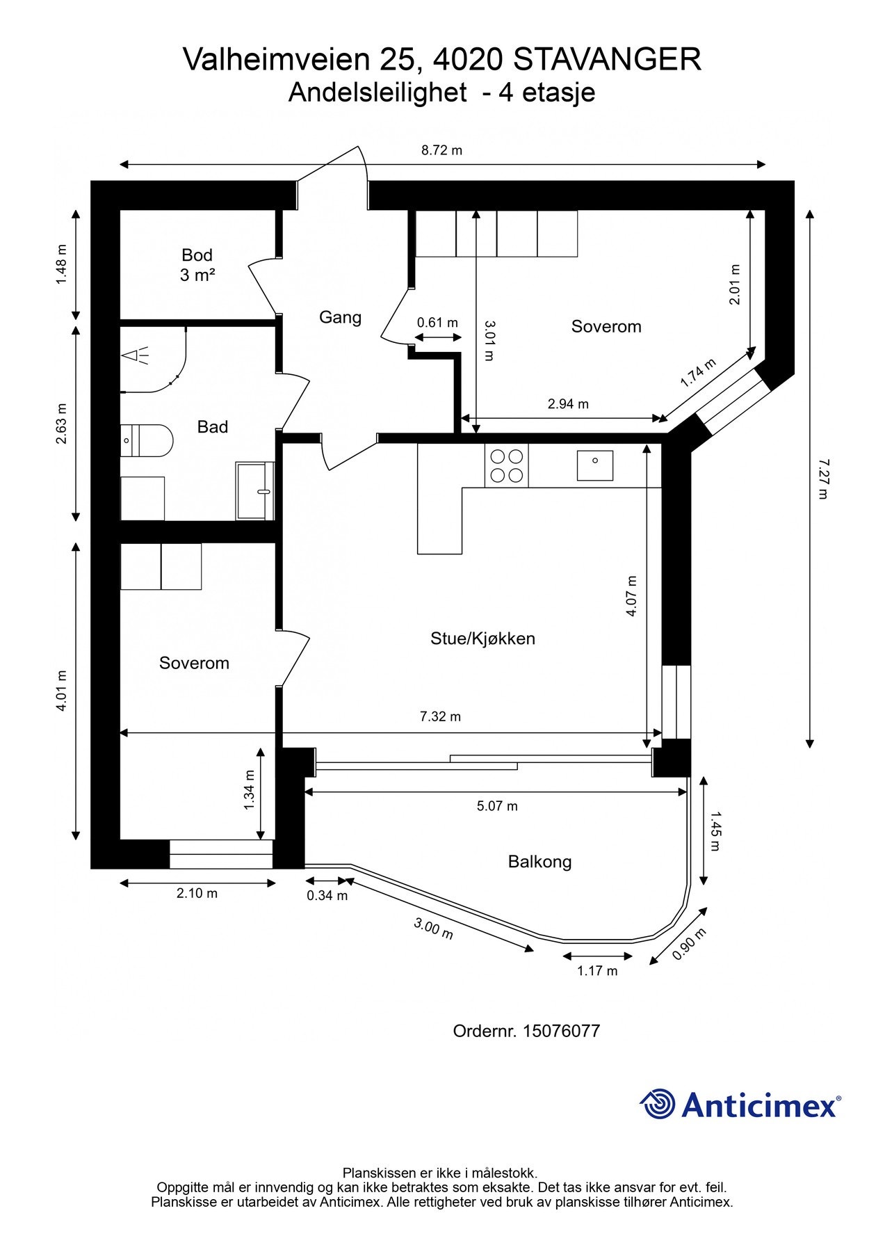
4. etg.: Entré/gang, bad, bod, stue/kjøkken og 2 soverom. Bod i underetasjen.
Kort fortalt:
- Lys og luftig leilighet i 4. etasje
- Sørvendt overbygd balkong
- Lekkert kjøkken fra Norema
- Vannbåren gulvvarme og balansert ventilasjon
- Mulighet for å innfri fellesgjeld (IN ordning)
- Ved nedbetalt fellesgjeld blir felleskostnadene ca. kr. 3 739,- pr. mnd.
- Fast parkeringsplass
- Heis
- El-sykkler i sameiet
- Felles selskapsrom/møterom
- Gjestehybler
- Sentralt og kort vei til tusenvis av arbeidsplasser
Velkommen til visning!
Innhold:
4. etg.: Entré/gang, bad, bod, stue/kjøkken og 2 soverom. Bod i underetasjen.
Kort fortalt:
- Lys og luftig leilighet i 4. etasje
- Sørvendt overbygd balkong
- Lekkert kjøkken fra Norema
- Vannbåren gulvvarme og balansert ventilasjon
- Mulighet for å innfri fellesgjeld (IN ordning)
- Ved nedbetalt fellesgjeld blir felleskostnadene ca. kr. 3 739,- pr. mnd.
- Fast parkeringsplass
- Heis
- El-sykkler i sameiet
- Felles selskapsrom/møterom
- Gjestehybler
- Sentralt og kort vei til tusenvis av arbeidsplasser
Velkommen til visning!
NB: Knappen for å vise hele beskrivelsen har kun en visuell effekt.
NB: Knappen for å vise hele beskrivelsen har kun en visuell effekt.
Salgsoppgaven beskriver vesentlig og lovpålagt informasjon om eiendommen
Se komplett salgsoppgaveNyttige lenker
Nærområdet
EIE eiendomsmegling - Espen Eide & Partnere AS
Annonseinformasjon
| FINN-kode | 448688148 |
|---|---|
| Sist endret | 03. feb. 2026 17:34 |
| Referanse | 82251047 |
Annonsene kan være mangelfulle i forhold til lovpålagt opplysningsplikt. Før bindende avtale inngås oppfordres interessenter til å innhente komplett informasjon fra meglerforetaket, selger eller utleier.

































