Bildegalleri

Nordvik Eiendomsmegling v/Jørgen Nyhus ønsker deg velkommen til Furumoveien 16F. Foto: Fotograf Magik
Sentralt på Vestskogen!
Innholdsrik og tiltalende enderekkehus m/lyst hovedplan | 2 uteplasser og stor hage | Garasje | Solrikt nær skog og sjø
Prisantydning2 975 000 kr
Nøkkelinfo
- Boligtype
- Rekkehus
- Eieform
- Andel
- Soverom
- 1
- Internt bruksareal
- 70 m² (BRA-i)
- Bruksareal
- 89 m²
- Eksternt bruksareal
- 19 m² (BRA-e)
- Balkong/Terrasse
- 40 m² (TBA)
- Etasje
- 2
- Byggeår
- 1972
- Energimerking
- E - Rød
- Rom
- 2
- Tomteareal
- 15 201 m²
Fasiliteter
Balkong/Terrasse
Barnevennlig
Bredbåndstilknytning
Garasje/P-plass
Golfbane
Hage
Offentlig vann/kloakk
Peis/Ildsted
Rolig
Sentralt
Bademulighet
Fiskemulighet
Turterreng
Lademulighet
Visning
søndag, 08. februar
13:15 – 14:00
Alle våre visninger har påmelding. På denne måten sikrer vi at megler har god oversikt og tid til å imøtekomme alle interessenter. Meld deg på visning ved å trykke på lenken visningspåmelding.
VisningspåmeldingOm boligen
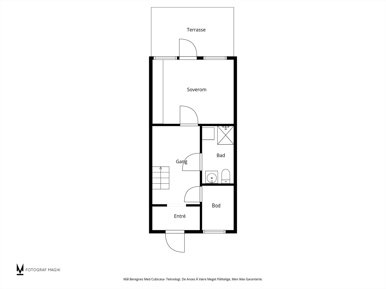
Nordvik har gleden av å presentere Furumoveien 16f og denne innholdsrike og pene leiligheten m/en smart planløsning. Her har du stue og kjøkken i den "riktige" etasjen, slik at man får optimale solforhold, og større romfølelse. Det er både solrik balkong og markterrasse m/stor hagedel. Et ekstra rom benyttes i dag som kontor/gjesterom (ikke søkt og godkjent som oppholdsrom). Leiligheten gir et lyst og godt inntrykk og ligger rolig til i blindvei m/kort vei til skog, sjø, dagligvare, skole og barnehage.
Kort oppsummert;
- Enderekkehus
- Solrik balkong og markterrasse m/egen hage
- Garasje
- Romslig soverom m/stor garderobe, samt ekstra rom som nå brukes som kontor
- Loft m/god lagringsplass
- Skiftet kledning, vinduer og etterisolert loft i regi av brl.
- Attraktiv og rolig beliggenhet
Kort oppsummert;
- Enderekkehus
- Solrik balkong og markterrasse m/egen hage
- Garasje
- Romslig soverom m/stor garderobe, samt ekstra rom som nå brukes som kontor
- Loft m/god lagringsplass
- Skiftet kledning, vinduer og etterisolert loft i regi av brl.
- Attraktiv og rolig beliggenhet
NB: Knappen for å vise hele beskrivelsen har kun en visuell effekt.
NB: Knappen for å vise hele beskrivelsen har kun en visuell effekt.
Salgsoppgaven beskriver vesentlig og lovpålagt informasjon om eiendommen
Se komplett salgsoppgaveNyttige lenker
Nærområdet
Nordvik Tønsberg
Annonseinformasjon
| FINN-kode | 448687805 |
|---|---|
| Sist endret | 31. jan. 2026 21:12 |
| Referanse | 25-0011/26 |
Annonsene kan være mangelfulle i forhold til lovpålagt opplysningsplikt. Før bindende avtale inngås oppfordres interessenter til å innhente komplett informasjon fra meglerforetaket, selger eller utleier.








































