Bildegalleri

Nordvik Tønsberg v/Jørgen Nyhus ønsker velkommen til Bakkenveien 22! Foto: fotograf Magik
Solvang
Lys toppleilighet med fantastisk utsikt - gangavstand til sentrum og flott turterreng!
Prisantydning2 350 000 kr
Nøkkelinfo
- Boligtype
- Leilighet
- Eieform
- Andel
- Soverom
- 1
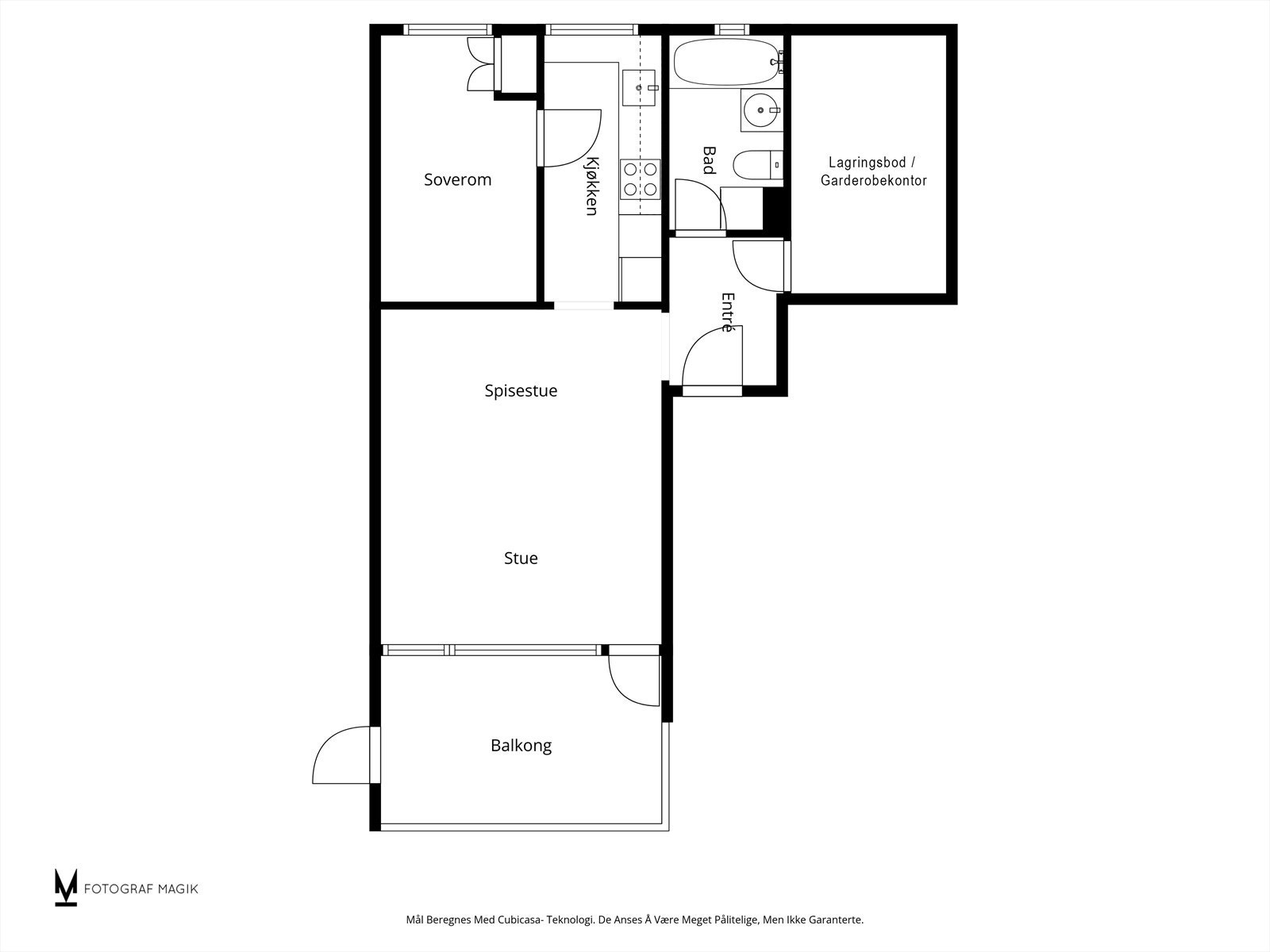
- Internt bruksareal
- 48 m² (BRA-i)
- Bruksareal
- 53 m²
- Eksternt bruksareal
- 5 m² (BRA-e)
- Balkong/Terrasse
- 9 m² (TBA)
- Etasje
- 4
- Byggeår
- 1959
- Energimerking
- G - Mørkegrønn
- Rom
- 2
- Tomteareal
- 7 344 m² (festet)
- Festeavgift
- 72 150 kr
Fasiliteter
Balkong/Terrasse
Barnevennlig
Bredbåndstilknytning
Ingen gjenboere
Offentlig vann/kloakk
Rolig
Sentralt
Utsikt
Turterreng
Visning
søndag, 08. februar
14:30 – 15:15
Alle våre visninger har påmelding. På denne måten sikrer vi at megler har god oversikt og tid til å imøtekomme alle interessenter. Meld deg på visning ved å trykke på lenken visningspåmelding.
VisningspåmeldingOm boligen
Velkommen til en innbydende toppleilighet med en sjelden kombinasjon av utsikt, lys og nærhet til både natur og bysentrum. Her bor du høyt og fritt med fantastisk utsyn over Solvang, sykehuset og Slottsfjellet, samtidig som du har kort vei til alt du trenger i hverdagen.
Her bor du meget attraktivt og sentralt på Solvang - "midt i smørøyet"! En ypperlig beliggenhet for deg som ønsker å bo sentralt med gangavstand til sentrum. Her er det også flotte tur- og rekreasjonsområder med lysløype i umiddelbar nærhet. Kort gangavstand også til Sykehuset i Vestfold, skoler, barnehager, idrettsanlegg, forretninger.
Selve leiligheten har en funksjonell og arealeffektiv planløsning med alt på et plan i byggets toppetasje. Boligen gir et lyst og godt inntrykk med pene laminatgulv og kjøkken fra 2019.
Her bor du meget attraktivt og sentralt på Solvang - "midt i smørøyet"! En ypperlig beliggenhet for deg som ønsker å bo sentralt med gangavstand til sentrum. Her er det også flotte tur- og rekreasjonsområder med lysløype i umiddelbar nærhet. Kort gangavstand også til Sykehuset i Vestfold, skoler, barnehager, idrettsanlegg, forretninger.
Selve leiligheten har en funksjonell og arealeffektiv planløsning med alt på et plan i byggets toppetasje. Boligen gir et lyst og godt inntrykk med pene laminatgulv og kjøkken fra 2019.
NB: Knappen for å vise hele beskrivelsen har kun en visuell effekt.
NB: Knappen for å vise hele beskrivelsen har kun en visuell effekt.
Salgsoppgaven beskriver vesentlig og lovpålagt informasjon om eiendommen
Se komplett salgsoppgaveNyttige lenker
Nærområdet
Nordvik Tønsberg
Annonseinformasjon
| FINN-kode | 448684690 |
|---|---|
| Sist endret | 31. jan. 2026 21:13 |
| Referanse | 25-0003/26 |
Annonsene kan være mangelfulle i forhold til lovpålagt opplysningsplikt. Før bindende avtale inngås oppfordres interessenter til å innhente komplett informasjon fra meglerforetaket, selger eller utleier.








































