Bildegalleri

Lys 1-roms leilighet med balkong og utsyn til hyggelig grøntareal |Separat kjøkken |Oppussingsobjekt
Prisantydning3 390 000 kr
Nøkkelinfo
- Boligtype
- Leilighet
- Eieform
- Andel
- Soverom
- 0
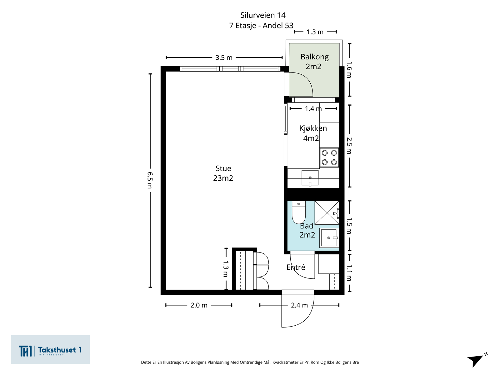
- Internt bruksareal
- 31 m² (BRA-i)
- Bruksareal
- 33 m²
- Eksternt bruksareal
- 2 m² (BRA-e)
- Balkong/Terrasse
- 2 m² (TBA)
- Etasje
- 7
- Byggeår
- 1970
- Energimerking
- G - Rød
- Rom
- 1
- Tomteareal
- 3 371 m² (eiet)
Fasiliteter
Balkong/Terrasse
Heis
Rolig
Sentralt
Turterreng
Om boligen
Hyggelig 1-roms leilighet med utgang til balkong. Boligen ligger i et attraktivt område på Ullern, med kort vei til kollektivtransport, butikker og flotte turområder. Området byr på en fin kombinasjon av grønne omgivelser og enkel tilgang til byens mange fasiliteter.
- Separat kjøkken
- Det disponeres en bod for ekstra lagringsplass
- Lave omkostninger, ingen dokumentavgift
- Felles sykkelbod
- Ingen forkjøpsrett
- Mulighet for leie av parkering
- Oppussingsobjekt
Velkommen til visning!
- Separat kjøkken
- Det disponeres en bod for ekstra lagringsplass
- Lave omkostninger, ingen dokumentavgift
- Felles sykkelbod
- Ingen forkjøpsrett
- Mulighet for leie av parkering
- Oppussingsobjekt
Velkommen til visning!
NB: Knappen for å vise hele beskrivelsen har kun en visuell effekt.
NB: Knappen for å vise hele beskrivelsen har kun en visuell effekt.
Salgsoppgaven beskriver vesentlig og lovpålagt informasjon om eiendommen
Se komplett salgsoppgaveNyttige lenker
Nærområdet
EiendomsMegler 1 Sør-Norge avd Ullevål
En del av Sparebank 1 Sør-Norge
Annonseinformasjon
| FINN-kode | 448679886 |
|---|---|
| Sist endret | 30. jan. 2026 14:12 |
| Referanse | 2802250307 |
Annonsene kan være mangelfulle i forhold til lovpålagt opplysningsplikt. Før bindende avtale inngås oppfordres interessenter til å innhente komplett informasjon fra meglerforetaket, selger eller utleier.































