Bildegalleri

Velkommen til ditt nye hjem - Gruevegen 39B! Foto: Flytende Film AS (Thor Øyvind Borgersen)
Pen og velholdt familiebolig | Carport m/elbillader | 3 soverom, 2 stuer, bad og vaskerom | Barnevennlig og rolig område
Prisantydning4 200 000 kr
Nøkkelinfo
- Boligtype
- Tomannsbolig
- Eieform
- Eier (Selveier)
- Soverom
- 3
- Internt bruksareal
- 119 m² (BRA-i)
- Bruksareal
- 124 m²
- Eksternt bruksareal
- 5 m² (BRA-e)
- Balkong/Terrasse
- 25 m² (TBA)
- Etasje
- 2
- Byggeår
- 2017
- Energimerking
- C - Lysegrønn
- Rom
- 5
- Tomteareal
- 2 376 m² (eiet)
Fasiliteter
Balkong/Terrasse
Barnevennlig
Bredbåndstilknytning
Garasje/P-plass
Hage
Kjæledyr tillatt
Offentlig vann/kloakk
Parkett
Peis/Ildsted
Rolig
Sentralt
Turterreng
Lademulighet
Balansert ventilasjon
Visning
tirsdag, 10. februar
17:00 – 18:00
For å delta på visning, ber vi om at du melder deg på. Da sikrer vi at du får nødvendig informasjon og at det er satt av tilstrekkelig med tid. Kontakt megler dersom annet tidspunkt ønskes. Husk å lese salgsoppgaven før visningen, så du stiller forberedt.
Ønsker du kun å bli holdt orientert, kan du fra eiendommens hjemmeside få varsel om solgtpris, eller kontakte megler.
VisningspåmeldingOm boligen
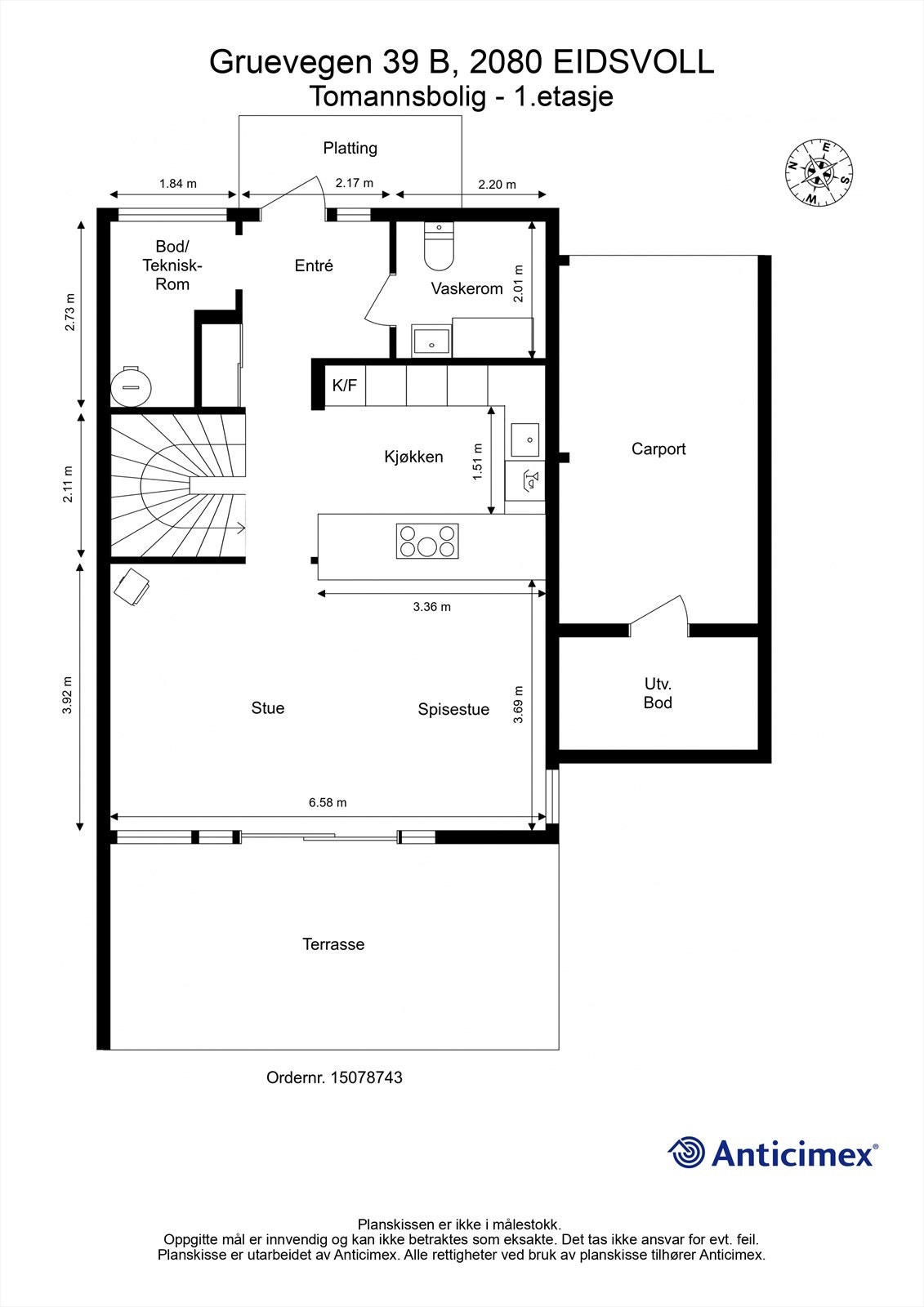
Velkommen til Gruevegen 39B!
En pen og velholdt halvpart av tomannsbolig i et rolig og barnevennlig boligområde i Eidsvoll. Boligen har en praktisk planløsning over to etasjer. I første etasje ligger entré, bod, vaskerom/WC, kjøkken og stue/spisestue. I andre etasje finner man tre soverom, bad og loftstue. Boligen holder en gjennomgående god standard, og man kan flytte rett inn. Sørvestvendt terrasse på 21 kvm med tilgang til skjermet uteområde med god plass for både store og små. Pallekarmer gir mulighet for dyrking av urter og grønnsaker. Det følger carport med elbillader og bod.
Rolig og familievennlig beliggenhet med kort vei til skoler, barnehager, flotte turområder og Eidsvoll sentrum. Et praktisk og trygt nærmiljø med alt man trenger i hverdagen.
Husk å meld deg på visning!
En pen og velholdt halvpart av tomannsbolig i et rolig og barnevennlig boligområde i Eidsvoll. Boligen har en praktisk planløsning over to etasjer. I første etasje ligger entré, bod, vaskerom/WC, kjøkken og stue/spisestue. I andre etasje finner man tre soverom, bad og loftstue. Boligen holder en gjennomgående god standard, og man kan flytte rett inn. Sørvestvendt terrasse på 21 kvm med tilgang til skjermet uteområde med god plass for både store og små. Pallekarmer gir mulighet for dyrking av urter og grønnsaker. Det følger carport med elbillader og bod.
Rolig og familievennlig beliggenhet med kort vei til skoler, barnehager, flotte turområder og Eidsvoll sentrum. Et praktisk og trygt nærmiljø med alt man trenger i hverdagen.
Husk å meld deg på visning!
NB: Knappen for å vise hele beskrivelsen har kun en visuell effekt.
NB: Knappen for å vise hele beskrivelsen har kun en visuell effekt.
Salgsoppgaven beskriver vesentlig og lovpålagt informasjon om eiendommen
Se komplett salgsoppgaveNyttige lenker
Nærområdet
Krogsveen Jessheim
Verdien av en god megler.
Annonseinformasjon
| FINN-kode | 448677033 |
|---|---|
| Sist endret | 03. feb. 2026 06:02 |
| Referanse | KR63.2610 |
Annonsene kan være mangelfulle i forhold til lovpålagt opplysningsplikt. Før bindende avtale inngås oppfordres interessenter til å innhente komplett informasjon fra meglerforetaket, selger eller utleier.




































