Bildegalleri

Leiligheten er beliggende i et veletablert og attraktiv boligområde i Hårkollen/Skallestad.
Vertikaldelt tomannsbolig beliggende i et barnevennlig og godt boområde | Oppgraderingsbehov | Nær skole, sjø og strand
Prisantydning2 490 000 kr
Nøkkelinfo
- Boligtype
- Tomannsbolig
- Eieform
- Andel
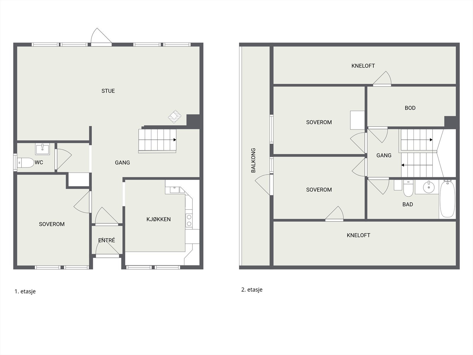
- Soverom
- 3
- Internt bruksareal
- 108 m² (BRA-i)
- Bruksareal
- 108 m²
- Balkong/Terrasse
- 6 m² (TBA)
- Etasje
- 2
- Byggeår
- 1977
- Energimerking
- F - Gul
- Tomteareal
- 11 104 m² (eiet)
Fasiliteter
Balkong/Terrasse
Barnevennlig
Garasje/P-plass
Hage
Kjæledyr tillatt
Offentlig vann/kloakk
Parkett
Peis/Ildsted
Rolig
Utsikt
Turterreng
Om boligen
Velkommen til Hårkollveien 37A presentert av EiendomsMegler 1 v/ Maiken B. Paulsen!
Andelsleilighet i rekkehus/ 2-manns bolig i borettslag oppført i 1977. Leiligheten har oppussingsbehov. Boligen er beliggende i et veletablert og attraktiv boligområde i Hårkollen/Skallestad. Området er stille og rolig, med fine tur-og skogsområder i nærområde samt badeplasser og småbåthavn. Det er kort vei til Hårkollen Idrettshall, dagligvarebutikk, Oserød barneskole og Hårkollen barnehage. Kjøkkenet har heltrefronter, laminatbenk, ventilator og plass til hvitevarer. Lys stue med vedovn og varmepumpe. Bad med servant, toalett, badekar og opplegg for vaskemaskin. Eget toalettrom og 3 soverom, samt balkong fra soverom i loftsetasjen.
Andelsleilighet i rekkehus/ 2-manns bolig i borettslag oppført i 1977. Leiligheten har oppussingsbehov. Boligen er beliggende i et veletablert og attraktiv boligområde i Hårkollen/Skallestad. Området er stille og rolig, med fine tur-og skogsområder i nærområde samt badeplasser og småbåthavn. Det er kort vei til Hårkollen Idrettshall, dagligvarebutikk, Oserød barneskole og Hårkollen barnehage. Kjøkkenet har heltrefronter, laminatbenk, ventilator og plass til hvitevarer. Lys stue med vedovn og varmepumpe. Bad med servant, toalett, badekar og opplegg for vaskemaskin. Eget toalettrom og 3 soverom, samt balkong fra soverom i loftsetasjen.
NB: Knappen for å vise hele beskrivelsen har kun en visuell effekt.
NB: Knappen for å vise hele beskrivelsen har kun en visuell effekt.
Salgsoppgaven beskriver vesentlig og lovpålagt informasjon om eiendommen
Se komplett salgsoppgaveNyttige lenker
Nærområdet
EiendomsMegler 1 Tønsberg
En del av Sparebank 1 Sør-Norge
Annonseinformasjon
| FINN-kode | 448671998 |
|---|---|
| Sist endret | 30. jan. 2026 19:05 |
| Referanse | 2871250116 |
Annonsene kan være mangelfulle i forhold til lovpålagt opplysningsplikt. Før bindende avtale inngås oppfordres interessenter til å innhente komplett informasjon fra meglerforetaket, selger eller utleier.






































