Bildegalleri

Velkommen til Eiksveien 69, presentert av Tinholt Eiendomsmegling.
ØSTERÅS / EIKSMARKA
Familievennlig leilighet o/2 plan med "rekkehusfølelse" | Solrik uteplass m/flott utsikt| Parkeringsplass*|Á-kto. fyring
Prisantydning6 700 000 kr
Nøkkelinfo
- Boligtype
- Leilighet
- Eieform
- Eier (Selveier)
- Soverom
- 3
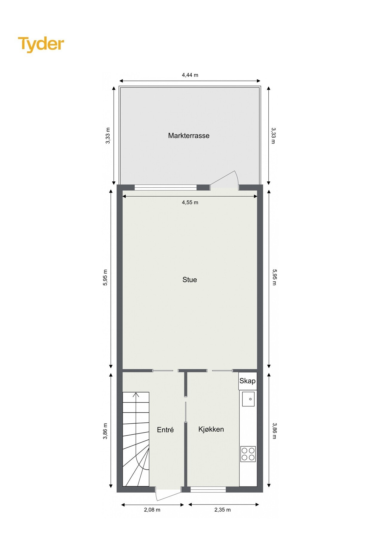
- Internt bruksareal
- 90 m² (BRA-i)
- Bruksareal
- 99 m²
- Eksternt bruksareal
- 9 m² (BRA-e)
- Balkong/Terrasse
- 15 m² (TBA)
- Etasje
- 1
- Byggeår
- 1957
- Energimerking
- C - Lysegrønn
- Rom
- 4
- Tomteareal
- 5 180 m² (eiet)
Fasiliteter
Barnevennlig
Balkong/Terrasse
Garasje/P-plass
Kabel-TV
Offentlig vann/kloakk
Parkett
Turterreng
Vaktmester-/vektertjeneste
Sentralt
Bredbåndstilknytning
Rolig
Lademulighet
Visning
søndag, 08. februar
15:00 – 16:00
Meld deg på visning eller kontakt eiendomsmegler for privatvisning.
Visning blir ikke gjennomført uten påmeldte.
mandag, 09. februar
18:00 – 19:00
Meld deg på visning eller kontakt eiendomsmegler for privatvisning.
Visning blir ikke gjennomført uten påmeldte.
Om boligen
Familievennlig leilighet med "rekkehusfølelse" o/2 plan, beliggende høyt i terrenget med flott utsikt. Livet utendørs nytes på en usjenert terrasse med utmerkede solforhold. Boligen har en gjennomtenkt planløsning med god balanse mellom sosiale og private soner, hvor oppholdsrommene er plassert i 1. etasje og soverommene ligger skjermet i 2. etasje. Store vindusflater gir rikelig med lys, mens den gjennomgående utformingen bidrar til en luftig atmosfære.
Meget attraktiv beliggenhet med kort vei til dagligvare og senter. Bussholdeplass rett utenfor og kort vei til Østerås (ev. Lijordet) T-banestasjon. Nærhet til flotte turområder langs Lysakerelven og i marka, samt gangavstand til barnehager og skoler.
K V A L I T E T E R:
- Beliggende høyt i terrenget med flott utsikt
- Herlig markterrasse med utmerkede solforhold
- Skjermet uteområde uten innsyn
- Svært god intern beliggenhet
- Rett til én parkeringsplass - mulighet for el-lader
- Felles vaske- og tørkerom i kjelleren
Meget attraktiv beliggenhet med kort vei til dagligvare og senter. Bussholdeplass rett utenfor og kort vei til Østerås (ev. Lijordet) T-banestasjon. Nærhet til flotte turområder langs Lysakerelven og i marka, samt gangavstand til barnehager og skoler.
K V A L I T E T E R:
- Beliggende høyt i terrenget med flott utsikt
- Herlig markterrasse med utmerkede solforhold
- Skjermet uteområde uten innsyn
- Svært god intern beliggenhet
- Rett til én parkeringsplass - mulighet for el-lader
- Felles vaske- og tørkerom i kjelleren
NB: Knappen for å vise hele beskrivelsen har kun en visuell effekt.
NB: Knappen for å vise hele beskrivelsen har kun en visuell effekt.
Salgsoppgaven beskriver vesentlig og lovpålagt informasjon om eiendommen
Se komplett salgsoppgaveNyttige lenker
Nærområdet
TINHOLT Eiendomsmegling
Du vil kjenne forskjellen
Annonseinformasjon
| FINN-kode | 448653841 |
|---|---|
| Sist endret | 03. feb. 2026 10:52 |
| Referanse | 201260025 |
Annonsene kan være mangelfulle i forhold til lovpålagt opplysningsplikt. Før bindende avtale inngås oppfordres interessenter til å innhente komplett informasjon fra meglerforetaket, selger eller utleier.




































