Bildegalleri

EiendomsMegler 1 v/Martin Mitani har gleden av å presentere Prinsens Gate 61! Foto Krokstad & Nervik v/ Jens Martin Nervik.
Midtbyen/Trondheim sentrum
SJARMERENDE UTSIKTSLEILIGHET MED EN SENTRAL BELIGGENHET| "Alt" inkl. i fk| Terrasse på 6,8 m²| Ingen dokument avgift.
Prisantydning2 590 000 kr
Nøkkelinfo
- Boligtype
- Leilighet
- Eieform
- Andel
- Soverom
- 0
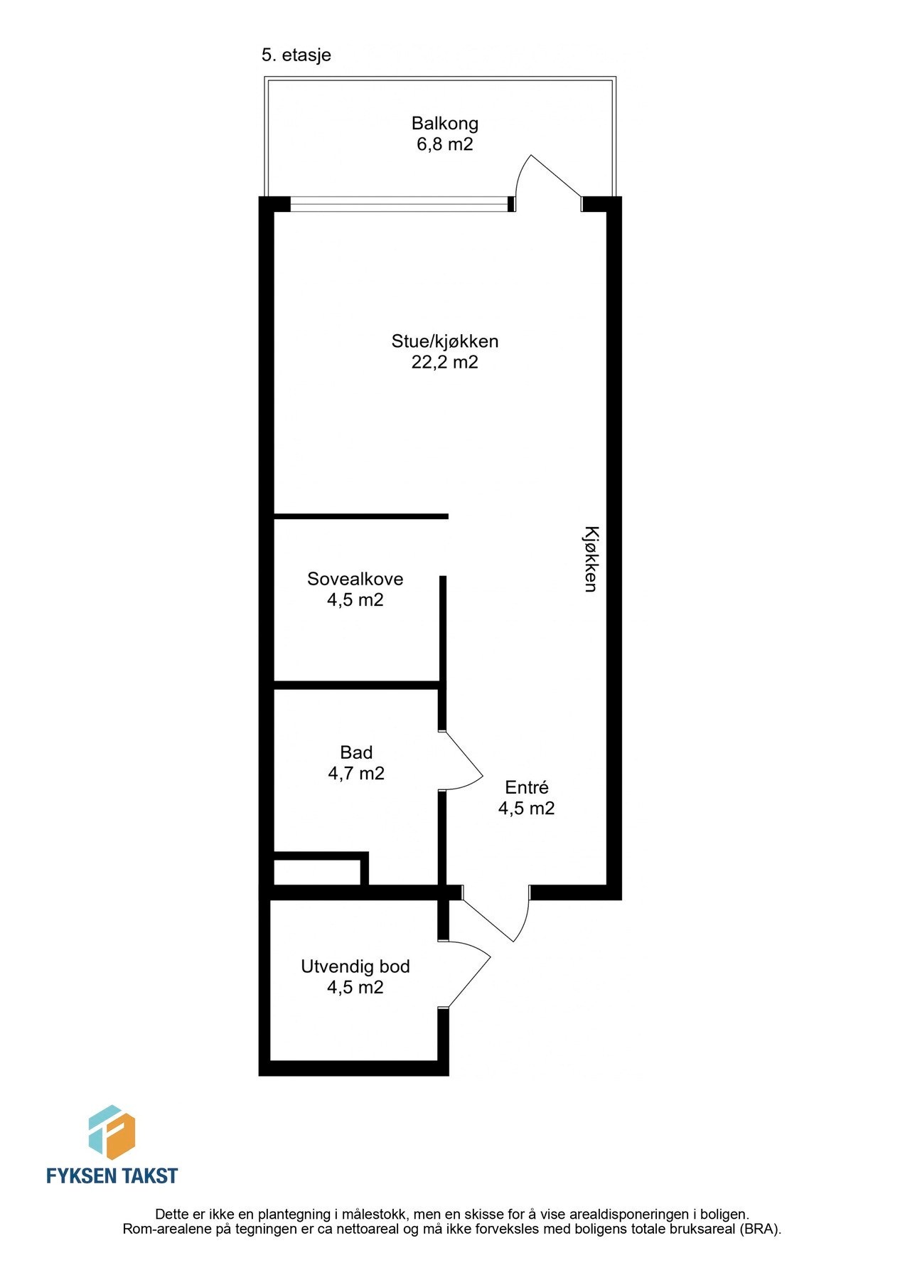
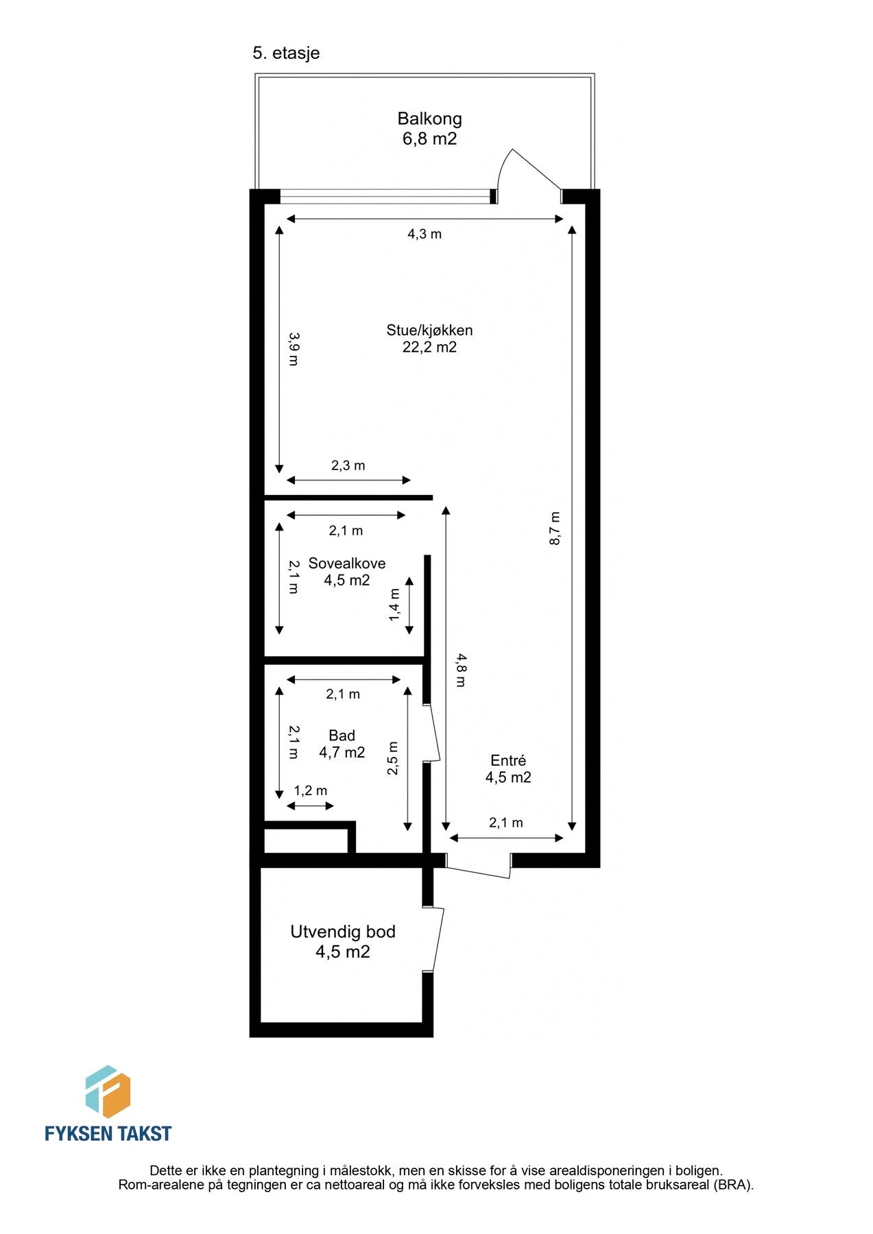
- Internt bruksareal
- 37 m² (BRA-i)
- Bruksareal
- 42 m²
- Eksternt bruksareal
- 5 m² (BRA-e)
- Balkong/Terrasse
- 7 m² (TBA)
- Etasje
- 5
- Byggeår
- 2005
- Energimerking
- B - Mørkegrønn
- Tomteareal
- 2 301 m² (eiet)
Fasiliteter
Balkong/Terrasse
Kabel-TV
Heis
Parkett
Utsikt
Sentralt
Bredbåndstilknytning
Rolig
Balansert ventilasjon
Visning
tirsdag, 10. februar
15:30 – 16:15
Våre visninger har påmelding. Dette gjør vi for å kunne yte bedre service for våre kunder. Verdifullt for boligkjøper og for oss. Vi anbefaler at salgsoppgaven lastes ned digitalt før visning, og ring oss gjerne på forhånd for spørsmål om boligen. Passer ikke angitt tidspunkt, ta kontakt så finner vi en løsning. Skulle det mot formodning ikke være påmeldte til angitt visningstidspunkt vil ikke visning bli gjennomført.
Om boligen
EiendomsMegler 1 v/ Martin Mitani har gleden av å presentere en sjarmerende utsiktsleilighet i Prinsens Gate 61.
Leiligheten har en sentral beliggenhet i Trondheim sentrum, med umiddelbar nærhet til studiesteder som NTNU og BI. De store vindusflatene kombinert med beliggenhet i 5.etg, bidrar til en lett og luftig atmosfære. Leiligheten er en del av det veldrevne Sentralbadet borettslag.
Kvaliteter verdt å fremheve:
Leiligheten har en sentral beliggenhet i Trondheim sentrum, med umiddelbar nærhet til studiesteder som NTNU og BI. De store vindusflatene kombinert med beliggenhet i 5.etg, bidrar til en lett og luftig atmosfære. Leiligheten er en del av det veldrevne Sentralbadet borettslag.
Kvaliteter verdt å fremheve:
- Effektiv planløsning med flere møbleringsmuligheter.
- Beliggenhet i 5.etg.
- Energiklasse Grønn B.
- Fjernvarme, strøm, kommunale avgifter og internett inkl. i felleskostnadene.
- IN-ordning.
- Heis i bygget.
- Egen terrasse på nesten 7 m².
- Sykkel- og gåavstand til det aller meste av servicefasiliteter og studiesteder.
- Mulighet til å leie parkeringsplass i Sentralbadet p-hus.
Velkommen til en hyggelig visning!
NB: Knappen for å vise hele beskrivelsen har kun en visuell effekt.
NB: Knappen for å vise hele beskrivelsen har kun en visuell effekt.
Salgsoppgaven beskriver vesentlig og lovpålagt informasjon om eiendommen
Se komplett salgsoppgaveNyttige lenker
Nærområdet
EiendomsMegler 1 Trondheim sentrum, Søndre gate
Vi loser deg trygt gjennom hele boligsalget
Annonseinformasjon
| FINN-kode | 448646802 |
|---|---|
| Sist endret | 02. feb. 2026 11:19 |
| Referanse | 39260018 |
Annonsene kan være mangelfulle i forhold til lovpålagt opplysningsplikt. Før bindende avtale inngås oppfordres interessenter til å innhente komplett informasjon fra meglerforetaket, selger eller utleier.

























