Bildegalleri

EiendomsMegler1 v/Kristian Sundland har gleden av å presentere Carl Lønseths veg 7!
Charlottenlund
ROMSLIG OG INNHOLDSRIK ENEBOLIG PÅ 203m² BRA-i | 4 soverom | Solrike uteplasser | Balkong og terrasse | Tomt på 911m²
Prisantydning8 290 000 kr
Nøkkelinfo
- Boligtype
- Enebolig
- Eieform
- Eier (Selveier)
- Soverom
- 4
- Internt bruksareal
- 203 m² (BRA-i)
- Bruksareal
- 207 m²
- Eksternt bruksareal
- 4 m² (BRA-e)
- Balkong/Terrasse
- 42 m² (TBA)
- Byggeår
- 1987
- Energimerking
- D - Gul
- Rom
- 5
- Tomteareal
- 911 m² (eiet)
Fasiliteter
Barnevennlig
Balkong/Terrasse
Offentlig vann/kloakk
Parkett
Peis/Ildsted
Turterreng
Utsikt
Sentralt
Rolig
Visning
mandag, 23. februar
16:15 – 17:00
Våre visninger har påmelding. Dette gjør vi for å kunne yte bedre service for våre kunder. Verdifullt for boligkjøper og for oss. Vi anbefaler at salgsoppgaven lastes ned digitalt før visning, og ring oss gjerne på forhånd for spørsmål om boligen. Passer ikke angitt tidspunkt, ta kontakt så finner vi en løsning. Skulle det mot formodning ikke være påmeldte til angitt visningstidspunkt vil ikke visning bli gjennomført.
Om boligen
EiendomsMegler 1 v/ Kristian Sundland har gleden av å presentere en romslig og familievennlig enebolig med attraktiv beliggenhet øverst på Jakobsli!
Her får du muligheten til å sikre deg en innholdsrik enebolig beliggende i et svært rolig og skjermet boområde med lite gjennomgangstrafikk - ideelt for barnefamilier. Eiendommen har en sentral, men tilbaketrukket beliggenhet med kort vei til barnehager, skoler, dagligvarebutikk, treningssenter samt flotte tur- og rekreasjonsområder. Gangavstand til både barne- og ungdomsskole gir en enkel og praktisk hverdag.
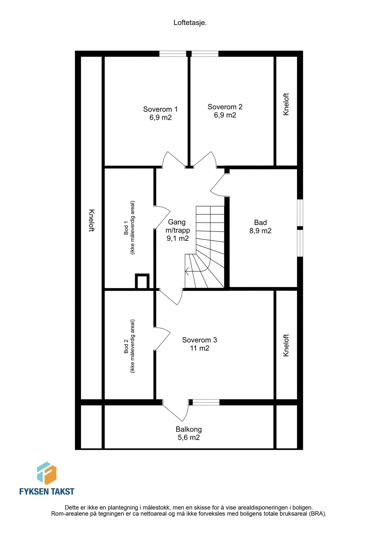
Boligen fremstår som funksjonell og godt tilpasset familieliv, med gode oppholdsrom og fine lysforhold. Hoveddelen byr på en stor og lys stue med utgang til solrik terrasse på ca. 35,8m², samt kjøkken med gode arbeidsflater og naturlig plass for spisebord. I hovedetasjen finnes det også soverom og toalett. Loftetasjen inneholder tre soverom, bad og gode oppbevaringsløsninger, samt utgang til herlig balkong. Sammen med en romslig tomt på hele 911 m² med gode solforhold, gir dette gode og fleksible løsninger for barnefamilier.
Av boligens mange kvaliteter kan man blant annet trekke frem:
Velkommen til en hyggelig visning!
Her får du muligheten til å sikre deg en innholdsrik enebolig beliggende i et svært rolig og skjermet boområde med lite gjennomgangstrafikk - ideelt for barnefamilier. Eiendommen har en sentral, men tilbaketrukket beliggenhet med kort vei til barnehager, skoler, dagligvarebutikk, treningssenter samt flotte tur- og rekreasjonsområder. Gangavstand til både barne- og ungdomsskole gir en enkel og praktisk hverdag.
Boligen fremstår som funksjonell og godt tilpasset familieliv, med gode oppholdsrom og fine lysforhold. Hoveddelen byr på en stor og lys stue med utgang til solrik terrasse på ca. 35,8m², samt kjøkken med gode arbeidsflater og naturlig plass for spisebord. I hovedetasjen finnes det også soverom og toalett. Loftetasjen inneholder tre soverom, bad og gode oppbevaringsløsninger, samt utgang til herlig balkong. Sammen med en romslig tomt på hele 911 m² med gode solforhold, gir dette gode og fleksible løsninger for barnefamilier.
Av boligens mange kvaliteter kan man blant annet trekke frem:
- Attraktiv og barnevennlig beliggenhet i et rolig og skjermet boområde
- Innholdsrik enebolig med familievennlig planløsning
- Stor stue med direkte utgang til solrik terrasse på ca. 35,8m²
- Fire gode soverom og herlig balkong
- Romslig tomt på 911m² med gode solforhold
- Nærhet til skoler, barnehager, servicetilbud og flotte turområder
Velkommen til en hyggelig visning!
NB: Knappen for å vise hele beskrivelsen har kun en visuell effekt.
NB: Knappen for å vise hele beskrivelsen har kun en visuell effekt.
Salgsoppgaven beskriver vesentlig og lovpålagt informasjon om eiendommen
Se komplett salgsoppgaveNyttige lenker
Nærområdet
EiendomsMegler 1 Grilstadporten
Vi loser deg trygt gjennom hele boligsalget
Annonseinformasjon
| FINN-kode | 448640234 |
|---|---|
| Sist endret | 12. feb. 2026 08:09 |
| Referanse | 33260007 |
Annonsene kan være mangelfulle i forhold til lovpålagt opplysningsplikt. Før bindende avtale inngås oppfordres interessenter til å innhente komplett informasjon fra meglerforetaket, selger eller utleier.

















































