Bildegalleri

Velkommen til Wittenberg 5A - en moderne og smakfull enebolig i rolig og etablert område. Foto: Espen Gees
Moderne og familievennlig enebolig på flott utsiktstomt innerst i blindvei - med garasje og elbillader
Prisantydning5 300 000 kr
Nøkkelinfo
- Boligtype
- Enebolig
- Eieform
- Eier (Selveier)
- Soverom
- 4
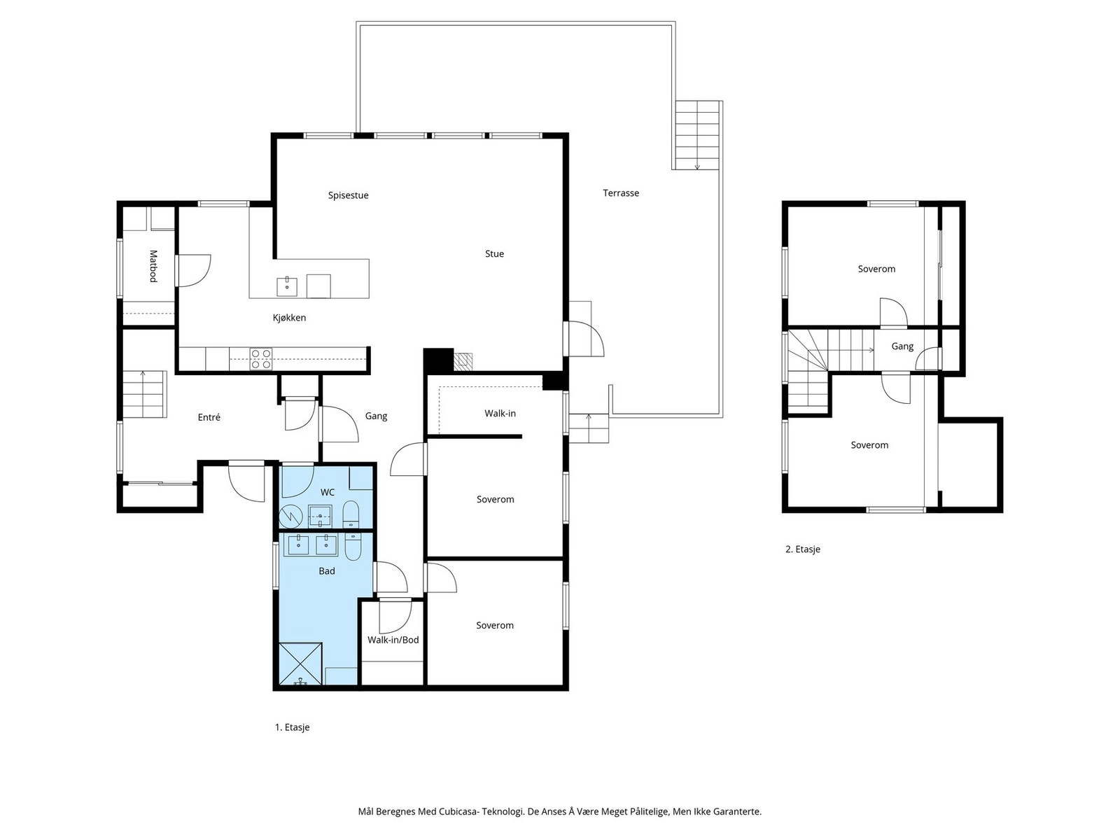
- Internt bruksareal
- 147 m² (BRA-i)
- Bruksareal
- 147 m²
- Eksternt bruksareal
- 26 m² (BRA-e)
- Balkong/Terrasse
- 66 m² (TBA)
- Byggeår
- 1970
- Energimerking
- D - Gul
- Rom
- 6
- Tomteareal
- 878 m² (eiet)
Fasiliteter
Barnevennlig
Balkong/Terrasse
Garasje/P-plass
Offentlig vann/kloakk
Peis/Ildsted
Turterreng
Aircondition
Sentralt
Moderne
Rolig
Lademulighet
Visning
mandag, 09. februar
17:00 – 18:00
Velkommen til visning!
Alle våre visninger har påmelding. På denne måten sikrer vi at megler har god oversikt og tid til å imøtekomme alle interessenter på beste måte. Dette er veldig verdifullt for boligkjøpere og for oss. Det er enkelt å melde seg på, og du kan like enkelt melde deg av. Kontakt også gjerne megler i forkant av visning dersom du har spørsmål.
Om boligen
Wittenberg 5A er en attraktiv og velholdt enebolig beliggende i et rolig og etablert boligområde i Fredrikstad. Eiendommen ligger skjermet til i blindvei, noe som gir et trygt og privat bomiljø, samtidig som det er kort vei til daglige servicetilbud, skoler, barnehager og kollektivtransport. Med enkel adkomst til hovedveinettet er det gode pendlermuligheter til både Fredrikstad sentrum, Kalnes og omkringliggende områder. Nærområdet byr på grønne omgivelser og turmuligheter.
Boligen fremstår gjennomgående tiltalende med en helhetlig og moderne utforming. Kjøkkenet er nytt fra 2024 og har en naturlig tilknytning til oppholdsrommene, mens stuen har gode møbleringsmuligheter og direkte adkomst til uteområdene. Eiendommen har en romslig og usjenert hage med flere uteplasser og gode solforhold gjennom hele dagen, som gir fine muligheter for både avslapning og sosiale sammenkomster.
Velkommen til visning!
Boligen fremstår gjennomgående tiltalende med en helhetlig og moderne utforming. Kjøkkenet er nytt fra 2024 og har en naturlig tilknytning til oppholdsrommene, mens stuen har gode møbleringsmuligheter og direkte adkomst til uteområdene. Eiendommen har en romslig og usjenert hage med flere uteplasser og gode solforhold gjennom hele dagen, som gir fine muligheter for både avslapning og sosiale sammenkomster.
Velkommen til visning!
NB: Knappen for å vise hele beskrivelsen har kun en visuell effekt.
NB: Knappen for å vise hele beskrivelsen har kun en visuell effekt.
Salgsoppgaven beskriver vesentlig og lovpålagt informasjon om eiendommen
Se komplett salgsoppgaveNyttige lenker
Nærområdet

PrivatMegleren Allé
Kun det beste på dine vegne
Annonseinformasjon
| FINN-kode | 448639585 |
|---|---|
| Sist endret | 31. jan. 2026 13:42 |
| Referanse | 186251035 |
Annonsene kan være mangelfulle i forhold til lovpålagt opplysningsplikt. Før bindende avtale inngås oppfordres interessenter til å innhente komplett informasjon fra meglerforetaket, selger eller utleier.
























































