Bildegalleri

Velkommen til Langgårdslia 10 - en nyere enebolig fra 2022 med høy standard og fin arkitektonisk utforming, utsikt og sol!
Langgårdslia / Slevik
Sjønær villa fra 2022 med høy standard, fantastisk utsikt og opp til 8 meter takhøyde! Dobbelgarasje, treningsrom m.m
Prisantydning10 990 000 kr
Nøkkelinfo
- Boligtype
- Enebolig
- Eieform
- Selveier
- Soverom
- 4
- Internt bruksareal
- 185 m² (BRA-i)
- Bruksareal
- 252 m²
- Eksternt bruksareal
- 67 m² (BRA-e)
- Balkong/Terrasse
- 74 m² (TBA)
- Etasje
- 2
- Byggeår
- 2022
- Energimerking
- Tomteareal
- 747 m² (eiet)
Fasiliteter
Balkong/Terrasse
Barnevennlig
Garasje/P-plass
Hage
Offentlig vann/kloakk
Peis/Ildsted
Rolig
Lademulighet
Balansert ventilasjon
Visning
søndag, 31. mai
12:00 – 12:45
Velkommen til visning! Meld deg på ved å trykke "visningspåmelding" i våre boligannonser. Ta gjerne kontakt med megler i forkant av visningen om du har spørsmål.
VisningspåmeldingOm boligen
Eiendommen ligger i rolige og idylliske omgivelser på Slevik. Solfylt utsiktstomt med kort vei til barnehager, barneskole og fritidsaktiviteter
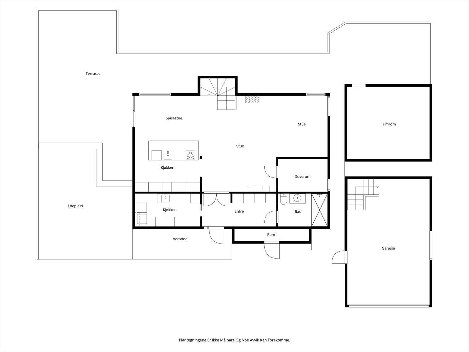
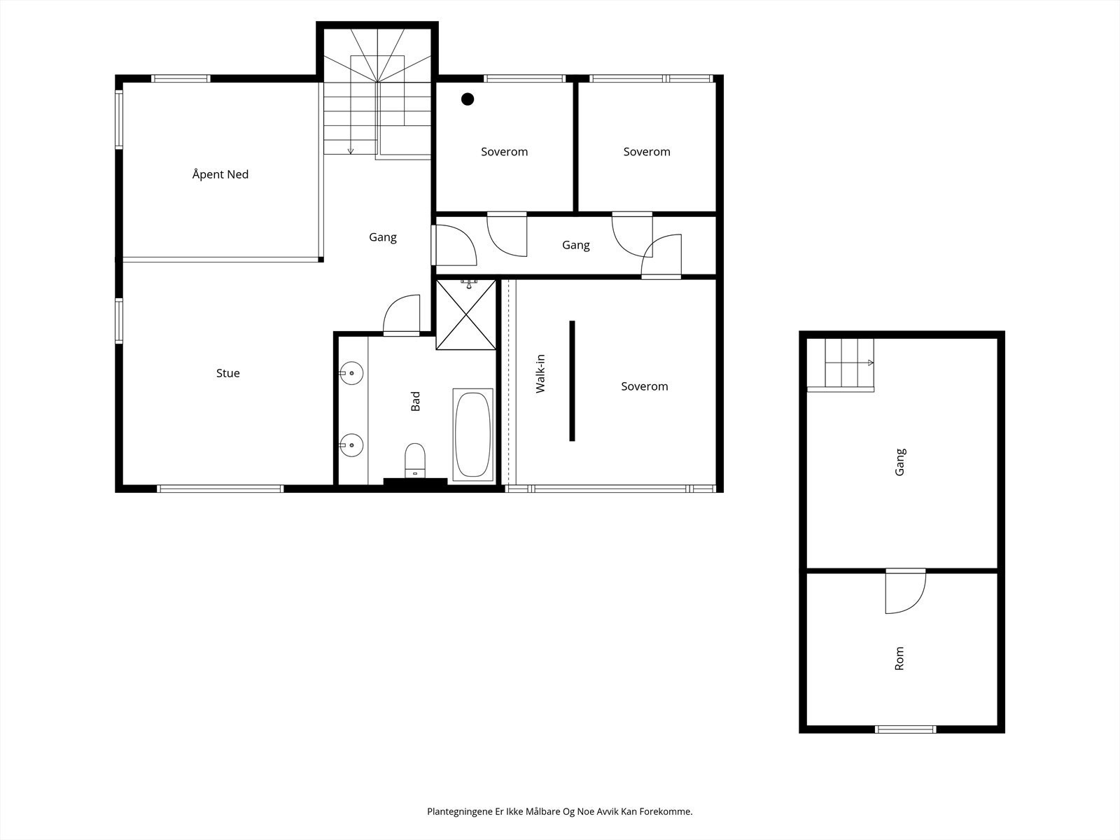
Velkommen til Langgårdslia 10, en særdeles flott enebolig fra 2022, fordelt over to plan. 1. etasje inneholder entré, stue/kjøkken, soverom, vaskerom, bad og bod med utvendig adkomst. I 2. etasje finner du tre soverom, bad og TV-stue. Boligen har en stor terrasse, bygget i flere nivåer på hele 74 m2 fra stue/kjøkken. Eiendommen inkl. en isolert garasje med el-bil lader og lagringsloft, i tillegg til sportsbod som er innredet som sprekt treningsrom! Boligen har moderne fasiliteter som gasspeis, varmepumpe og smart gulvvarme. Fortsatt omfattet av nybygg-garanti på opprinnelig 5 år fra ferdigstillelse.
Boligen presenteres av Atle Horvei i DNB Eiendom
Velkommen til Langgårdslia 10, en særdeles flott enebolig fra 2022, fordelt over to plan. 1. etasje inneholder entré, stue/kjøkken, soverom, vaskerom, bad og bod med utvendig adkomst. I 2. etasje finner du tre soverom, bad og TV-stue. Boligen har en stor terrasse, bygget i flere nivåer på hele 74 m2 fra stue/kjøkken. Eiendommen inkl. en isolert garasje med el-bil lader og lagringsloft, i tillegg til sportsbod som er innredet som sprekt treningsrom! Boligen har moderne fasiliteter som gasspeis, varmepumpe og smart gulvvarme. Fortsatt omfattet av nybygg-garanti på opprinnelig 5 år fra ferdigstillelse.
Boligen presenteres av Atle Horvei i DNB Eiendom
NB: Knappen for å vise hele beskrivelsen har kun en visuell effekt.
NB: Knappen for å vise hele beskrivelsen har kun en visuell effekt.
Salgsoppgaven beskriver vesentlig og lovpålagt informasjon om eiendommen
Se komplett salgsoppgaveNyttige lenker
Nærområdet
DNB Eiendom AS
Verdifulle salg
Annonseinformasjon
| FINN-kode | 448554934 |
|---|---|
| Sist endret | 23. mai 2026 08:13 |
| Referanse | 203260014 |
Annonsene kan være mangelfulle i forhold til lovpålagt opplysningsplikt. Før bindende avtale inngås oppfordres interessenter til å innhente komplett informasjon fra meglerforetaket, selger eller utleier.











































































