Bildegalleri

Velkommen til Gartnervegen 25! Påkostet og tiltalende 3-roms leilighet med gjennomgående høy standard og ingen TG-feil!
Ottestad
Lys og moderne 3-roms leilighet med høy standard, solrik balkong og skjermet beliggenhet - Garasjeplass
Prisantydning2 790 000 kr
Nøkkelinfo
- Boligtype
- Leilighet
- Eieform
- Andel
- Soverom
- 2
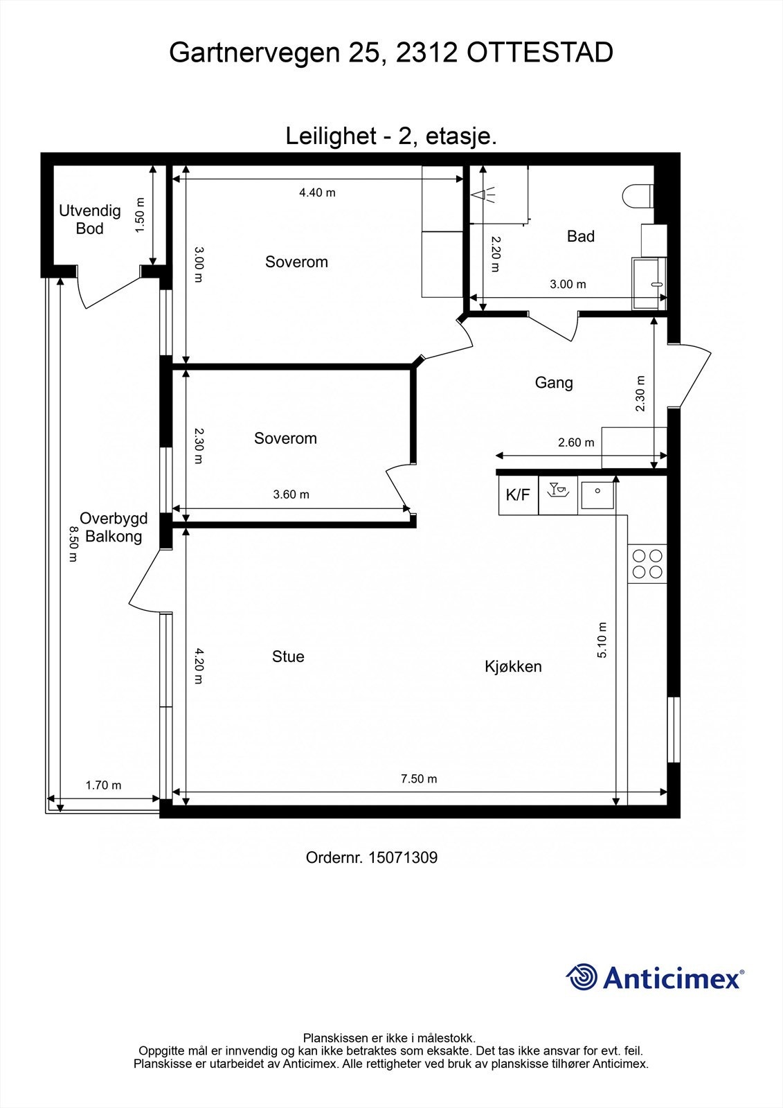
- Internt bruksareal
- 75 m² (BRA-i)
- Bruksareal
- 98 m²
- Eksternt bruksareal
- 23 m² (BRA-e)
- Balkong/Terrasse
- 14 m² (TBA)
- Etasje
- 2
- Byggeår
- 1991
- Energimerking
- Rom
- 3
- Tomteareal
- 12 314 m² (eiet)
Visning
For å delta på visning, ber vi om at du melder deg på. Da sikrer vi at du får nødvendig informasjon og at det er satt av tilstrekkelig med tid. Kontakt megler dersom annet tidspunkt ønskes. Husk å lese salgsoppgaven før visningen, så du stiller forberedt. NB. Visning utgår dersom det ikke er noen påmeldte.
Ønsker du kun å bli holdt orientert, kan du fra eiendommens hjemmeside få varsel om solgtpris, eller kontakte megler.
VisningspåmeldingOm boligen
Velkommen til Gartnervegen 25!
Påkostet og tiltalende 3-roms leilighet med gjennomgående høy standard og ingen TG-feil! Biloppstillingsplass i garasjerekke med el-billader.
Leiligheten ligger i 2. etasje og har en praktisk og romslig planløsning som passer for både førstegangskjøpere, par og små familier.
En rekke oppgraderinger som blant annet nytt balansert ventilasjonsanlegg, utskifting av alle vinduer og ny isolering og vegg i stue.
Attraktiv beliggenhet i hyggelig og veldrevet borettslag nederst i Bekkelaget. Stille og rolig område uten gjennomgangstrafikk.
Omgitt av grønne uteområder og med kort vei til både barnehager, dagligvarebutikker og fine turmuligheter.
Velkommen til en hyggelig visning!
Påkostet og tiltalende 3-roms leilighet med gjennomgående høy standard og ingen TG-feil! Biloppstillingsplass i garasjerekke med el-billader.
Leiligheten ligger i 2. etasje og har en praktisk og romslig planløsning som passer for både førstegangskjøpere, par og små familier.
En rekke oppgraderinger som blant annet nytt balansert ventilasjonsanlegg, utskifting av alle vinduer og ny isolering og vegg i stue.
Attraktiv beliggenhet i hyggelig og veldrevet borettslag nederst i Bekkelaget. Stille og rolig område uten gjennomgangstrafikk.
Omgitt av grønne uteområder og med kort vei til både barnehager, dagligvarebutikker og fine turmuligheter.
Velkommen til en hyggelig visning!
NB: Knappen for å vise hele beskrivelsen har kun en visuell effekt.
NB: Knappen for å vise hele beskrivelsen har kun en visuell effekt.
Salgsoppgaven beskriver vesentlig og lovpålagt informasjon om eiendommen
Se komplett salgsoppgaveNyttige lenker
Nærområdet
Krogsveen Hamar
Verdien av en god megler.
Annonseinformasjon
| FINN-kode | 448533998 |
|---|---|
| Sist endret | 16. apr. 2026 11:47 |
| Referanse | KR65.25137 |
Annonsene kan være mangelfulle i forhold til lovpålagt opplysningsplikt. Før bindende avtale inngås oppfordres interessenter til å innhente komplett informasjon fra meglerforetaket, selger eller utleier.

























