Bildegalleri

Velkommen til Gimleveien 20A! Presentert av Malin Hveem v/Nordvik avd. Frogner. Foto: Arne Nicolai Schram
FROGNER / GIMLE
Klassisk & eksklusiv 3-roms hjørneleil. i 2etg. m/flott balkong|Utsøkt beliggenhet|Peis|God takhøyde, stukkatur & rosett
Prisantydning10 000 000 kr
Nøkkelinfo
- Boligtype
- Leilighet
- Eieform
- Eier (Selveier)
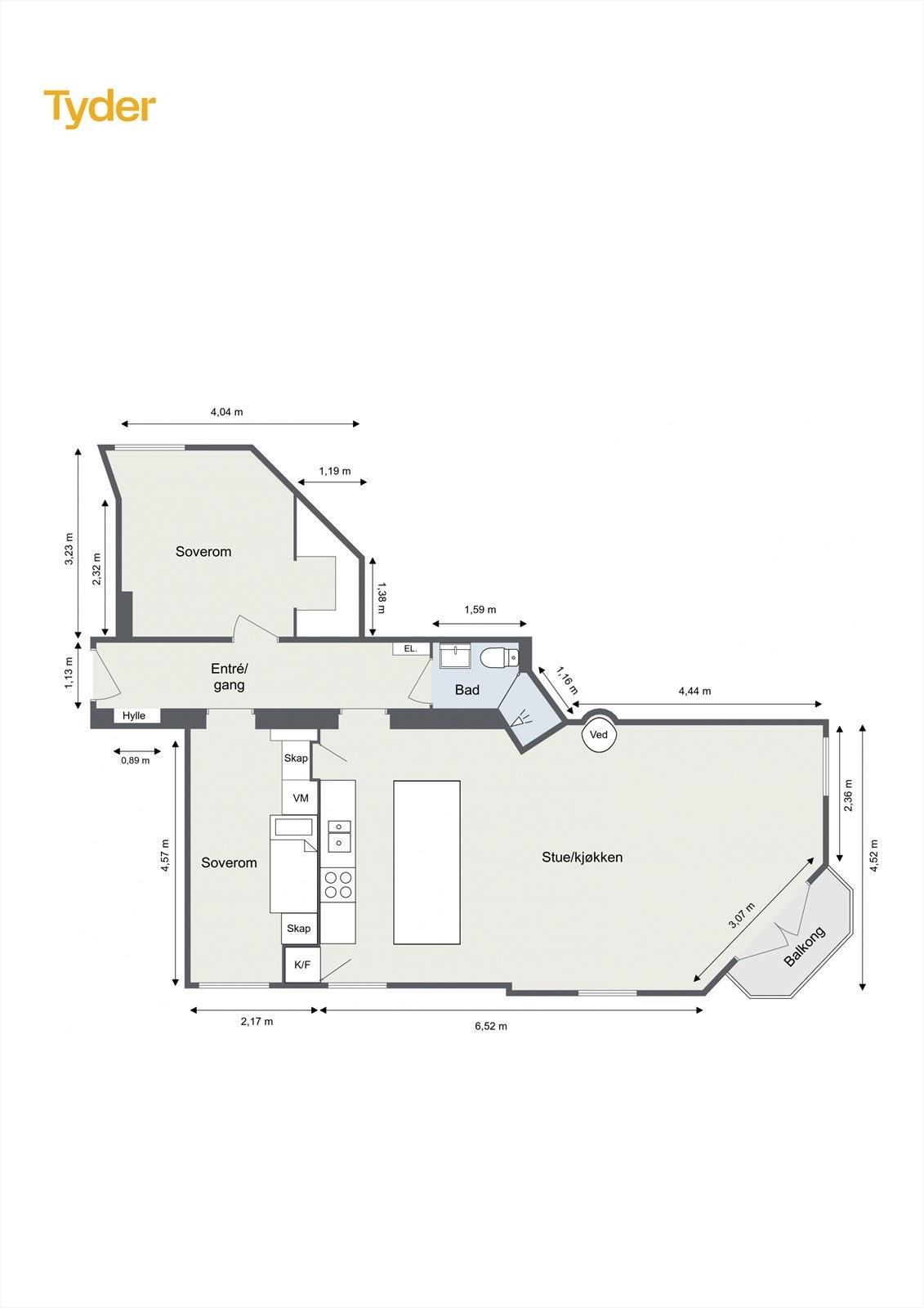
- Soverom
- 2
- Internt bruksareal
- 71 m² (BRA-i)
- Bruksareal
- 75 m²
- Eksternt bruksareal
- 4 m² (BRA-e)
- Balkong/Terrasse
- 2 m² (TBA)
- Etasje
- 2
- Byggeår
- 1895
- Energimerking
- G - Oransje
- Rom
- 3
- Tomteareal
- 428 m² (eiet)
Fasiliteter
Balkong/Terrasse
Barnevennlig
Bredbåndstilknytning
Kjæledyr tillatt
Offentlig vann/kloakk
Parkett
Peis/Ildsted
Rolig
Sentralt
Om boligen
Malin Hveem v/Nordvik Frogner har gleden av å presentere Gimleveien 20A. En svært gjennomført Frognerleilighet med ettertraktet beliggenhet. Leiligheten er pusset opp i nyere tid, oppleves eksklusiv og bærer preg av gjennomtenkte løsninger og moderne farge- og materialvalg.
Høydepunkter:
- Klassisk hjørneleilighet m/flere soner i byggets 2 etg.
- Stukkatur/rosett & takhøyde på ca. 3m målt i stue/kjøkken
- Stor stue m/peis & gode innredningsmuligheter
- Store vindusflater & godt m/naturlig lysinnslipp
- Hovedsoverom mot rolig bakgård
- Gjesterom/kontor
- Delikat bad
- Nye vinduer & balkongdør i 2025
- Klassisk balkong m/hyggelig utsyn
- Tilbaketrukket gate m/kort vei til alt
- Gode oppbevaringsmuligheter
- Ettertraktet beliggenhet, i rolig gate
- Kort vei til kollektiv T & butikker
Høydepunkter:
- Klassisk hjørneleilighet m/flere soner i byggets 2 etg.
- Stukkatur/rosett & takhøyde på ca. 3m målt i stue/kjøkken
- Stor stue m/peis & gode innredningsmuligheter
- Store vindusflater & godt m/naturlig lysinnslipp
- Hovedsoverom mot rolig bakgård
- Gjesterom/kontor
- Delikat bad
- Nye vinduer & balkongdør i 2025
- Klassisk balkong m/hyggelig utsyn
- Tilbaketrukket gate m/kort vei til alt
- Gode oppbevaringsmuligheter
- Ettertraktet beliggenhet, i rolig gate
- Kort vei til kollektiv T & butikker
NB: Knappen for å vise hele beskrivelsen har kun en visuell effekt.
NB: Knappen for å vise hele beskrivelsen har kun en visuell effekt.
Salgsoppgaven beskriver vesentlig og lovpålagt informasjon om eiendommen
Se komplett salgsoppgaveNyttige lenker
Nærområdet
Nordvik Frogner
Annonseinformasjon
| FINN-kode | 448395974 |
|---|---|
| Sist endret | 01. feb. 2026 11:04 |
| Referanse | 14-0702/25 |
Annonsene kan være mangelfulle i forhold til lovpålagt opplysningsplikt. Før bindende avtale inngås oppfordres interessenter til å innhente komplett informasjon fra meglerforetaket, selger eller utleier.













































