Bildegalleri

Topdalsveien 248
Stor enebolig i Tveit - meste på ett plan- meget romslige og nesten flat tomt, hage - dobbel garasje- solrikt
Prisantydning4 690 000 kr
Nøkkelinfo
- Boligtype
- Enebolig
- Eieform
- Eier (Selveier)
- Soverom
- 3
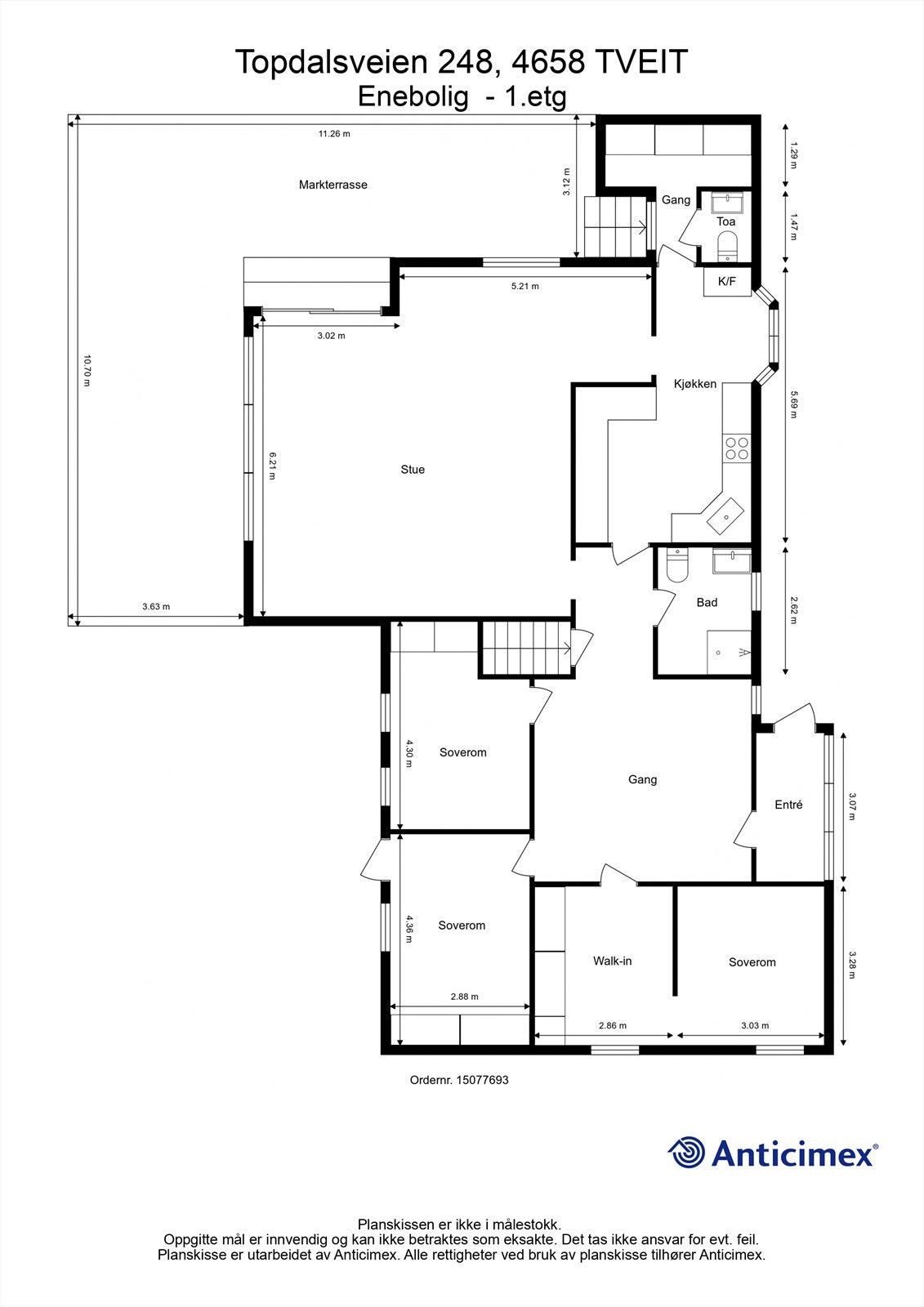
- Internt bruksareal
- 278 m² (BRA-i)
- Bruksareal
- 330 m²
- Eksternt bruksareal
- 52 m² (BRA-e)
- Balkong/Terrasse
- 66 m² (TBA)
- Etasje
- 2
- Byggeår
- 1962
- Energimerking
- G - Oransje
- Rom
- 5
- Tomteareal
- 1 234 m² (eiet)
Fasiliteter
Alpinanlegg
Balkong/Terrasse
Barnevennlig
Bredbåndstilknytning
Garasje/P-plass
Golfbane
Hage
Kjæledyr tillatt
Offentlig vann/kloakk
Peis/Ildsted
Rolig
Utsikt
Bademulighet
Fiskemulighet
Turterreng
Visning
tirsdag, 10. februar
16:15 – 17:15
For å delta på visning, ber vi om at du melder deg på. Da sikrer vi at du får nødvendig informasjon og at det er satt av tilstrekkelig med tid. Kontakt megler dersom annet tidspunkt ønskes. Husk å lese salgsoppgaven før visningen, så du stiller forberedt. NB. Visning utgår dersom det ikke er noen påmeldte.
Ønsker du kun å bli holdt orientert, kan du fra eiendommens hjemmeside få varsel om solgtpris, eller kontakte megler.
VisningspåmeldingOm boligen
Krogsveen ved Jon Fadnes har gleden av å presentere denne flott eiendommen på Tveit/Kvalemoen nær Solsetta.
Eiendommen er meget romslig og går over to etg. Luftig og åpen løsning med store vindusflater i stuen skaper en god atmosfære.
Boligen har en god planløsning og passer godt til barnefamilier.
Med boligen følger en stor dobbel garasje samt godt med biloppstillingsplasser på egen tomt.
Hagen er meget pent opparbeidet og innehar store flotte grøntområder. Her har du sol hele dagen til langt på kveld.
Fra boligen og hagen har du pen utsikt utover grønt og friområde.
Eiendommen er av det eldre slaget, så det må forventes oppgradering og moderniseringer.
Plassen er unik og for de rette kan dette fortsette å være drømmeplassen.
Velkommen til visning!
Eiendommen er meget romslig og går over to etg. Luftig og åpen løsning med store vindusflater i stuen skaper en god atmosfære.
Boligen har en god planløsning og passer godt til barnefamilier.
Med boligen følger en stor dobbel garasje samt godt med biloppstillingsplasser på egen tomt.
Hagen er meget pent opparbeidet og innehar store flotte grøntområder. Her har du sol hele dagen til langt på kveld.
Fra boligen og hagen har du pen utsikt utover grønt og friområde.
Eiendommen er av det eldre slaget, så det må forventes oppgradering og moderniseringer.
Plassen er unik og for de rette kan dette fortsette å være drømmeplassen.
Velkommen til visning!
NB: Knappen for å vise hele beskrivelsen har kun en visuell effekt.
NB: Knappen for å vise hele beskrivelsen har kun en visuell effekt.
Salgsoppgaven beskriver vesentlig og lovpålagt informasjon om eiendommen
Se komplett salgsoppgaveNyttige lenker
Nærområdet
Krogsveen Kristiansand
Verdien av en god megler.
Annonseinformasjon
| FINN-kode | 448382751 |
|---|---|
| Sist endret | 02. feb. 2026 11:21 |
| Referanse | KR31.25231 |
Annonsene kan være mangelfulle i forhold til lovpålagt opplysningsplikt. Før bindende avtale inngås oppfordres interessenter til å innhente komplett informasjon fra meglerforetaket, selger eller utleier.











































