Bildegalleri

Nordvik Ski og Ås v/ Silje Byman har gleden av å presentere Nylenda 2 - Velkommen! Foto: Marie Waagan.
ÅS / RUSTAD
Romslig enebolig m/hybeldel og leieinntekter på 18.000/mnd | 7 soverom | Tomt på 1072 kvm | Garasje | Oppgraderingsbehov
Prisantydning7 490 000 kr
Nøkkelinfo
- Boligtype
- Enebolig
- Eieform
- Eier (Selveier)
- Soverom
- 7
- Internt bruksareal
- 219 m² (BRA-i)
- Bruksareal
- 234 m²
- Eksternt bruksareal
- 15 m² (BRA-e)
- Balkong/Terrasse
- 58 m² (TBA)
- Etasje
- 2
- Byggeår
- 1971
- Energimerking
- D - Gul
- Rom
- 9
- Tomteareal
- 1 072 m² (eiet)
Om boligen
Nordvik Ski og Ås v/ Silje Byman har gleden av å presentere Nylenda 2 - En romslig enebolig i et meget attraktivt boligområde, i kort vei fra det du måtte trenge i hverdagen!
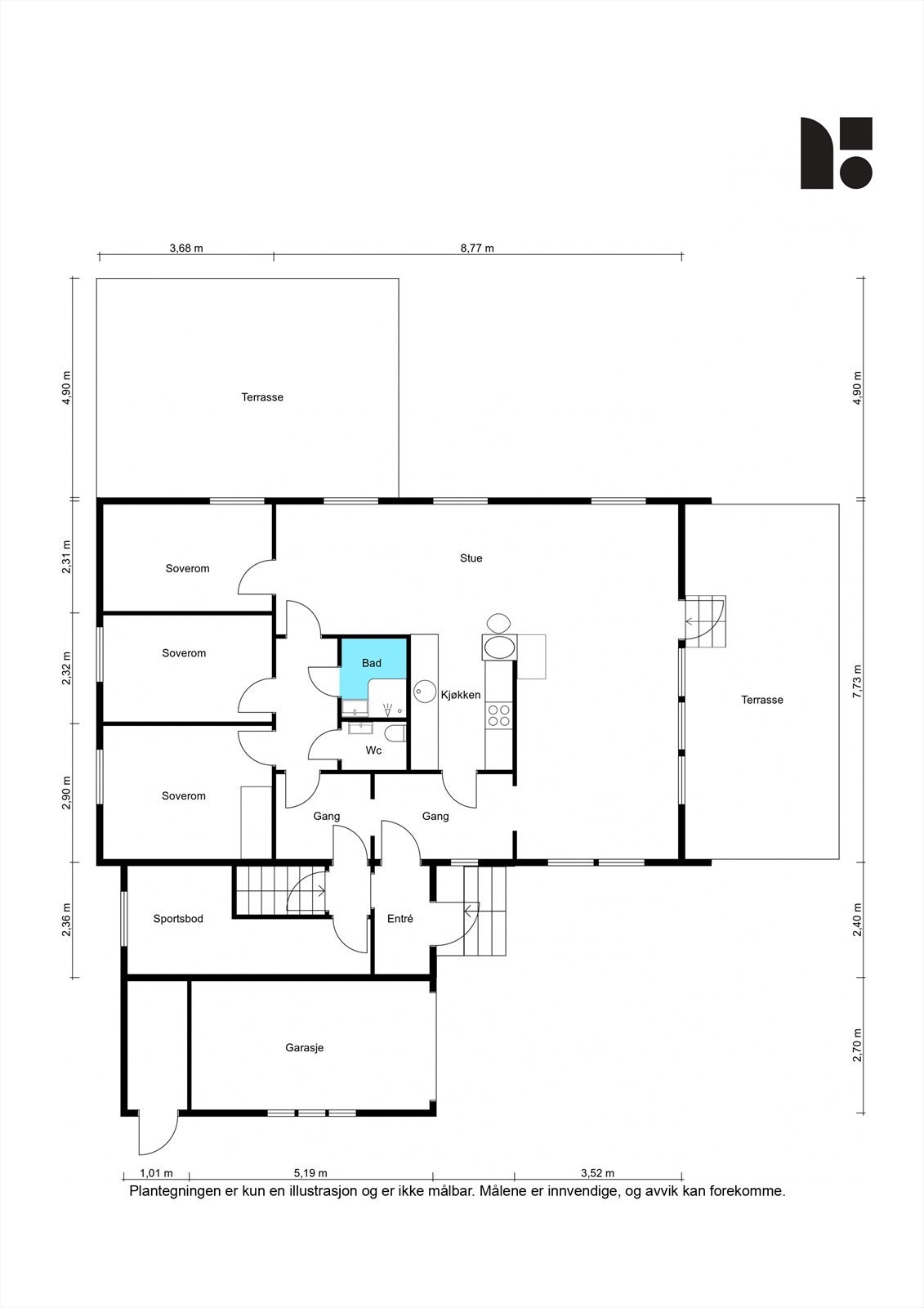
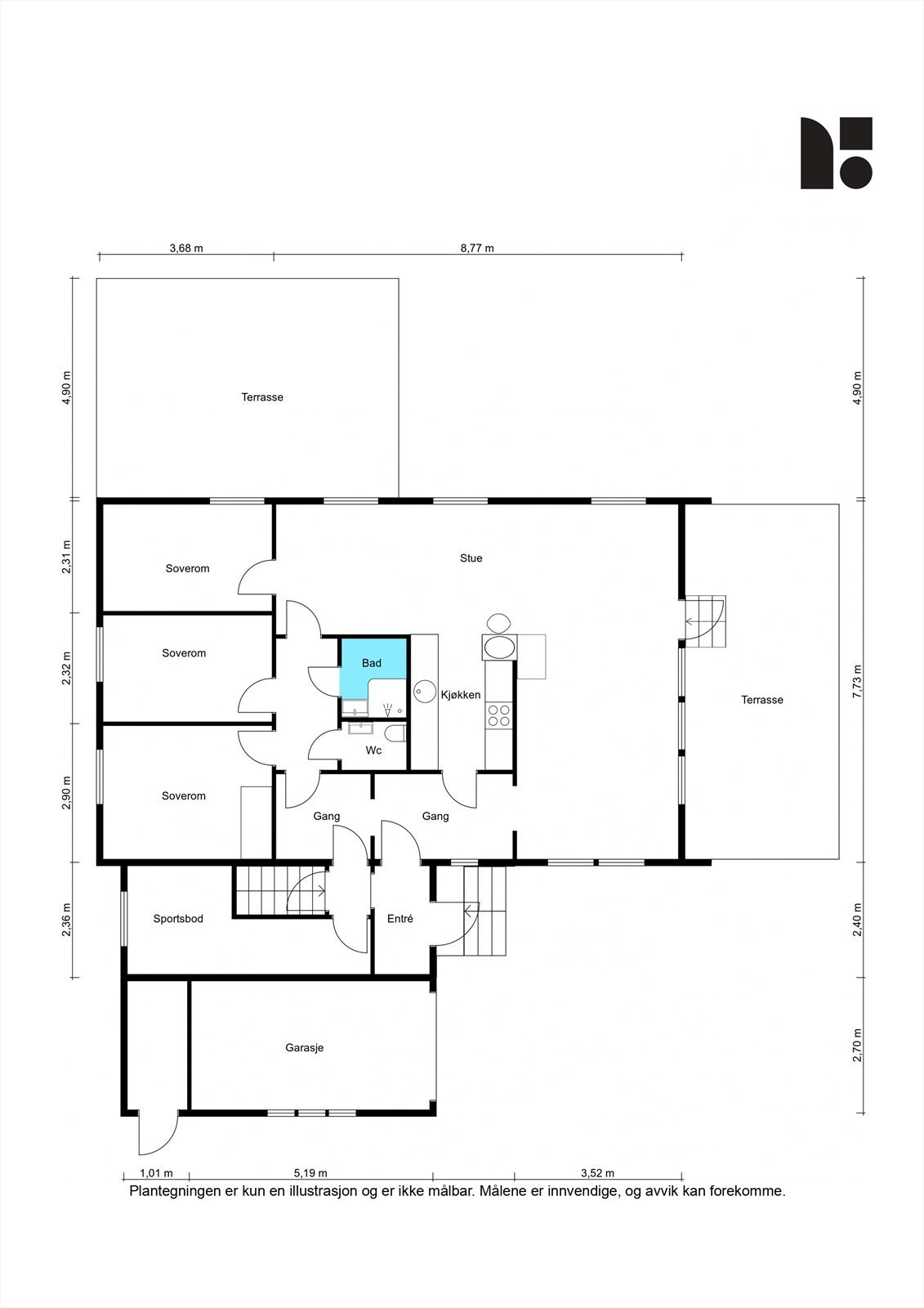
Planløsningen gir god plass til hele familien. 1.etasje kan by på 3 soverom, innvendig bod, separat wc og baderom, kjøkken og stor stue med god plass til flere møbleringsmuligheter. Underetasjen er utleid for kr 18.000,-/mnd og inneholder stue/kjøkken, baderom og 4 soverom.
Kort fortalt:
- Hjørnetomt på 1072 kvm.
- En god planløsning, og med oppgraderingsbehov.
- Enkel garasje i tilknytning til 1.etasje.
- Varmekabler i samtlige rom i underetasjen.
- Trygg gangvei til skoler og barnehager.
- Kort gangavstand med gode bussforbindelser til Ås og Ski.
Velkommen på visning.
Planløsningen gir god plass til hele familien. 1.etasje kan by på 3 soverom, innvendig bod, separat wc og baderom, kjøkken og stor stue med god plass til flere møbleringsmuligheter. Underetasjen er utleid for kr 18.000,-/mnd og inneholder stue/kjøkken, baderom og 4 soverom.
Kort fortalt:
- Hjørnetomt på 1072 kvm.
- En god planløsning, og med oppgraderingsbehov.
- Enkel garasje i tilknytning til 1.etasje.
- Varmekabler i samtlige rom i underetasjen.
- Trygg gangvei til skoler og barnehager.
- Kort gangavstand med gode bussforbindelser til Ås og Ski.
Velkommen på visning.
NB: Knappen for å vise hele beskrivelsen har kun en visuell effekt.
NB: Knappen for å vise hele beskrivelsen har kun en visuell effekt.
Salgsoppgaven beskriver vesentlig og lovpålagt informasjon om eiendommen
Se komplett salgsoppgaveNyttige lenker
Nærområdet
Nordvik Ski og Ås
Vi vet hva det er verdt
Annonseinformasjon
| FINN-kode | 448380137 |
|---|---|
| Sist endret | 01. feb. 2026 04:03 |
| Referanse | 46-0008/25 |
Annonsene kan være mangelfulle i forhold til lovpålagt opplysningsplikt. Før bindende avtale inngås oppfordres interessenter til å innhente komplett informasjon fra meglerforetaket, selger eller utleier.











































