Bildegalleri

Kanalbyen -De tre søstre
NY LEKKER 172 M2 EIERLEILIGHET (HJØRNE) I 1 LINJE M/PANORAMAUTSIKT-2 STORE SOLRIKE TERRASSER-STOR P-PLASS-HEIS-LAVE OMK!
Prisantydning17 890 000 kr
Nøkkelinfo
- Boligtype
- Leilighet
- Eieform
- Eier (Selveier)
- Soverom
- 4
- Internt bruksareal
- 172 m² (BRA-i)
- Bruksareal
- 186 m²
- Eksternt bruksareal
- 14 m² (BRA-e)
- Balkong/Terrasse
- 34 m² (TBA)
- Etasje
- 13
- Byggeår
- 2025
- Energimerking
- A - Mørkegrønn
- Rom
- 5
- Tomteareal
- 1 690 m² (eiet)
Fasiliteter
Balkong/Terrasse
Barnevennlig
Bredbåndstilknytning
Garasje/P-plass
Heis
Ingen gjenboere
Offentlig vann/kloakk
Parkett
Rolig
Sentralt
Utsikt
Vaktmester-/vektertjeneste
Bademulighet
Fiskemulighet
Turterreng
Lademulighet
Balansert ventilasjon
Om boligen
Lekker ny syd/vestvendt selveid hjørneleilighet i front mot sjøen. Nydelig sjøutsikt både innenfra og utenfra. 2 store solrike balkonger på henholdsvis ca. 22 og 12 kvm. Sol fra morgen til kveld.
Det spesielle med leiligheten er de utvalgte materialvalgene, god takhøyde i stue/kjøkken og de store vindusflatene som vender mot den flotte utsikten over Byfjorden, Oksøy, innseilinga og Bragdøya.
Heis fra hovedinngang og oppgang til leiligheten
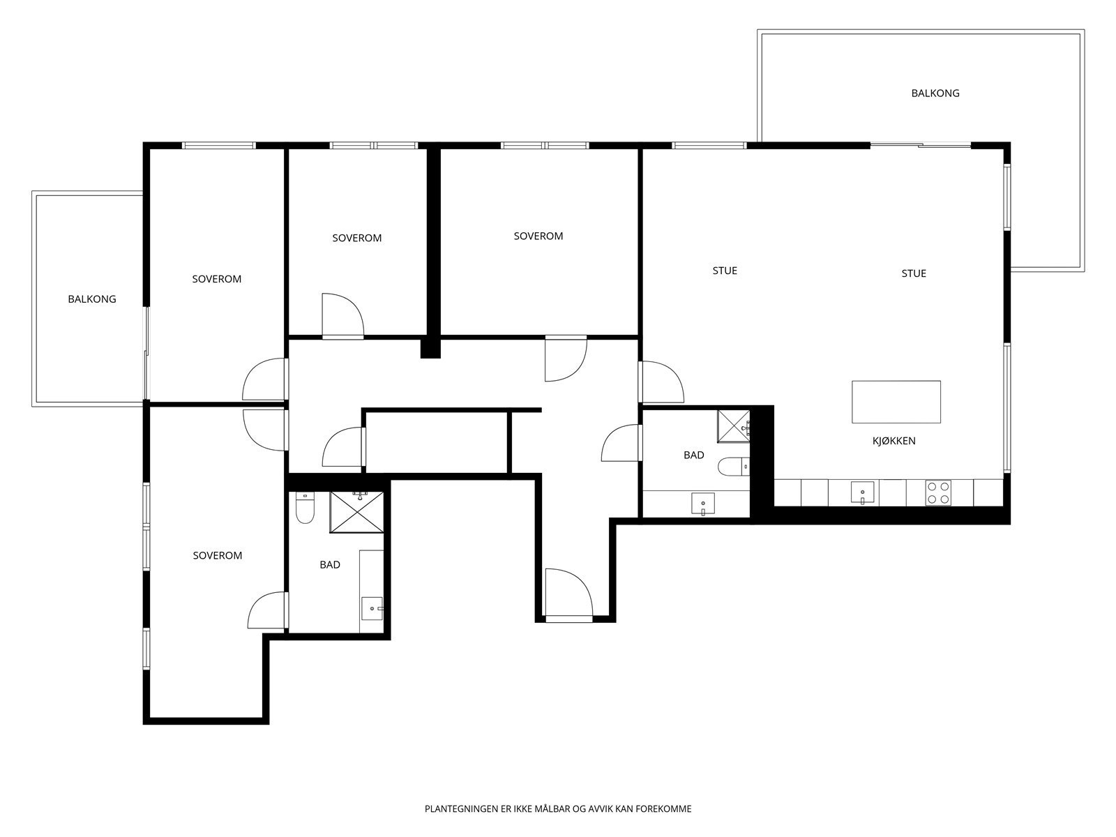
13. etasje: Gang, stor og romslig stue/kjøkken, 2 bad, separat vaskerom og 3 soverom og tv/stue/sov 4.
P-plass med opplegg til el-lader og 14 kvm. bod i 2. etg.
Det etableres to fine felles stuer, hvor det ene er koblet sammen med en hyggelig uteplass i gårdsrommet. Ved kanalen blir det flott badeplass. Kort vei til fiskebrygga, Odderøya og byen.
Det spesielle med leiligheten er de utvalgte materialvalgene, god takhøyde i stue/kjøkken og de store vindusflatene som vender mot den flotte utsikten over Byfjorden, Oksøy, innseilinga og Bragdøya.
Heis fra hovedinngang og oppgang til leiligheten
13. etasje: Gang, stor og romslig stue/kjøkken, 2 bad, separat vaskerom og 3 soverom og tv/stue/sov 4.
P-plass med opplegg til el-lader og 14 kvm. bod i 2. etg.
Det etableres to fine felles stuer, hvor det ene er koblet sammen med en hyggelig uteplass i gårdsrommet. Ved kanalen blir det flott badeplass. Kort vei til fiskebrygga, Odderøya og byen.
NB: Knappen for å vise hele beskrivelsen har kun en visuell effekt.
NB: Knappen for å vise hele beskrivelsen har kun en visuell effekt.
Salgsoppgaven beskriver vesentlig og lovpålagt informasjon om eiendommen
Se komplett salgsoppgaveNyttige lenker
Nærområdet
Eiendomsmegler Norge Kristiansand
Best der du bor
Annonseinformasjon
| FINN-kode | 448377557 |
|---|---|
| Sist endret | 31. jan. 2026 09:43 |
| Referanse | 50260030 |
Annonsene kan være mangelfulle i forhold til lovpålagt opplysningsplikt. Før bindende avtale inngås oppfordres interessenter til å innhente komplett informasjon fra meglerforetaket, selger eller utleier.










































































