Bildegalleri

Velkommen til Torshaugveien 13A - En innholdsrik og tiltalende familiebolig beliggende i barnevennlige omgivelser ved foten av Bymarka
NYBORG
Innholdsrik tomannsbolig med flotte utsiktsforhold | Garasje | 4 soverom | Barnevennlig boområde |
Prisantydning6 900 000 kr
Nøkkelinfo
- Boligtype
- Tomannsbolig
- Eieform
- Eier (Selveier)
- Soverom
- 4
- Internt bruksareal
- 164 m² (BRA-i)
- Bruksareal
- 187 m²
- Eksternt bruksareal
- 23 m² (BRA-e)
- Balkong/Terrasse
- 39 m² (TBA)
- Byggeår
- 1954
- Energimerking
- E - Oransje
- Rom
- 6
- Tomteareal
- 351 m² (eiet)
Fasiliteter
Takterrasse
Balkong/Terrasse
Barnevennlig
Bredbåndstilknytning
Garasje/P-plass
Hage
Ingen gjenboere
Kabel-TV
Offentlig vann/kloakk
Peis/Ildsted
Rolig
Sentralt
Utsikt
Lademulighet
Om boligen
Velkommen til Torshaugveien 13 A - En innholdsrik og tiltalende halvpart i barnevennlige omgivelser på Nyborg! Her har man kort avstand til alt man trenger i hverdagen med bl.a gangavstand til nærbutikk, skole, barnehage, bussforbindelse og helårs turterreng i Bymarke.
Av kvaliteter som bør fremheves:
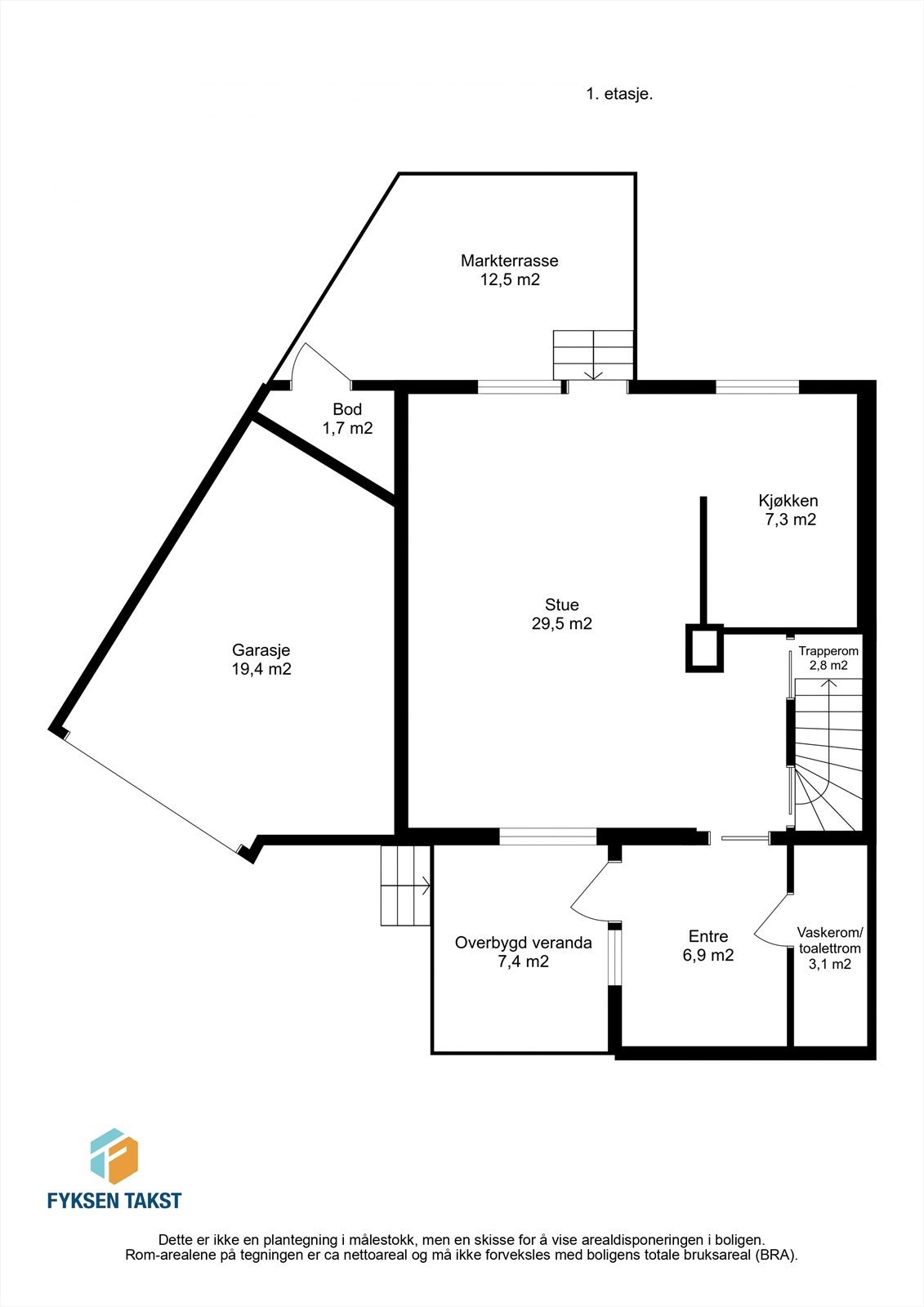
- Romslig og god planløsning med 4 soverom og bad på samme plan
- Takterrasse på hele 19,4 kvm med herlige utsiktsforhold
- Stue oppmålt til 29,5 kvm med utgang til markterrasse
- Pent kjøkken med moderne fargevalg
- Stor entré med skyvedørsgarderobe
- Romslig kjeller som også har ekstern tilkomst
- Garasje med lagringsmuligheter
- Beliggende ved foten av Bymarka med umiddelbar nærhet til skiløyper, turterreng og Kyvannet
Ta kontakt med megler for å melde deg på visning!
Av kvaliteter som bør fremheves:
- Romslig og god planløsning med 4 soverom og bad på samme plan
- Takterrasse på hele 19,4 kvm med herlige utsiktsforhold
- Stue oppmålt til 29,5 kvm med utgang til markterrasse
- Pent kjøkken med moderne fargevalg
- Stor entré med skyvedørsgarderobe
- Romslig kjeller som også har ekstern tilkomst
- Garasje med lagringsmuligheter
- Beliggende ved foten av Bymarka med umiddelbar nærhet til skiløyper, turterreng og Kyvannet
Ta kontakt med megler for å melde deg på visning!
NB: Knappen for å vise hele beskrivelsen har kun en visuell effekt.
NB: Knappen for å vise hele beskrivelsen har kun en visuell effekt.
Salgsoppgaven beskriver vesentlig og lovpålagt informasjon om eiendommen
Se komplett salgsoppgaveNyttige lenker
Nærområdet
DNB Eiendom AS
Fra hjem til hjem
Annonseinformasjon
| FINN-kode | 448371468 |
|---|---|
| Sist endret | 28. jan. 2026 15:47 |
| Referanse | 823250346 |
Annonsene kan være mangelfulle i forhold til lovpålagt opplysningsplikt. Før bindende avtale inngås oppfordres interessenter til å innhente komplett informasjon fra meglerforetaket, selger eller utleier.











































