Bildegalleri

Meglerhuset & Partners har gleden av å presentere Betzy Kjelsbergs vei 228.

Åssiden

Lys og innflytningsklar hjørneleilighet i 10.etg - Gode solforhold - Innglasset balkong - Fantastisk utsikt

Prisantydning2 790 000 kr
Totalpris
3 214 823 kr
Omkostninger
11 040 kr
Fellesgjeld
413 783 kr
Felleskost/mnd.
7 757 kr
Fellesformue
19 427 kr
Formuesverdi
745 477 kr

Nøkkelinfo

Boligtype
Leilighet
Eieform
Andel
Soverom
1
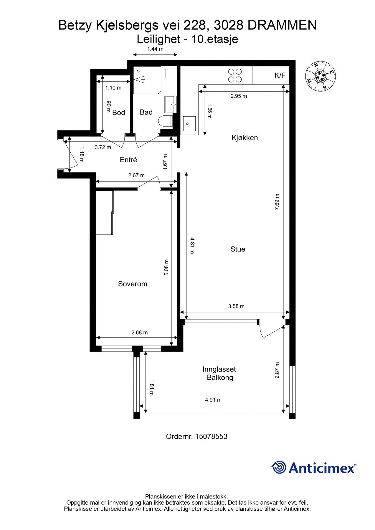
Internt bruksareal
57 m² (BRA-i)
Bruksareal
77 m²
Eksternt bruksareal
7 m² (BRA-e)
Innglasset balkong
13 m² (BRA-b)
Etasje
10
Byggeår
1971
Energimerking
C - Lysegrønn
Tomt
Eiet

Les mer om bruksareal her

Fasiliteter

Balkong/Terrasse
Garasje/P-plass
Kabel-TV
Heis
Utsikt
Fellesvaskeri
Moderne
Rolig
Lademulighet

Visning

Ta kontakt for å avtale visning.Visningspåmelding

Om boligen

Velkommen til en lys og delikat 2-roms leilighet med sentral beliggenhet på populære Åssiden. Leiligheten har en gjennomtenkt planløsning med godt lysinnslipp, og inneholder soverom, stue, bad og et moderne kjøkken fra 2024. Den romslige innglassede balkongen fungerer som en naturlig forlengelse av stuen og gir et ekstra bruksareal som kan nytes året rundt.

Noen høydepunkter:
- Stilrent kjøkken fra 2024
- Stor innglasset balkong med gode solforhold
- Heis i bygget
- Sentral beliggenhet midt på Åssiden med nærhet til alt du trenger
- Ca. 1 minutt til både bussholdeplass og Ligosenteret
- Hyppige bussavganger til Drammen sentrum
- Fjernvarme inkludert i felleskostnader
- Mulighet for parkering
- Ingen TG3 punkter i tilstandsrapporten
- Callinganlegg med videokamera fra 2026

Velkommen til en hyggelig visning!

Salgsoppgaven beskriver vesentlig og lovpålagt informasjon om eiendommen

Se komplett salgsoppgave

Nærområdet

Annonseinformasjon

FINN-kode448370148
Sist endret13. mai 2026 06:00
Referanse10260002

Rapporter annonse

Annonsene kan være mangelfulle i forhold til lovpålagt opplysningsplikt. Før bindende avtale inngås oppfordres interessenter til å innhente komplett informasjon fra meglerforetaket, selger eller utleier.