Bildegalleri

Strøken 3-roms selveier. Totalrenovert i 2021.
Rosendal
STRØKEN 3-ROMS SELVEIER. Totalrenovert 2021. TG0 på bad og kjøkken. Eget kontor. Markterrasse. Garasje
Prisantydning3 750 000 kr
Nøkkelinfo
- Boligtype
- Leilighet
- Eieform
- Eier (Selveier)
- Soverom
- 2
- Internt bruksareal
- 65 m² (BRA-i)
- Bruksareal
- 94 m²
- Eksternt bruksareal
- 29 m² (BRA-e)
- Balkong/Terrasse
- 2 m² (TBA)
- Byggeår
- 1925
- Energimerking
- G - Rød
- Rom
- 4
- Tomteareal
- 302 m² (eiet)
Fasiliteter
Balkong/Terrasse
Garasje/P-plass
Kabel-TV
Offentlig vann/kloakk
Turterreng
Bredbåndstilknytning
Moderne
Rolig
Visning
mandag, 23. februar
16:30 – 17:30
Våre visninger har påmelding. Dette gjør vi for å kunne yte bedre service for våre kunder. Verdifullt for boligkjøper og for oss. Vi anbefaler at salgsoppgaven lastes ned digitalt før visning, og ring oss gjerne på forhånd for spørsmål om boligen. Passer ikke angitt tidspunkt, ta kontakt så finner vi en løsning. Skulle det mot formodning ikke være påmeldte til angitt visningstidspunkt vil ikke visning bli gjennomført.
Om boligen
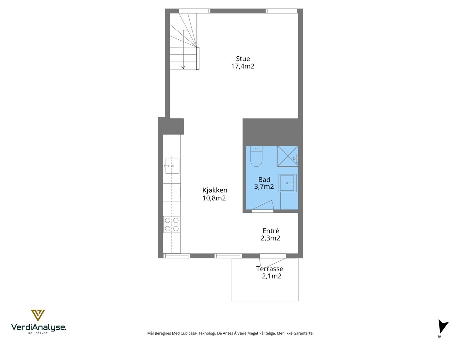
STRØKEN 3-ROMS SELVEIER.
- Sentralt beliggende, i rolige omgivelser, tilbaketrukket fra miljøgate
- Totalrenovert av fagfolk i 2021
- Fantastisk stue- og kjøkkenløsning på 28,2 kvm. Fint gjennomlys gir masse lys og luft
- Lyst en-stavs gulv med gulvvarme, delikate fargevalg og spotter i himling
- Smartbelysning (Phillips Hue) på stue, kjøkken, gang og hovedsoverom
- Kvalitetskjøkken fra Fossline. Lys, stilren innredning. Siemens integrerte hvitevarer
- Moderne, smakfullt bad. Flislagt med behagelig gulvvarme. Downlights
- To store soverom på 11,6 kvm og 7 kvm, samt eget innredet kontor
- Egen inngang med kodelås. Markterrasse med ettermiddagssol
- Privat garasje 17,2 kvm. Stor bod på 8,6 kvm i bakkant. Gratis gateparkering
- Ca. 200 m til bussholdeplass og søndagsåpen dagligvare. 400 m til Lilleby togstasjon
- Gang- og sykkelavstand til Solsiden og Midtbyen
NB: Knappen for å vise hele beskrivelsen har kun en visuell effekt.
NB: Knappen for å vise hele beskrivelsen har kun en visuell effekt.
Salgsoppgaven beskriver vesentlig og lovpålagt informasjon om eiendommen
Se komplett salgsoppgaveNyttige lenker
Nærområdet
EiendomsMegler 1 Valentinlyst
Vi loser deg trygt gjennom hele boligsalget
Annonseinformasjon
| FINN-kode | 448362301 |
|---|---|
| Sist endret | 16. feb. 2026 07:54 |
| Referanse | 34250305 |
Annonsene kan være mangelfulle i forhold til lovpålagt opplysningsplikt. Før bindende avtale inngås oppfordres interessenter til å innhente komplett informasjon fra meglerforetaket, selger eller utleier.

































