Bildegalleri

Velkommen til Engelsrudlia 41!
Sjarmerende Tyrolerhus i idylliske omgivelser |Solrikt og frittliggende |Nydelig utsikt |Barnevennlig |Nær sjø og skog!
Prisantydning10 300 000 kr
Nøkkelinfo
- Boligtype
- Enebolig
- Eieform
- Eier (Selveier)
- Soverom
- 3
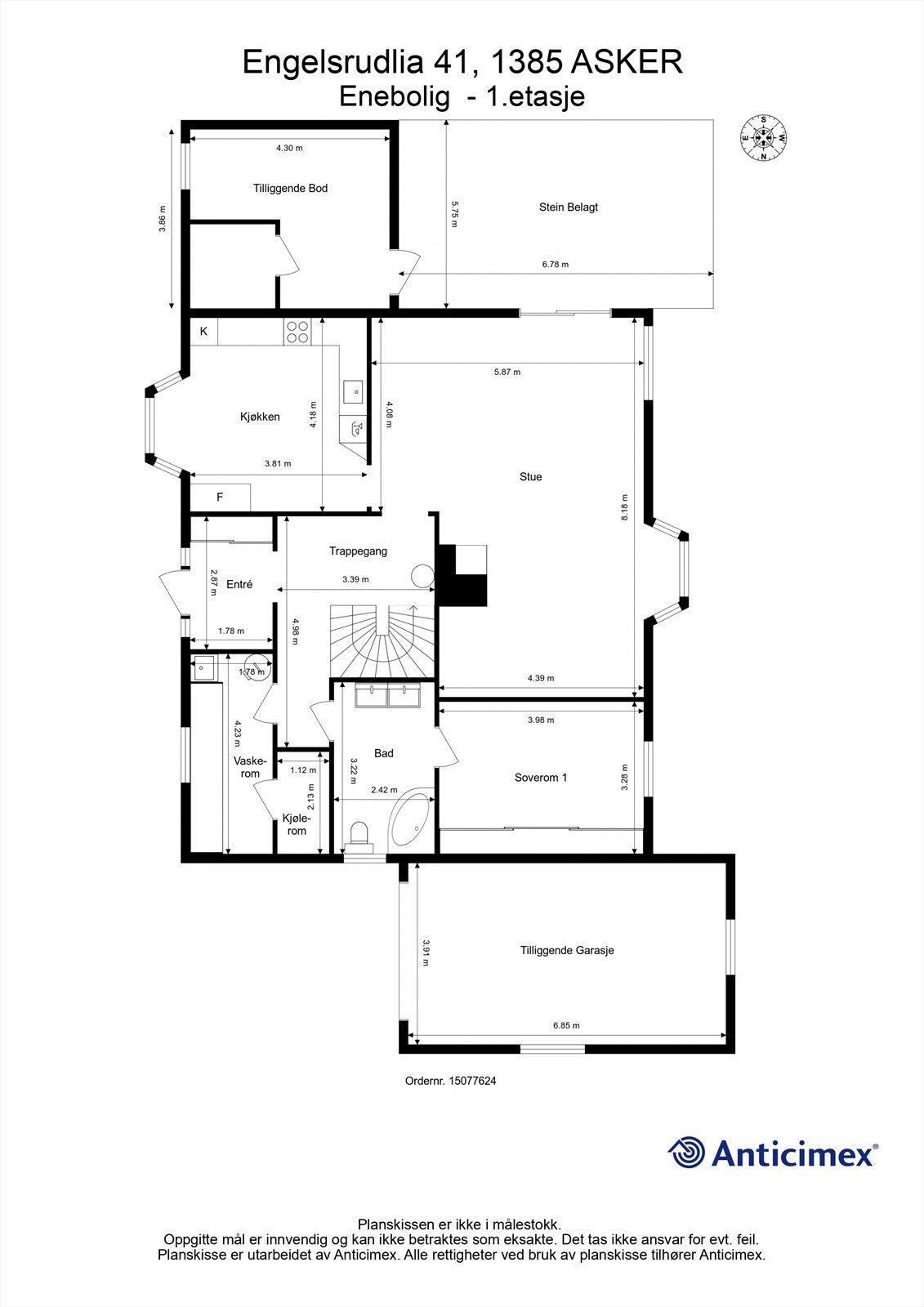
- Internt bruksareal
- 172 m² (BRA-i)
- Bruksareal
- 223 m²
- Eksternt bruksareal
- 51 m² (BRA-e)
- Balkong/Terrasse
- 46 m² (TBA)
- Byggeår
- 1989
- Energimerking
- D - Gul
- Tomteareal
- 1 148 m² (eiet)
Fasiliteter
Balkong/Terrasse
Barnevennlig
Garasje/P-plass
Hage
Peis/Ildsted
Rolig
Utsikt
Bademulighet
Turterreng
Om boligen
Velkommen til Engelsrudlia 41! En innholdsrik enebolig med en idyllisk og barnevennlig beliggenhet nær Asker.
Boligen har en stille og tilbaketrukket beliggenhet i vakre, naturnære omgivelser et ideelt sted for en aktiv og trygg familiehverdag. Med Kjekstadmarka, badevann og flotte turstier like ved, inviteres det til opplevelser og friluftsliv året rundt. Samtidig har du kort vei til barnehager, skoler og Asker sentrum. et perfekt sted å slå seg til ro og skape gode minner.
Høydepunkter:
Frittliggende enebolig o/2 plan med tilliggende garasje
Nytt og delikat bad i 1.etg fra 2022
Stor, steinbelagt terrasse og balkong
Peis, vedovn og varmepumpe
Solcellepaneler
Godt med bodplass
Nær både sjø og skog
Barnevennlig område nær barnehager, skoler og buss
Velkommen!
Boligen har en stille og tilbaketrukket beliggenhet i vakre, naturnære omgivelser et ideelt sted for en aktiv og trygg familiehverdag. Med Kjekstadmarka, badevann og flotte turstier like ved, inviteres det til opplevelser og friluftsliv året rundt. Samtidig har du kort vei til barnehager, skoler og Asker sentrum. et perfekt sted å slå seg til ro og skape gode minner.
Høydepunkter:
Frittliggende enebolig o/2 plan med tilliggende garasje
Nytt og delikat bad i 1.etg fra 2022
Stor, steinbelagt terrasse og balkong
Peis, vedovn og varmepumpe
Solcellepaneler
Godt med bodplass
Nær både sjø og skog
Barnevennlig område nær barnehager, skoler og buss
Velkommen!
NB: Knappen for å vise hele beskrivelsen har kun en visuell effekt.
NB: Knappen for å vise hele beskrivelsen har kun en visuell effekt.
Salgsoppgaven beskriver vesentlig og lovpålagt informasjon om eiendommen
Se komplett salgsoppgaveNyttige lenker
Nærområdet
Krogsveen Bærum
Verdien av en god megler.
Annonseinformasjon
| FINN-kode | 448340430 |
|---|---|
| Sist endret | 29. jan. 2026 07:40 |
| Referanse | KR10.25384 |
Annonsene kan være mangelfulle i forhold til lovpålagt opplysningsplikt. Før bindende avtale inngås oppfordres interessenter til å innhente komplett informasjon fra meglerforetaket, selger eller utleier.



























































































