Bildegalleri

Camilla Bjerke Olsen i Nordvik Sandvika ønsker velkommen til Ringeriksveien 214C! Foto: Chris Borowiak
Skui
Lekker, innholdsrik vertikaldelt tomannsbolig fra 2020. 4 sov. 3 bad + vaskerom. Skjermet beliggenhet. Flotte uteplasser
Prisantydning9 000 000 kr
Nøkkelinfo
- Boligtype
- Tomannsbolig
- Eieform
- Eier (Selveier)
- Soverom
- 4
- Internt bruksareal
- 160 m² (BRA-i)
- Bruksareal
- 165 m²
- Eksternt bruksareal
- 5 m² (BRA-e)
- Balkong/Terrasse
- 70 m² (TBA)
- Etasje
- 3
- Byggeår
- 2020
- Energimerking
- B - Oransje
- Rom
- 7
- Tomteareal
- 3 927 m² (eiet)
Fasiliteter
Balkong/Terrasse
Barnevennlig
Bredbåndstilknytning
Garasje/P-plass
Hage
Kjæledyr tillatt
Kabel-TV
Offentlig vann/kloakk
Parkett
Peis/Ildsted
Rolig
Utsikt
Turterreng
Lademulighet
Balansert ventilasjon
Om boligen
Velkommen til Ringeriksveien 214C!
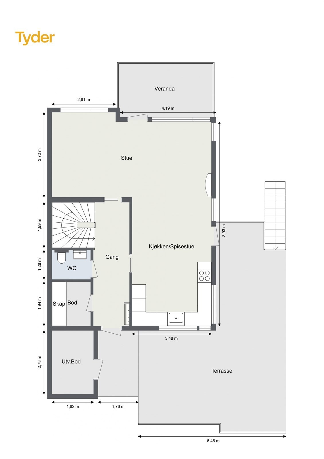
Dette er en moderne og innbydende tomannsbolig fra 2020, attraktivt beliggende i en rolig gate. Boligen byr på en gjennomtenkt planløsning med lyse og romslige oppholdsrom, gode materialvalg og en sosial løsning mellom stue og kjøkken. Store vindusflater gir rikelig med lys. Boligen har flere soner utvendig, med bla. den store terrassen utenfor stuen og kjøkkenet og hagen på nedsiden av huset. Her bor du i et etablert og barnevennlig område med nærhet til natur, marka, skole, barnehage og gode kollektivforbindelser mot Sandvika og Oslo.
- Oppført i 2020
- Moderne standard og tidsriktige løsninger
- Fire soverom, femte kan etableres med enkle grep
- Ideell planløsning
Denne passer perfekt for familier eller par som ønsker det lettstelt og moderne!
Dette er en moderne og innbydende tomannsbolig fra 2020, attraktivt beliggende i en rolig gate. Boligen byr på en gjennomtenkt planløsning med lyse og romslige oppholdsrom, gode materialvalg og en sosial løsning mellom stue og kjøkken. Store vindusflater gir rikelig med lys. Boligen har flere soner utvendig, med bla. den store terrassen utenfor stuen og kjøkkenet og hagen på nedsiden av huset. Her bor du i et etablert og barnevennlig område med nærhet til natur, marka, skole, barnehage og gode kollektivforbindelser mot Sandvika og Oslo.
- Oppført i 2020
- Moderne standard og tidsriktige løsninger
- Fire soverom, femte kan etableres med enkle grep
- Ideell planløsning
Denne passer perfekt for familier eller par som ønsker det lettstelt og moderne!
NB: Knappen for å vise hele beskrivelsen har kun en visuell effekt.
NB: Knappen for å vise hele beskrivelsen har kun en visuell effekt.
Salgsoppgaven beskriver vesentlig og lovpålagt informasjon om eiendommen
Se komplett salgsoppgaveNyttige lenker
Nærområdet
Nordvik Sandvika
Vi vet hva det er verdt
Annonseinformasjon
| FINN-kode | 448299032 |
|---|---|
| Sist endret | 01. feb. 2026 08:35 |
| Referanse | 45-0004/26 |
Annonsene kan være mangelfulle i forhold til lovpålagt opplysningsplikt. Før bindende avtale inngås oppfordres interessenter til å innhente komplett informasjon fra meglerforetaket, selger eller utleier.













































