Bildegalleri

Velkommen til Bruket Brygge! Leiligheten presenteres av Karl Robert Hansen i Krogsveen. Fotograf; Kristoffer Kristiansen.
Bruket Brygge
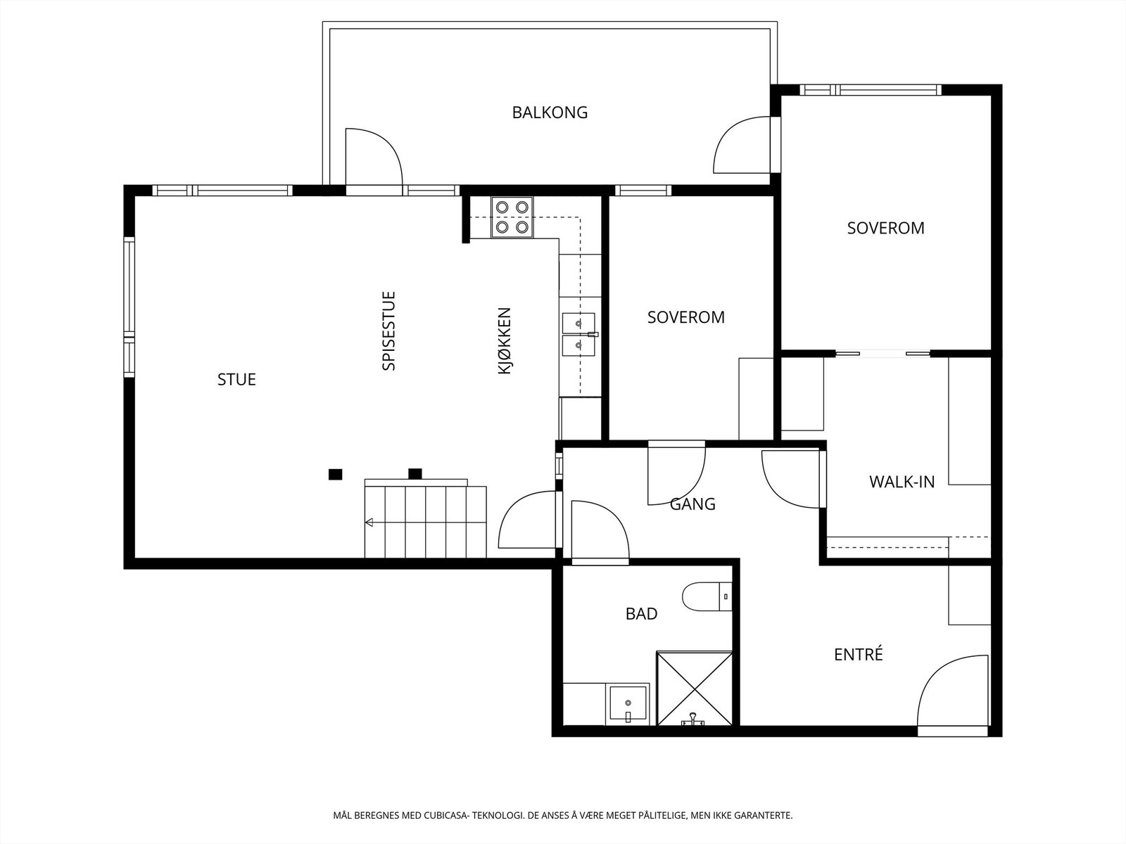
Attraktiv topp-/endeleilighet fra 2020 med høy himling og hems. Elveutsikt og solfylt balkong. 2 garasjeplasser. Heis.
Prisantydning6 950 000 kr
Nøkkelinfo
- Boligtype
- Leilighet
- Eieform
- Eier (Selveier)
- Soverom
- 2
- Internt bruksareal
- 95 m² (BRA-i)
- Bruksareal
- 101 m²
- Eksternt bruksareal
- 6 m² (BRA-e)
- Balkong/Terrasse
- 12 m² (TBA)
- Etasje
- 3
- Byggeår
- 2020
- Energimerking
- A - Gul
- Rom
- 3
- Tomteareal
- 13 845 m² (eiet)
Fasiliteter
Balkong/Terrasse
Barnevennlig
Bredbåndstilknytning
Garasje/P-plass
Heis
Kjæledyr tillatt
Kabel-TV
Offentlig vann/kloakk
Rolig
Sentralt
Utsikt
Vaktmester-/vektertjeneste
Lademulighet
Balansert ventilasjon
Visning
onsdag, 04. februar
16:30 – 17:00
For å delta på visning, ber vi om at du melder deg på. Da sikrer vi at du får nødvendig informasjon og at det er satt av tilstrekkelig med tid. Kontakt megler dersom annet tidspunkt ønskes. Husk å lese salgsoppgaven før visningen, så du stiller forberedt. NB. Visning utgår dersom det ikke er noen påmeldte.
Ønsker du kun å bli holdt orientert, kan du fra eiendommens hjemmeside få varsel om solgtpris, eller kontakte megler.
VisningspåmeldingOm boligen
Moderne topp- og endeleilighet fra 2020 med attraktiv plassering på Bruket Brygge
- Solfylt sørvendt balkong med flott utsikt til Vesterelven
- Alle oppholdsrom på én flate + stor hems med høy himling
- Kvalitetskjøkken fra Sigdal med alle hvitevarer integrert
- Moderne teknisk standard inkl. vannbåren gulvvarme
- Stor loftsbod med nesten 10 kvm. gulvflate
- Enkel adkomst med heis til alle etasjer - loftet inkludert
- To biloppstillingsplasser i garasjeanlegget, én med lader til EL-bil
- Få meter å gå til gratis byferge - kun 10. min til sentrum
NB: Knappen for å vise hele beskrivelsen har kun en visuell effekt.
NB: Knappen for å vise hele beskrivelsen har kun en visuell effekt.
Salgsoppgaven beskriver vesentlig og lovpålagt informasjon om eiendommen
Se komplett salgsoppgaveNyttige lenker
Nærområdet
Krogsveen Fredrikstad og Sarpsborg
Verdien av en god megler.
Annonseinformasjon
| FINN-kode | 448251215 |
|---|---|
| Sist endret | 30. jan. 2026 07:42 |
| Referanse | KR67.262 |
Annonsene kan være mangelfulle i forhold til lovpålagt opplysningsplikt. Før bindende avtale inngås oppfordres interessenter til å innhente komplett informasjon fra meglerforetaket, selger eller utleier.



































