Bildegalleri

Velkommen til en nydelig hjørne-/og gjennomgående 3-roms leilighet i et meget attraktiv boligområdet. Foto: Lars Gartå.
Solgt
Kjelsås
Gjennomgående og nydelig 3-roms leilighet med utgang til solrik balkong og terrasse. Fyring inkludert.
Prisantydning5 450 000 kr
Nøkkelinfo
- Boligtype
- Leilighet
- Eieform
- Eier (Selveier)
- Soverom
- 2
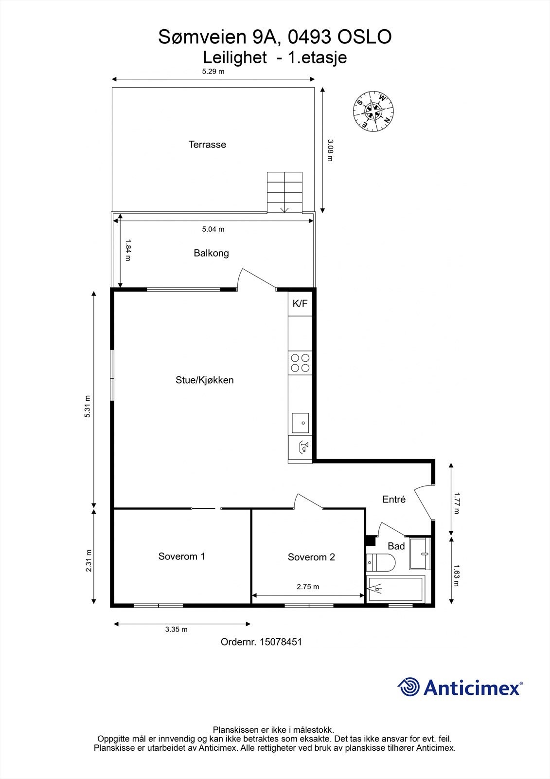
- Internt bruksareal
- 49 m² (BRA-i)
- Bruksareal
- 60 m²
- Eksternt bruksareal
- 11 m² (BRA-e)
- Balkong/Terrasse
- 25 m² (TBA)
- Etasje
- 1
- Byggeår
- 1956
- Energimerking
- G - Mørkegrønn
- Rom
- 3
- Tomteareal
- 18 946 m² (eiet)
Fasiliteter
Balkong/Terrasse
Barnevennlig
Bredbåndstilknytning
Fellesvaskeri
Kjæledyr tillatt
Kabel-TV
Offentlig vann/kloakk
Rolig
Bademulighet
Turterreng
Om boligen
Velkommen til en nydelig 3-roms leilighet med god planløsning. Leiligheten ligger i første etasje med utgang til solrik balkong, og ned til en terrasse. Leiligheten oppleves som delikat med moderne fargevalg på vegger, samt 1-stavs gulv, Kvik kjøkken og flislagt bad.
Her bor man i hyggelig omgivelser med store grønne fellesarealer, samt nærheten til turområder langs Akerselven, Maridalen og Nordmarka. Fra leiligheten er det kort vei til offentlige kommunikasjonsmuligheter som buss og tog på Kjelsås Stasjon. Søndagsåpen Joker på Frysja.
- Fyring inkludert
- Parkering i offentlig gate utenfor sameiet tomt.
- Fibernett og kabel-tv inkludert
Her bor man i hyggelig omgivelser med store grønne fellesarealer, samt nærheten til turområder langs Akerselven, Maridalen og Nordmarka. Fra leiligheten er det kort vei til offentlige kommunikasjonsmuligheter som buss og tog på Kjelsås Stasjon. Søndagsåpen Joker på Frysja.
- Fyring inkludert
- Parkering i offentlig gate utenfor sameiet tomt.
- Fibernett og kabel-tv inkludert
NB: Knappen for å vise hele beskrivelsen har kun en visuell effekt.
NB: Knappen for å vise hele beskrivelsen har kun en visuell effekt.
Salgsoppgaven beskriver vesentlig og lovpålagt informasjon om eiendommen
Se komplett salgsoppgaveNyttige lenker
Nærområdet
Krogsveen Sagene
Verdien av en god megler.
Annonseinformasjon
| FINN-kode | 448228301 |
|---|---|
| Sist endret | 03. feb. 2026 14:14 |
| Referanse | KR52.265 |
Annonsene kan være mangelfulle i forhold til lovpålagt opplysningsplikt. Før bindende avtale inngås oppfordres interessenter til å innhente komplett informasjon fra meglerforetaket, selger eller utleier.





































