Bildegalleri

Støpte vestvendte balkonger med glassrekkverk gir gode solforhold og utsikt. Foto: Fotoetcetera
Sarpsborg sentrum
Unik leilighet med panoramautsikt og romslig balkong - nær sentrum og Kulåsparken!
Prisantydning5 200 000 kr
Nøkkelinfo
- Boligtype
- Leilighet
- Eieform
- Eier (Selveier)
- Soverom
- 3
- Internt bruksareal
- 106 m² (BRA-i)
- Bruksareal
- 112 m²
- Eksternt bruksareal
- 6 m² (BRA-e)
- Balkong/Terrasse
- 32 m² (TBA)
- Etasje
- 3
- Byggeår
- 1978
- Energimerking
- E - Oransje
- Rom
- 4
- Tomteareal
- 2 378 m² (eiet)
Fasiliteter
Balkong/Terrasse
Garasje/P-plass
Offentlig vann/kloakk
Sentralt
Utsikt
Visning
mandag, 09. februar
16:30 – 17:30
Ved annonsert visning er det viktig at du melder deg på visningen ved å bruke visningspåmeldingsknappen eller kontakter megler. Annonserte visninger hvor det ikke er noen påmeldte innen kl. 12.00 på visningsdagen vil ikke bli avholdt.
For visninger utover dette, ta direkte kontakt med megler.
VisningspåmeldingOm boligen
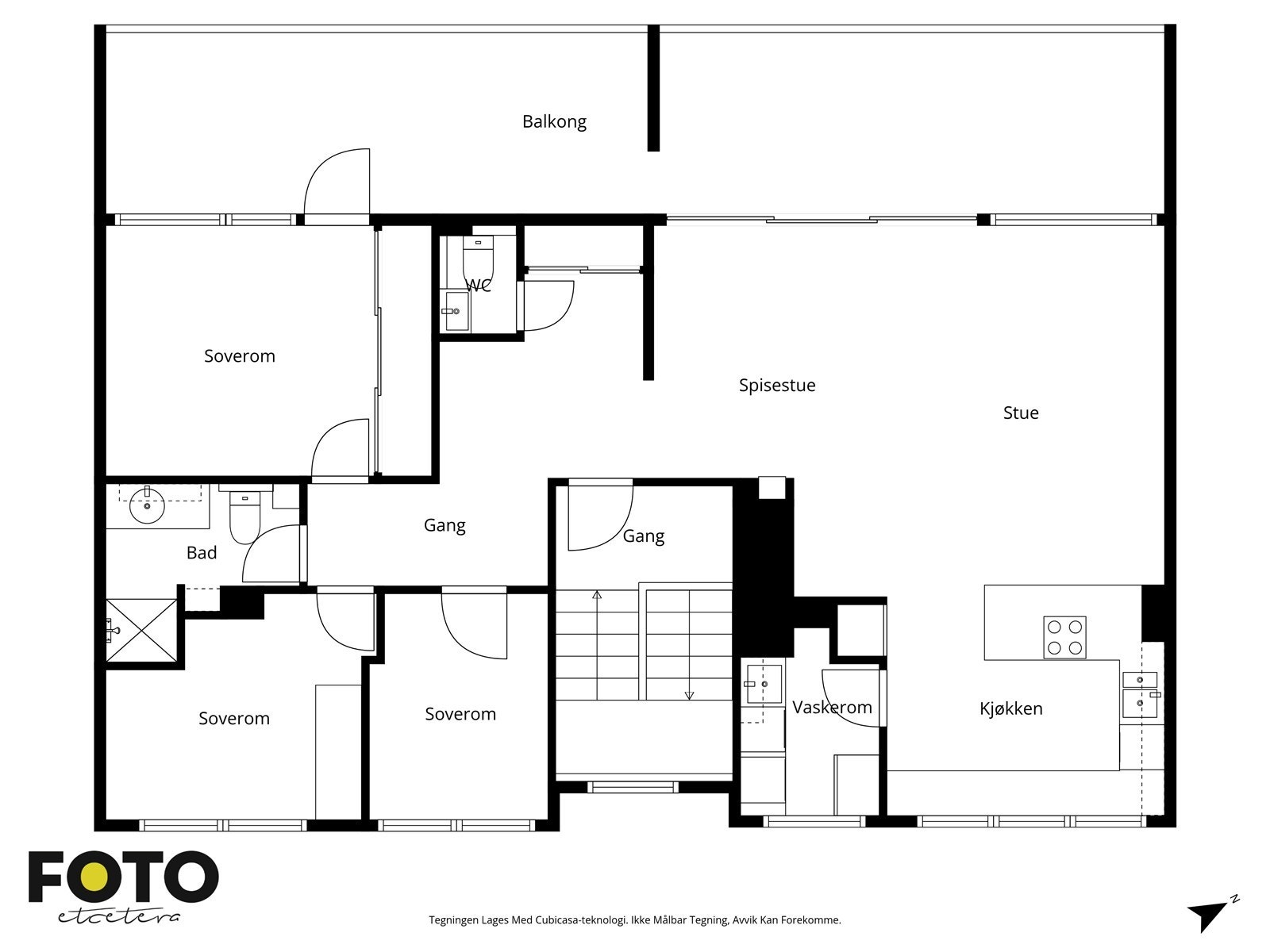
Velkommen til en flott, romslig og tiltalende selveierleilighet i 3. etasje, med fantastisk utsikt over Sarpsborg by og omkringliggende områder. Leiligheten har en lys og åpen planløsning, med stor stue som naturlig deler soner for både TV- og spisestuemøbler, og utgang til en stor og solrik balkong/veranda et perfekt sted for hyggelige måltider eller avslapning med utsikt.
Kjøkkenet er moderne og stilrent, med integrerte hvitevarer, rikelig med skapplass og gode benkeplater. Boligen har tre gode soverom, bad og eget vaskerom, i tillegg til separat WC. Her er det lagt vekt på praktiske løsninger og høy kvalitet i alle detaljer.
Til leiligheten medfølger carport for én bil.
Denne boligen kombinerer komfort, funksjonalitet og et attraktivt sentrumsliv!
Kjøkkenet er moderne og stilrent, med integrerte hvitevarer, rikelig med skapplass og gode benkeplater. Boligen har tre gode soverom, bad og eget vaskerom, i tillegg til separat WC. Her er det lagt vekt på praktiske løsninger og høy kvalitet i alle detaljer.
Til leiligheten medfølger carport for én bil.
Denne boligen kombinerer komfort, funksjonalitet og et attraktivt sentrumsliv!
NB: Knappen for å vise hele beskrivelsen har kun en visuell effekt.
NB: Knappen for å vise hele beskrivelsen har kun en visuell effekt.
Salgsoppgaven beskriver vesentlig og lovpålagt informasjon om eiendommen
Se komplett salgsoppgaveNærområdet
Aktiv Sarpsborg
Annonseinformasjon
| FINN-kode | 448210927 |
|---|---|
| Sist endret | 30. jan. 2026 09:16 |
| Referanse | 1109250083 |
Annonsene kan være mangelfulle i forhold til lovpålagt opplysningsplikt. Før bindende avtale inngås oppfordres interessenter til å innhente komplett informasjon fra meglerforetaket, selger eller utleier.





















































