Bildegalleri

Velkommen Talleiv Huvestads veg 181
Dalen
Enebolig med stor garasje på Huvestadodden - usjenert hage og velholdt familiebolig!
Prisantydning3 200 000 kr
Nøkkelinfo
- Boligtype
- Enebolig
- Eieform
- Eier (Selveier)
- Soverom
- 3
- Internt bruksareal
- 197 m² (BRA-i)
- Bruksareal
- 263 m²
- Eksternt bruksareal
- 66 m² (BRA-e)
- Balkong/Terrasse
- 11 m² (TBA)
- Etasje
- 3
- Byggeår
- 1985
- Energimerking
- E - Gul
- Rom
- 5
- Tomteareal
- 914 m² (eiet)
Fasiliteter
Barnevennlig
Balkong/Terrasse
Garasje/P-plass
Offentlig vann/kloakk
Peis/Ildsted
Turterreng
Rolig
Bademulighet
Visning
torsdag, 05. februar
16:00 – 17:00
Meld deg på visning eller kontakt eiendomsmegler for privatvisning.
Visning blir ikke gjennomført uten påmeldte.
Om boligen
Velkommen til en innholdsrik og tiltalende bolig med god planløsning og gjennomtenkte romløsninger! Her er det rikelig med plass til både familie og gjester.
Boligen har en romslig og innbydende gang som gir et godt førsteinntrykk. Videre finner du et praktisk vaskerom/syrom og et separat toalettrom, noe som gir ekstra komfort i hverdagen. Kjøkkenet er lyst og trivelig, med god plass til matlaging og hyggelige måltider. Stuen er luftig og har store vindusflater som slipper inn rikelig med naturlig lys, og herfra har du utgang til en sørvent terrasse - perfekt for morgenkaffen eller avslapning på fine dager.
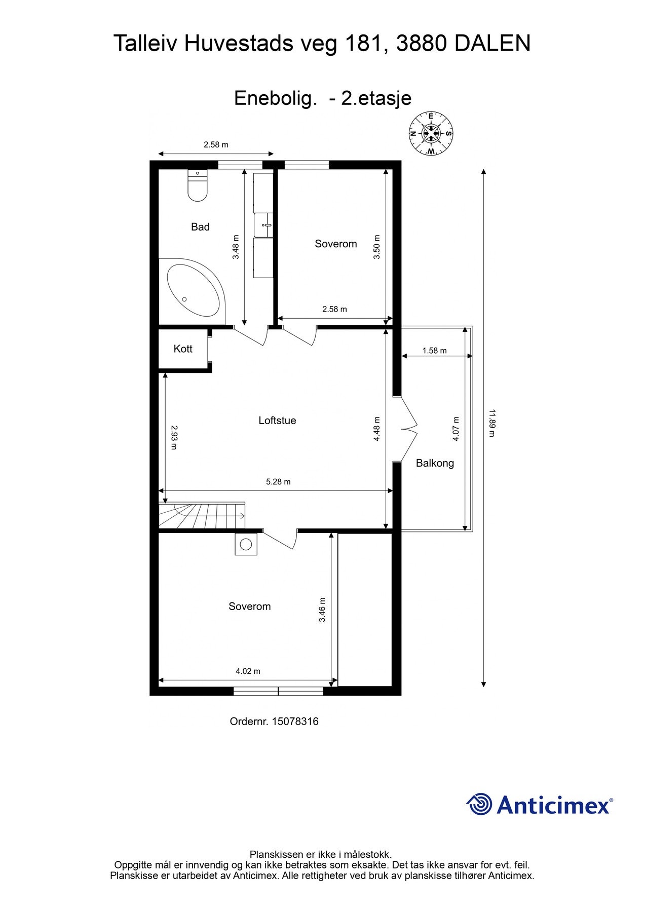
Boligen har 2 soverom, bad og loftstue i 2. etasje og 2 ekstra rom og bad i kjelleren.
Boligen ligger usjenert til med beliggenhet rett ved lysløypa og elva. Gangavstand til skoler, barnehage og idrettsplass.
Boligen har en romslig og innbydende gang som gir et godt førsteinntrykk. Videre finner du et praktisk vaskerom/syrom og et separat toalettrom, noe som gir ekstra komfort i hverdagen. Kjøkkenet er lyst og trivelig, med god plass til matlaging og hyggelige måltider. Stuen er luftig og har store vindusflater som slipper inn rikelig med naturlig lys, og herfra har du utgang til en sørvent terrasse - perfekt for morgenkaffen eller avslapning på fine dager.
Boligen har 2 soverom, bad og loftstue i 2. etasje og 2 ekstra rom og bad i kjelleren.
Boligen ligger usjenert til med beliggenhet rett ved lysløypa og elva. Gangavstand til skoler, barnehage og idrettsplass.
NB: Knappen for å vise hele beskrivelsen har kun en visuell effekt.
NB: Knappen for å vise hele beskrivelsen har kun en visuell effekt.
Salgsoppgaven beskriver vesentlig og lovpålagt informasjon om eiendommen
Se komplett salgsoppgaveNærområdet
Lokalmegleren & Partners
Verdien av lokalkunnskap
Annonseinformasjon
| FINN-kode | 448196811 |
|---|---|
| Sist endret | 27. jan. 2026 10:03 |
| Referanse | 48260001 |
Annonsene kan være mangelfulle i forhold til lovpålagt opplysningsplikt. Før bindende avtale inngås oppfordres interessenter til å innhente komplett informasjon fra meglerforetaket, selger eller utleier.






















































