Bildegalleri

Christoffer Mazarino v/Eiendomsmegler 1 har gleden av å presentere Brusetfaret 69!
Hvalstad
Sjarmerende enderekkehus på populære Hvalstad | Luftig stue m/ peisovn og stor takhøyde |Solrik veranda og hage |Garasje
Prisantydning6 750 000 kr
Nøkkelinfo
- Boligtype
- Rekkehus
- Eieform
- Eier (Selveier)
- Soverom
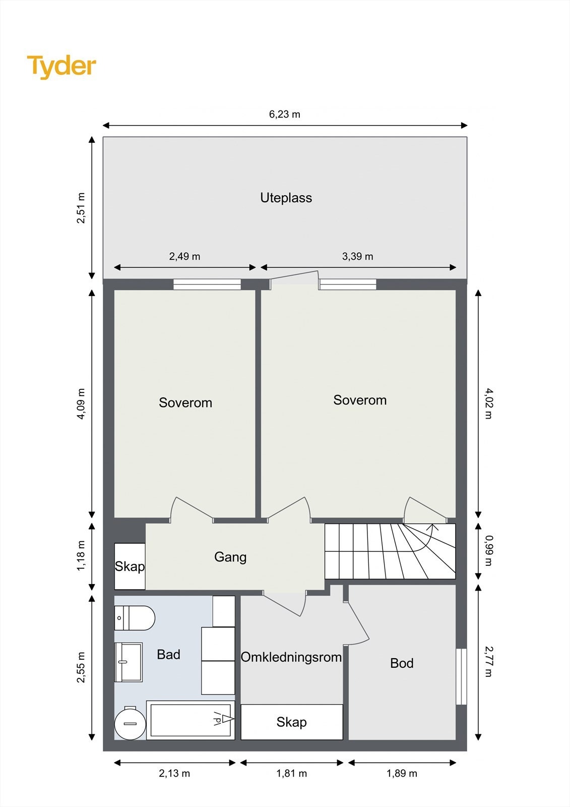
- 3
- Internt bruksareal
- 102 m² (BRA-i)
- Bruksareal
- 104 m²
- Eksternt bruksareal
- 2 m² (BRA-e)
- Balkong/Terrasse
- 14 m² (TBA)
- Etasje
- 2
- Byggeår
- 1961
- Rom
- 4
- Tomteareal
- 266 m² (eiet)
Fasiliteter
Balkong/Terrasse
Barnevennlig
Bredbåndstilknytning
Garasje/P-plass
Hage
Kjæledyr tillatt
Offentlig vann/kloakk
Peis/Ildsted
Rolig
Sentralt
Utsikt
Utvidelsesmuligheter
Turterreng
Lademulighet
Visning
søndag, 01. februar
16:00 – 16:45
onsdag, 04. februar
17:00 – 17:45
Ønsker du å delta på visningen ber vi deg melde deg på slik at vi vet at du kommer. Da kan vi bistå alle best mulig og gi deg tiden du trenger på visningen. Visningen avholdes bare dersom det er påmeldte senest 8 timer før visning. Ta gjerne kontakt med megler før visning hvis du har noen spørsmål. Velkommen!
VisningspåmeldingOm boligen
Brusetfaret 69 - Et sjarmerende enderekkehus med en luftig og åpen stue med imponerende takhøyde.
Her bor du i et rolig og veletablert nabolag på Hvalstad, med umiddelbar nærhet til skog og mark, fjord og strand. Hverdagslogistikken er enkel med gangavstand til togstasjon, skoler, barnehager og butikker. Den åpne stuen har en imponerende takhøyde og en peisovn som skaper en lun stemning. På sommeren kan du nyte en herlig hage, og med utgang til en flott veranda fra stuen kan du nyte omgivelsene og gode solforhold!
Høydepunkter:
-Enderekkehus med god planløsning og takhøyde på 2,93 meter i stuen.
-Veranda på ca. 14 m²
-Hage med vakker vegetasjon
-Peisovn i stuen
-Egen garasje i rekke
-Felles lekeplass i sameiet
-Nytt tak fra 2019.
-Kjøkkeninnredning fra 2014 med integrerte hvitevarer.
Her bor du i et rolig og veletablert nabolag på Hvalstad, med umiddelbar nærhet til skog og mark, fjord og strand. Hverdagslogistikken er enkel med gangavstand til togstasjon, skoler, barnehager og butikker. Den åpne stuen har en imponerende takhøyde og en peisovn som skaper en lun stemning. På sommeren kan du nyte en herlig hage, og med utgang til en flott veranda fra stuen kan du nyte omgivelsene og gode solforhold!
Høydepunkter:
-Enderekkehus med god planløsning og takhøyde på 2,93 meter i stuen.
-Veranda på ca. 14 m²
-Hage med vakker vegetasjon
-Peisovn i stuen
-Egen garasje i rekke
-Felles lekeplass i sameiet
-Nytt tak fra 2019.
-Kjøkkeninnredning fra 2014 med integrerte hvitevarer.
NB: Knappen for å vise hele beskrivelsen har kun en visuell effekt.
NB: Knappen for å vise hele beskrivelsen har kun en visuell effekt.
Salgsoppgaven beskriver vesentlig og lovpålagt informasjon om eiendommen
Se komplett salgsoppgaveNyttige lenker
Nærområdet
EiendomsMegler 1 Asker
Vi loser deg trygt gjennom hele boligsalget
Annonseinformasjon
| FINN-kode | 448133852 |
|---|---|
| Sist endret | 28. jan. 2026 13:11 |
| Referanse | 6010260183 |
Annonsene kan være mangelfulle i forhold til lovpålagt opplysningsplikt. Før bindende avtale inngås oppfordres interessenter til å innhente komplett informasjon fra meglerforetaket, selger eller utleier.















































