Bildegalleri

Velkommen til Høyås 8, presentert av ASK Meglerverket v/Emilie Andersen!
Hannestad
Enebolig i kjede med utsikt | Hybel | Garasje m/lader | Attraktiv beliggenhet!
Prisantydning4 600 000 kr
Nøkkelinfo
- Boligtype
- Enebolig
- Eieform
- Eier (Selveier)
- Soverom
- 3
- Internt bruksareal
- 156 m² (BRA-i)
- Bruksareal
- 180 m²
- Eksternt bruksareal
- 29 m² (BRA-e)
- Balkong/Terrasse
- 20 m² (TBA)
- Byggeår
- 1975
- Energimerking
- F - Gul
- Tomteareal
- 293 m² (eiet)
Fasiliteter
Barnevennlig
Balkong/Terrasse
Garasje/P-plass
Offentlig vann/kloakk
Parkett
Utsikt
Sentralt
Rolig
Visning
torsdag, 05. februar
17:00 – 18:00
Velkommen til visning!
Alle våre visninger har påmelding. På denne måten sikrer vi at våre meglere har god tid og på best mulig måte kan møte alle interessentene. Det er enkelt å melde seg på og like enkelt å melde seg av.
Husk å les salgsoppgaven i forkant!
Kontakt oss gjerne i forkant av visning om du har noen spørsmål.
Om boligen
Velkommen til Høyås 8!
Emilie Andersen v/ASK Meglerverket ønsker deg velkommen hjem til denne flotte eneboligen i kjede med en attraktiv beliggenhet på Hannestad! Boligen befinner seg i et rolig boområde med nærhet til bl.a. barnehager, skoler, dagligvare og busstopp.
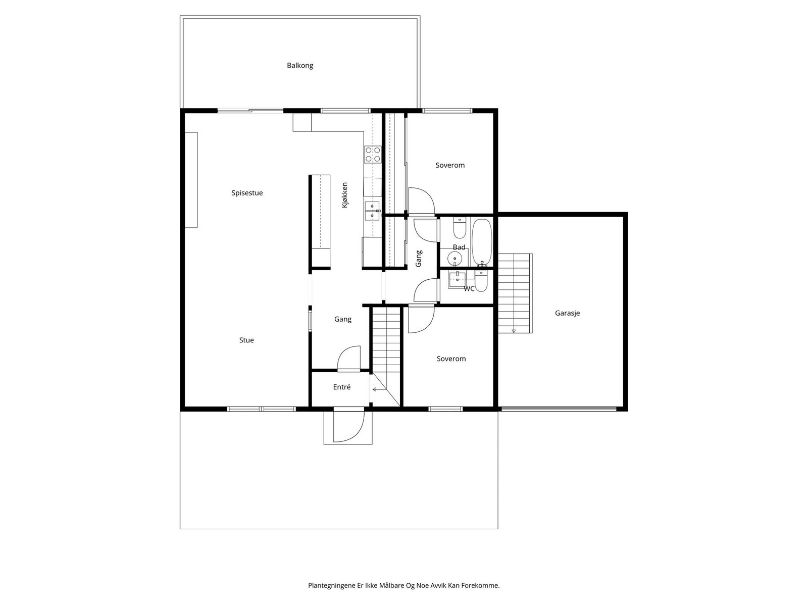
Boligens sosiale rom er romslige med gode møbleringsmuligheter og utgang til en balkong med utsikt over omgivelsene. Varmepumpen i stuen gir god bokomfort hele året.
Boligen går over to plan hvor deler av underetasjen er innredet som en hybel. Eier opplyser om at hybelen (stue/kjøkken, gang og soverom) ble pusset opp i 2022.
HØYDEPUNKTER
Emilie Andersen v/ASK Meglerverket ønsker deg velkommen hjem til denne flotte eneboligen i kjede med en attraktiv beliggenhet på Hannestad! Boligen befinner seg i et rolig boområde med nærhet til bl.a. barnehager, skoler, dagligvare og busstopp.
Boligens sosiale rom er romslige med gode møbleringsmuligheter og utgang til en balkong med utsikt over omgivelsene. Varmepumpen i stuen gir god bokomfort hele året.
Boligen går over to plan hvor deler av underetasjen er innredet som en hybel. Eier opplyser om at hybelen (stue/kjøkken, gang og soverom) ble pusset opp i 2022.
HØYDEPUNKTER
- Populært boområde
- Varmepumpe
- Balkong
- Hybel
- Garasje m/elbillader
- Nærhet til "alt"
Velkommen til en hyggelig visning!
NB: Knappen for å vise hele beskrivelsen har kun en visuell effekt.
NB: Knappen for å vise hele beskrivelsen har kun en visuell effekt.
Salgsoppgaven beskriver vesentlig og lovpålagt informasjon om eiendommen
Se komplett salgsoppgaveNærområdet
ASK Meglerverket Sarpsborg
Velkommen hjem!
Annonseinformasjon
| FINN-kode | 448097129 |
|---|---|
| Sist endret | 30. jan. 2026 09:34 |
| Referanse | 1-26-0010 |
Annonsene kan være mangelfulle i forhold til lovpålagt opplysningsplikt. Før bindende avtale inngås oppfordres interessenter til å innhente komplett informasjon fra meglerforetaket, selger eller utleier.
































































