Bildegalleri

Velkommen til Solberg Østli 40! Presenteres av Jørgen Gabrielsen v/Krogsveen. Foto: Espen Edin v/Image day
Skedsmokorset
Innholdsrik enebolig i usjenert og landlige omgivelser på Skedsmokorset | Stor og solrik tomt | 2 stuer | Dobbeltgarasje
Prisantydning6 650 000 kr
Nøkkelinfo
- Boligtype
- Enebolig
- Eieform
- Selveier
- Soverom
- 4
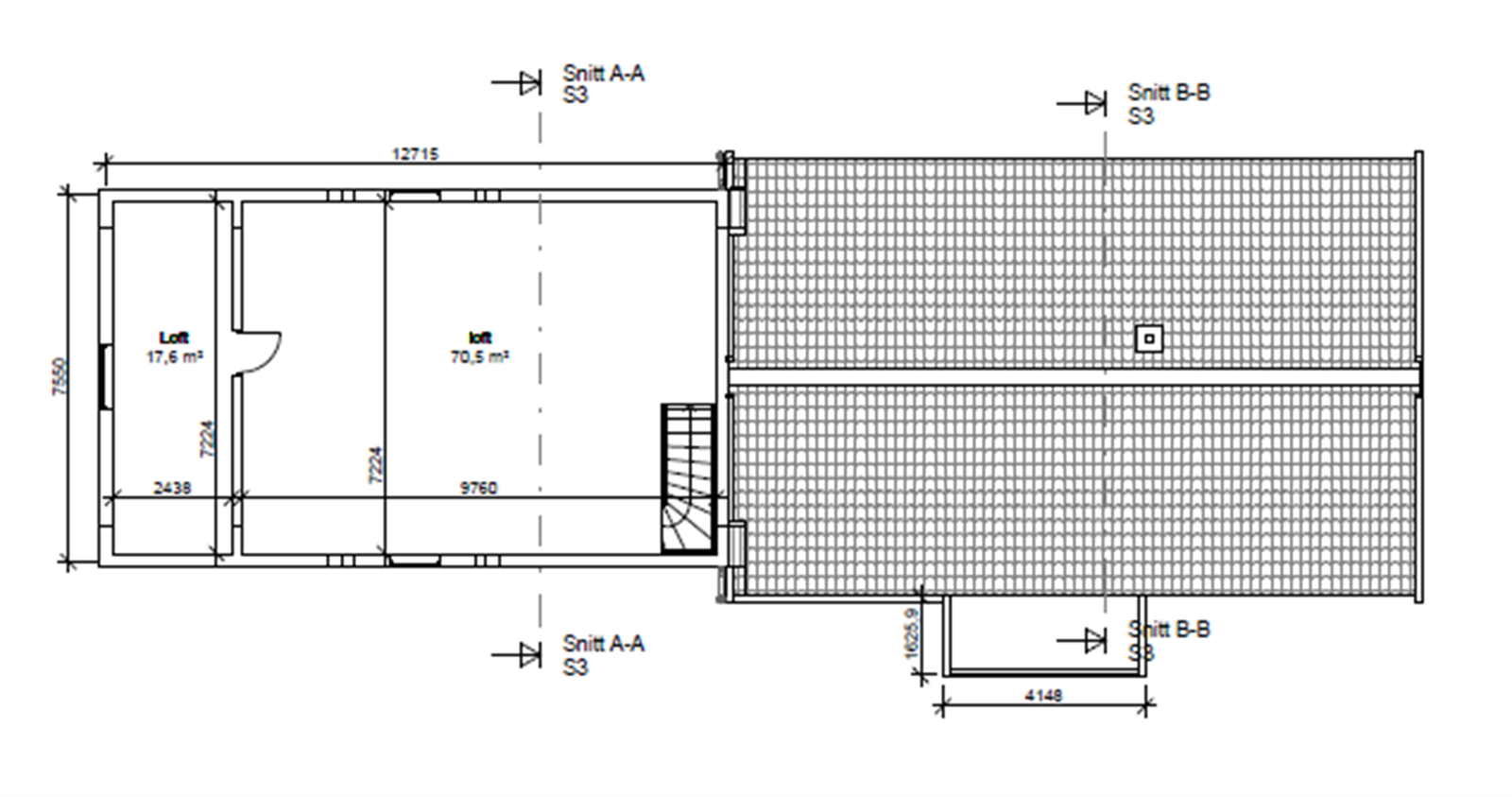
- Internt bruksareal
- 231 m² (BRA-i)
- Bruksareal
- 292 m²
- Eksternt bruksareal
- 61 m² (BRA-e)
- Balkong/Terrasse
- 31 m² (TBA)
- Etasje
- 2
- Byggeår
- 1969
- Energimerking
- Rom
- 5
- Tomteareal
- 2 512 m² (eiet)
Fasiliteter
Balkong/Terrasse
Barnevennlig
Garasje/P-plass
Hage
Kjæledyr tillatt
Kabel-TV
Offentlig vann/kloakk
Peis/Ildsted
Rolig
Turterreng
Om boligen
Velkommen til Solberg Østli 40! Presenteres av Jørgen Gabrielsen v/Krogsveen avd. Skedsmokorset. Dette en stor og innholdsrik enebolig som ligger usjenert til. Boligen har en stor tomt med gode solforhold med god plass til både lek for barna og uteplasser for avslapping og hygge. I tillegg er det kort vei til skog og mark med rikelig med turmuligheter. Boligen går over to plan med 1. etasje og en loftsetasje noe som gir flere soner, både for sosiale og private settinger. En bolig verdt å se som tilbyr det beste fra begge verdener - roen på landet og bekvemmeligheten av byen.
Velkommen til visning!
Kort fortalt:
- Usjenert beliggenhet
- Solrik tomt på ca. 2,5 mål
- Landlig og rolig område
- Umiddelbar nærhet til skog og mark.
- Kort kjøretur til sentrumsnære områder
- Dobbelgarasje
Velkommen til visning!
Kort fortalt:
- Usjenert beliggenhet
- Solrik tomt på ca. 2,5 mål
- Landlig og rolig område
- Umiddelbar nærhet til skog og mark.
- Kort kjøretur til sentrumsnære områder
- Dobbelgarasje
NB: Knappen for å vise hele beskrivelsen har kun en visuell effekt.
NB: Knappen for å vise hele beskrivelsen har kun en visuell effekt.
Salgsoppgaven beskriver vesentlig og lovpålagt informasjon om eiendommen
Se komplett salgsoppgaveNyttige lenker
Nærområdet
Krogsveen Skedsmokorset
Verdien av en god megler.
Annonseinformasjon
| FINN-kode | 448079199 |
|---|---|
| Sist endret | 22. apr. 2026 13:15 |
| Referanse | KR59.262 |
Annonsene kan være mangelfulle i forhold til lovpålagt opplysningsplikt. Før bindende avtale inngås oppfordres interessenter til å innhente komplett informasjon fra meglerforetaket, selger eller utleier.

























































