Bildegalleri

Velkommen til Frognerseterveien 60D! Foto: Hanne Bruland
Svendstuen
Rekkehus over 6 halvetasjer - Garasje - Peis - Hage, terrasse og veranda - Oppussing - Barnevennlig område
Prisantydning10 950 000 kr
Nøkkelinfo
- Boligtype
- Rekkehus
- Eieform
- Eier (Selveier)
- Soverom
- 4
- Internt bruksareal
- 167 m² (BRA-i)
- Bruksareal
- 170 m²
- Eksternt bruksareal
- 3 m² (BRA-e)
- Balkong/Terrasse
- 18 m² (TBA)
- Byggeår
- 1982
- Energimerking
- D - Gul
- Tomteareal
- 133 m² (eiet)
Fasiliteter
Barnevennlig
Balkong/Terrasse
Garasje/P-plass
Alarm
Offentlig vann/kloakk
Parkett
Peis/Ildsted
Turterreng
Sentralt
Rolig
Om boligen
Velkommen til Frognerseterveien 60D!
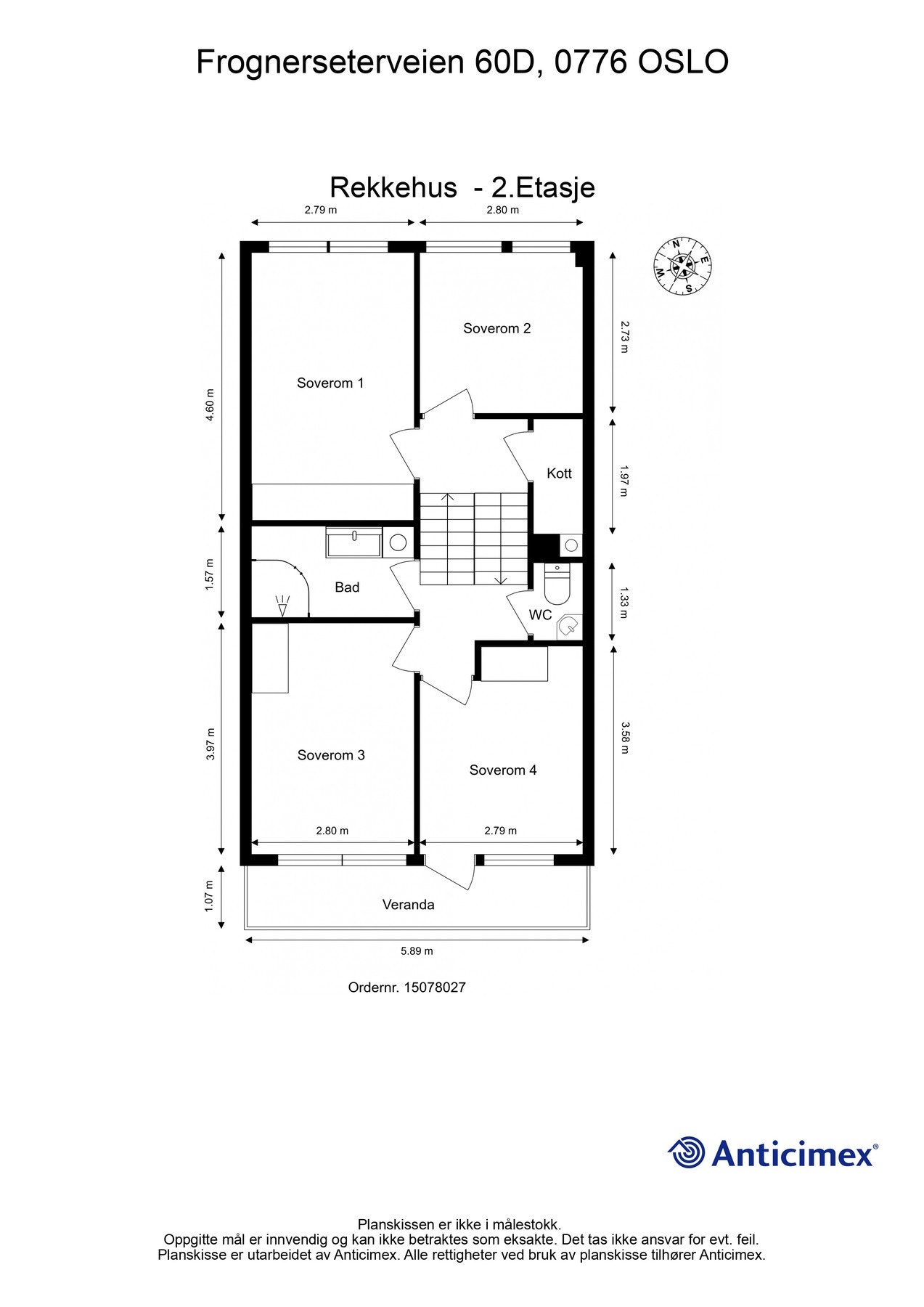
Rekkehus over 6 halvetasjer med garasje. Boligen inneholder en romslig stue med utgang til terrasse, separat kjøkken med spiseplass, 4 soverom, bad, to wc, innredet loft, vaskerom, bod og entré/gang. Fra soverom 4 er det utgang til veranda.
Hyggelig og etablert boligområde med marka som nabo. Svært sentral og barnevennlig beliggenhet med kort vei til servicetilbud, off. transport, Svendstuen barneskole og barnehage og Midtstuen ungdomsskole i gangavstand fra boligen.
Boligen har behov for oppussing.
Verdt å merke seg:
- Parkering i felles garasjerekke
- 4 soverom
- Peis
- Deler av utvendig panel byttet og alle fasader malt i 2025
- Attraktiv og barnevennlig beliggenhet
- Tilknyttet Fossheim velforening
Velkommen til visning!
Rekkehus over 6 halvetasjer med garasje. Boligen inneholder en romslig stue med utgang til terrasse, separat kjøkken med spiseplass, 4 soverom, bad, to wc, innredet loft, vaskerom, bod og entré/gang. Fra soverom 4 er det utgang til veranda.
Hyggelig og etablert boligområde med marka som nabo. Svært sentral og barnevennlig beliggenhet med kort vei til servicetilbud, off. transport, Svendstuen barneskole og barnehage og Midtstuen ungdomsskole i gangavstand fra boligen.
Boligen har behov for oppussing.
Verdt å merke seg:
- Parkering i felles garasjerekke
- 4 soverom
- Peis
- Deler av utvendig panel byttet og alle fasader malt i 2025
- Attraktiv og barnevennlig beliggenhet
- Tilknyttet Fossheim velforening
Velkommen til visning!
NB: Knappen for å vise hele beskrivelsen har kun en visuell effekt.
NB: Knappen for å vise hele beskrivelsen har kun en visuell effekt.
Salgsoppgaven beskriver vesentlig og lovpålagt informasjon om eiendommen
Se komplett salgsoppgaveNyttige lenker
Nærområdet
EIE eiendomsmegling Vinderen
Annonseinformasjon
| FINN-kode | 448058975 |
|---|---|
| Sist endret | 03. feb. 2026 11:43 |
| Referanse | 31250180 |
Annonsene kan være mangelfulle i forhold til lovpålagt opplysningsplikt. Før bindende avtale inngås oppfordres interessenter til å innhente komplett informasjon fra meglerforetaket, selger eller utleier.














































