Bildegalleri

Th.Thomassens vei 15 presenteres av Amir Pedersen-Paydar i Krogsveen. Bilde tatt i 2019 som viser eiendommen sommerstid.
Trosvik
Praktisk enebolig med 4 soverom og 2 moderne bad. Full kjeller og stort råloft. Solrik hjørnetomt med masse tumleplass.
Prisantydning4 750 000 kr
Nøkkelinfo
- Boligtype
- Tomannsbolig
- Eieform
- Eier (Selveier)
- Soverom
- 3
- Internt bruksareal
- 276 m² (BRA-i)
- Bruksareal
- 287 m²
- Eksternt bruksareal
- 11 m² (BRA-e)
- Balkong/Terrasse
- 45 m² (TBA)
- Etasje
- 3
- Byggeår
- 1959
- Energimerking
- G - Gul
- Tomteareal
- 588 m² (festet)
- Festeavgift
- 2 026 kr
Om boligen
Stor og praktisk enebolig på familievennlige Trosvik
- Betydelig oppgradert og modernisert rundt 2006
- Stue i begge etasjer og fire soverom av generøs størrelse
- To moderne bad, renovert i 2016 og 2006
- Velholdt IKEA-kjøkken fra 2006
- Luft-luft varmepumpe fra 2011 i første etasje + ny vedovn installert i 2024
- Full kjeller med over 2 m. himlingshøyde og mange boder - én med sluk
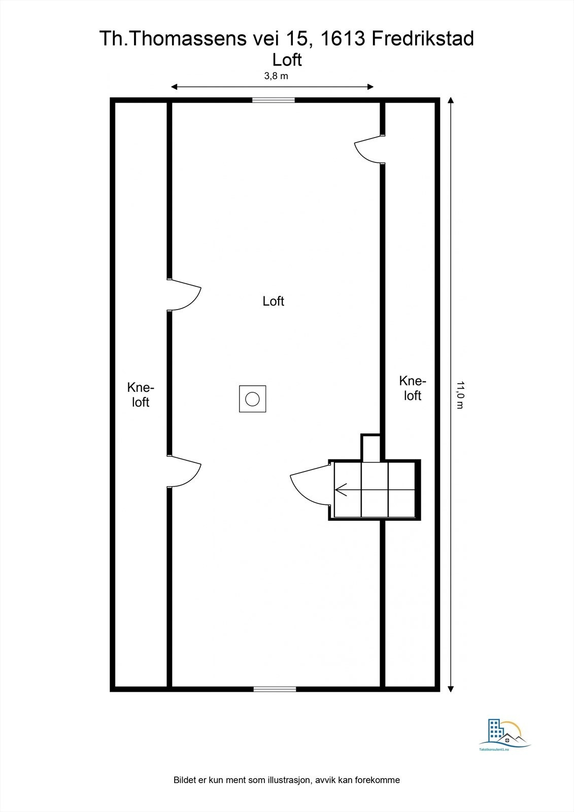
- Stort og spennende råloft med 42 kvm. gulvflate og god høyde
- Lettstelt og avskjermet hage - et perfekt sted for barna å leke
- Sydvendt terrasse og platting, solfylt det meste av dagen
- Veletablert og godt sammensatt nabolag
- Barnehage og barneskole i umiddelbar nærhet
- Kort avstand til dagligvareforretninger, sentrum og marka
NB: Knappen for å vise hele beskrivelsen har kun en visuell effekt.
NB: Knappen for å vise hele beskrivelsen har kun en visuell effekt.
Salgsoppgaven beskriver vesentlig og lovpålagt informasjon om eiendommen
Se komplett salgsoppgaveNyttige lenker
Nærområdet
Krogsveen Fredrikstad og Sarpsborg
Verdien av en god megler.
Annonseinformasjon
| FINN-kode | 448051749 |
|---|---|
| Sist endret | 31. jan. 2026 07:43 |
| Referanse | KR67.25348 |
Annonsene kan være mangelfulle i forhold til lovpålagt opplysningsplikt. Før bindende avtale inngås oppfordres interessenter til å innhente komplett informasjon fra meglerforetaket, selger eller utleier.






































