Bildegalleri

Richard Løyning Arntsen v/ Eiendomsmegler Norge har gleden av å presentere Lahellevegen 42!
PORSGRUNN - "VESSIA"
INNHOLDSRIK OG ROMSLIG ENEBOLIG OVER 3 PLAN. GARASJE. PENT OPPARBEIDET TOMT. ATTRAKTIV BELIGGENHET.
Prisantydning3 300 000 kr
Nøkkelinfo
- Boligtype
- Enebolig
- Eieform
- Eier (Selveier)
- Soverom
- 4
- Internt bruksareal
- 203 m² (BRA-i)
- Bruksareal
- 203 m²
- Etasje
- 3
- Byggeår
- 1955
- Energimerking
- E - Gul
- Tomteareal
- 617 m² (eiet)
Om boligen
Velkommen til Lahellevegen 42!
Lahellevegen 42 er en romslig enebolig over tre plan med flere oppholdsrom og god plass til familien. Boligen ligger i et rolig og etablert boligområde i Porsgrunn, og byr på fine uteplasser/terrasser og gode lagringsmuligheter i kjeller.
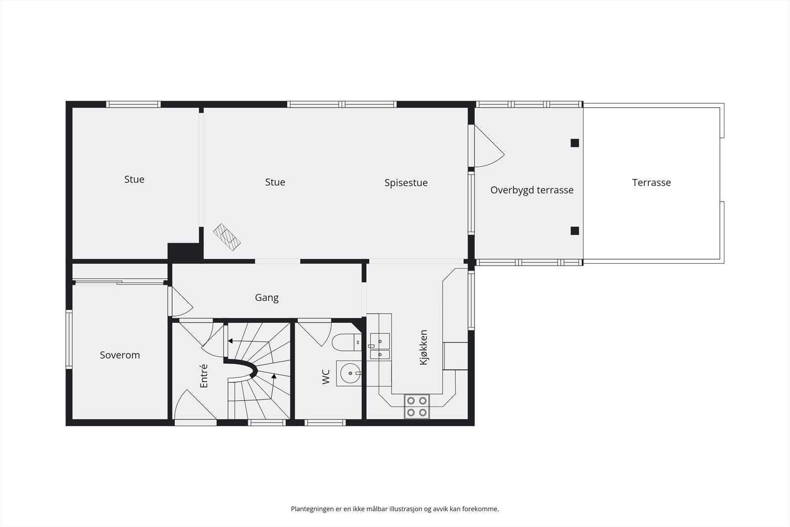
Boligen inneholder følgende:
1.ETG: Entrè, soverom 1, gang, wc, stue 1, stue 2, spisestue og kjøkken.
2.ETG: Trappegang, gang, soverom 2, soverom 3. soverom 4 og stue.
U.ETG: Gang, bod 1, bod 2, bod 2. bod 4, bod 5 og vaskerom.
- I tillegg er det romslig garasje og drivhus på tomten.
Lahellevegen 42 er en romslig enebolig over tre plan med flere oppholdsrom og god plass til familien. Boligen ligger i et rolig og etablert boligområde i Porsgrunn, og byr på fine uteplasser/terrasser og gode lagringsmuligheter i kjeller.
Boligen inneholder følgende:
1.ETG: Entrè, soverom 1, gang, wc, stue 1, stue 2, spisestue og kjøkken.
2.ETG: Trappegang, gang, soverom 2, soverom 3. soverom 4 og stue.
U.ETG: Gang, bod 1, bod 2, bod 2. bod 4, bod 5 og vaskerom.
- I tillegg er det romslig garasje og drivhus på tomten.
NB: Knappen for å vise hele beskrivelsen har kun en visuell effekt.
NB: Knappen for å vise hele beskrivelsen har kun en visuell effekt.
Salgsoppgaven beskriver vesentlig og lovpålagt informasjon om eiendommen
Se komplett salgsoppgaveNyttige lenker
Nærområdet
Eiendomsmegler Norge Telemark
Best der du bor
Annonseinformasjon
| FINN-kode | 448019509 |
|---|---|
| Sist endret | 26. jan. 2026 08:23 |
| Referanse | 66250030 |
Annonsene kan være mangelfulle i forhold til lovpålagt opplysningsplikt. Før bindende avtale inngås oppfordres interessenter til å innhente komplett informasjon fra meglerforetaket, selger eller utleier.









































