Bildegalleri

Velkommen til Olaf Aakranns veg 25! Her får du en unik mulighet til å ferdigstille din drømmebolig i et veletablert boligområde på Silkosfeltet ca.1,5 km fra Elverum sentrum.
Silkosfeltet
Påbegynt rehabilitering av enebolig m/nytt tilbygg fra 2024| Familievennlig planløsning|Populært og barnevennlig område!
Prisantydning5 000 000 kr
Nøkkelinfo
- Boligtype
- Enebolig
- Eieform
- Eier (Selveier)
- Soverom
- 4
- Internt bruksareal
- 176 m² (BRA-i)
- Bruksareal
- 176 m²
- Etasje
- 2
- Byggeår
- 1968
- Rom
- 5
- Tomteareal
- 798 m² (eiet)
Fasiliteter
Barnevennlig
Hage
Rolig
Sentralt
Turterreng
Visning
søndag, 01. februar
12:30 – 13:30
Vi har påmelding til alle våre visninger. Dette gjør at eiendomsmegleren kan planlegge godt og gi personlig oppfølging til hver enkelt som kommer. For deg som vurderer å kjøpe bolig, betyr dette en mer ryddig og tilrettelagt visningsopplevelse. Påmelding og avmelding gjøres enkelt, og du er også velkommen til å ta kontakt med megleren i forkant dersom du har noe du lurer på.
VisningspåmeldingOm boligen
Emera Eiendomsmegling v/Solveig Granlund ønsker velkommen til Olaf Aakranns veg 25. Eiendommen har fin beliggenhet i blindvei i et veletablert boligområde på Silkosfeltet. Boligen ligger ca.1,5 km fra Elverum sentrum hvor du finner kjøpesentre, kino, kulturhus, banker, bibliotek, kafeer/ restauranter og øvrige servicetilbud. Det er flere barnehager i nærområde samt kort vei til skoler. Nærmeste dagligvarebutikk er kun 700 m fra eiendommen.
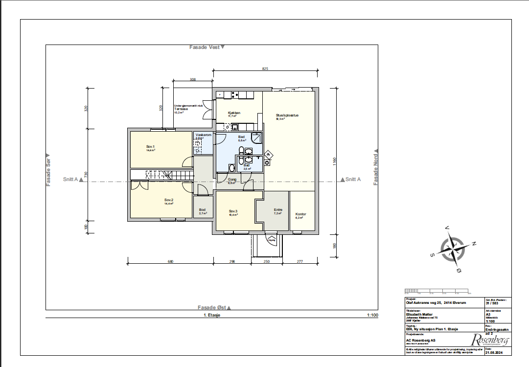
Eneboligen er påbegynt renovert og har nytt tilbygg fra 2024. Så godt som alt er revet med unntak av vegger av Siporex. Kledning, tak, vinduer er på plass. Innvendig er rominndelingen påbegynt og det er reist stendere. Boligen er innredet med 2 flislagte baderom med vaskerom i tilknytning til hovedbad.
Her kan du skape ditt drømmehjem!
Eneboligen er påbegynt renovert og har nytt tilbygg fra 2024. Så godt som alt er revet med unntak av vegger av Siporex. Kledning, tak, vinduer er på plass. Innvendig er rominndelingen påbegynt og det er reist stendere. Boligen er innredet med 2 flislagte baderom med vaskerom i tilknytning til hovedbad.
Her kan du skape ditt drømmehjem!
NB: Knappen for å vise hele beskrivelsen har kun en visuell effekt.
NB: Knappen for å vise hele beskrivelsen har kun en visuell effekt.
Salgsoppgaven beskriver vesentlig og lovpålagt informasjon om eiendommen
Se komplett salgsoppgaveNyttige lenker
Nærområdet
Emera eiendomsmegling
Annonseinformasjon
| FINN-kode | 447770874 |
|---|---|
| Sist endret | 26. jan. 2026 20:28 |
| Referanse | EMERA4.2625 |
Annonsene kan være mangelfulle i forhold til lovpålagt opplysningsplikt. Før bindende avtale inngås oppfordres interessenter til å innhente komplett informasjon fra meglerforetaket, selger eller utleier.













