Bildegalleri

P6090219
Flott, romslig 3-roms på bakkeplan fra 2022. Ny og moderne, romslig uteplass og fint utsyn!
Nøkkelinfo
- Boligtype
- Leilighet
- Eieform
- Andel
- Soverom
- 2
- Internt bruksareal
- 76 m² (BRA-i)
- Bruksareal
- 81 m²
- Eksternt bruksareal
- 5 m² (BRA-e)
- Balkong/Terrasse
- 13 m² (TBA)
- Etasje
- 1
- Byggeår
- 2022
- Energimerking
- B - Mørkegrønn
- Rom
- 3
- Tomteareal
- 1 425 m² (eiet)
Fasiliteter
Visning
Beskrivelse
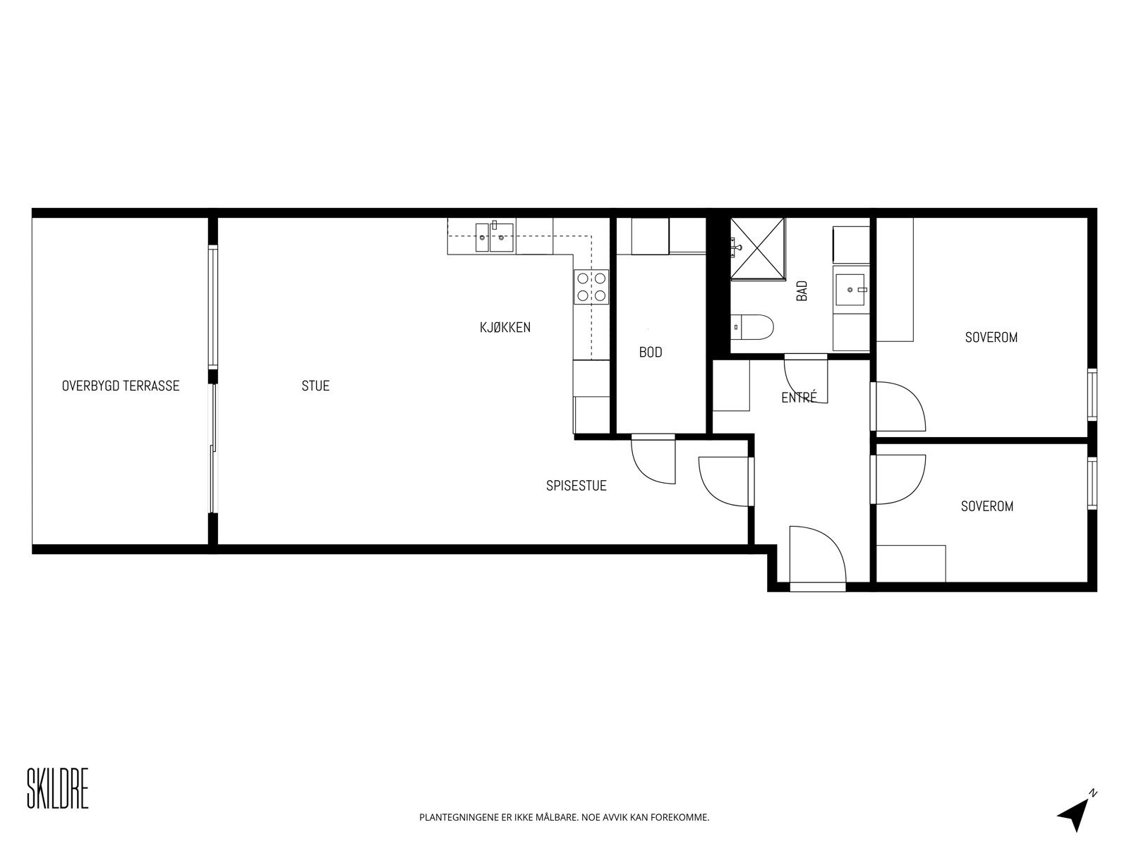
Velkommen til denne stilrene og moderne 3-roms leiligheten i 1. etasje på ca. 76 kvm, ferdigstilt i 2023. Leiligheten har gjennomgående god standard med parkett, malte vegger i lune farger og vannbåren gulvvarme. Kjøkken fra HTH med integrerte hvitevarer, samt flislagt bad. To romslige soverom med garderobeskap som gir god oppbevaringsplass.
Entre:
Romslig entrè med garderobenisje for ytterklær og sko.
Innvendig bod/kott:
Leiligheten har en romslig bod / teknisk rom med god plass til lagring. I tillegg har leiligheten en bod på ca 5 kvm i kjeller.
Bad/wc:
Lekker, flislagt bad med gulvvarme. Badet er innredet med dusjnisje med innfellbare dusjvegger, vegghengt wc, innredning med skuffer og skap samt nedfelt servant og plass for vaskemaskin/tørketrommel.
Kjøkken:
Kjøkkenet har en fin , lys innredning fra HTH med høye overskap og godt med skuffer i underskapene. Innredningen er av laminert utførelse med laminert benkeplate og kjøkkenplate i benyerygg. Ledlys uver overskap og integrerte hvitevarer som kjøleskap med fryser, oppvaskmaskin, platetopp og stekeovn.
Soverom:
Leiligheten har to soverom, et på ca 8 kvm og et på ca 13 kvm. med garderobeløsning.
Stue:
Romslig stue med åpen løsning til kjøkkenet på ca 35 kvm. Stuen er praktisk og veldig møblerbar. Her får du plass til både en stor spisestue samt sofa og godstol foran tv'en. Store vindusløsninger ut som gir rommet masse naturlig lys og skyve- hevedør ut til den romslige terrasseplattingen.
Terrasse:
Vestvendt terrasse med god plass for både hagemøbler og grill. Fra terrassen kan man gå rett ut i de fine fellesområdene og det uttallige turmulighetene rett utenfor stuedøra.
Beliggenhet
I den nye bydelen, Voll & Lund, finner du et idyllisk kulturlandskap, omgitt av grønne åser, duvende kornåkre og fredfulle skoger. Sollitunet og området rundt kalles gjerne for Hamars tak, da det ligger i høyden, og byr på solrike og naturfylte omgivelser. Område har direkte tilgang til utallige tudmuligheter, både i Furuberget, i Klukhagan samt skiløyper som er kjørt på de omkringliggende åkrene like ved. Området har i tillegg gode bussforbindelser, og bussen stopper like ved. Gangavstand til Kiwi.
Adkomst
Se kart i salgsoppgave og i nettannonse.
Det vil bli skiltet med OBOS visningsskilt ved fellesvisninger.
Byggemåte
UTVENDIG:
Vinduer med 3- lags isolerglass, hvitlakkerte karmer. Grålakkert tredør. Brann og- lydklassifisert El30/Db35. Skyvedør med 3- lags isolerglass, hvitlakkert karm. Utgang fra stue til takoverbygd terrasse på 13 m2. Spaltegulv med impregnerte terrassebord.
INNVENDIG:
Gulvflater med 1- stavs eikeparkett og keramiske fliser. Veggflater med malte plater, malt mur og keramiske fliser. Himlinger med malte plater, malte dekkeelementer, hvitlakkerte stålplater og systemhimling. Etasjeskille er utført med dekke elementer. Bygget er utført med forskriftsmessig radonsperre og dokumentasjon foreligger. Slette, finerte innerdører i hvitlakkert utførelse. 1 glassdør.
Se forøvrig takst utført av Hamar Takst- og byggvurdering, datert 30.12.2025.
Innhold
Leiligheten ligger i 1 etasje, går over et plan og inneholder:
Stue med åpen kjøkkenløsning og utgang til vestvendt terrasse, gang/entrè med garderobeløsning, flislagt baderom, to soverom med garderobeløsning samt innvendig bod.
Boligen har en egen bod i kjeller samt garasjeplass for en bil i felles garasjeanlegg. Boligen har også et eget skap i et felleshus på borettslagets uteområde.
Arealer og fordeling per etasje
Totalt BRA 81 kvm består av:
- BRA-i (internt bruksareal): 76 kvm
- BRA-e (eksternt bruksareal): 5 kvm
- TBA (terrasse-/balkongareal) 13 kvm
Det totale bruksarealet fordeler seg som følger:
- BRA: 81 m²- består av: innvendig areal pluss bod i kjeller
- BRA-i: 76 m²- består av: stue, kjøkken, entrè/gang, baderom, innvendig bod og to soverom.
- BRA-e: 5 m²- består av: bod i kjeller.
Vedlagte plantegninger er ikke målbare, og oppgitte arealer er hentet fra vedlagte tilstandsrapport. Arealene er plassmålt og beregnet med utgangspunkt i NS 3940:2023.
Areal
Primærrom: 71 kvm, Bruksareal: 81 kvm, BRA-i: 76 kvm , BRA-e: 5 kvm , TBA: 13 kvm
Standard
Tilstanden på boligen vurderes etter ulike tilstandsgrader. Tilstanden gir uttrykk for en gitt forventet tilstand, blant annet vurdert ut fra alder og normal bruk. For utfyllende informasjon om fastsetting av tilstandsgrader og hvilke tilstandsgrader som er gitt for gjeldende bolig, se vedlagt tilstandsrapport fra bygningssakkyndig.
Oversikt over avvik i tilstandsrapport med tilstandsgrad 2 og 3:
Boligen har ingen avvik med tilstandsgrad 2 og 3.
Opplysninger om byggemåte er hentet fra vedlagt tilstandsraport, utført av Hamar takst og byggvurdering AS. Rapporten er datert 30.12.2025.
Utstyr
Følgende hvitevarer medfølger: platetopp, stekeovn, kjøleskap med fryser, oppvaskmaskin. Det gis ingen garantier i forhold til tilstand, funksjonalitet og levetid på hvitevarer eller utstyr som medfølger etter avtalen. Øvrige hvitevarer medfølger ikke.
Oppvarming
Vannbåren gulvvarme med varmeleveranse fra Eidsiva bioenergi. Varmestyring i hvert rom. Balansert ventilasjon med varmegjenvinning.
Tomten
Borettslagets tomt er pent opparbeidet med plen og diverse beplantning som frukttrær og plantekasser for felles bruk. Asfalterte parkeringsplasser og gangveger. Det er oppført et felleshus som kan benyttes av beboerne. Her har hver enkelt beboer et eget, låsbart skap, det er benk for skismøring og evt sykkelreperasjoner i tillegg til hageslange. Det er også oppført felles sykkelstativ i fellesområdene.
Parkering
Det medfølger en garasjeplass i parkeringskjelleren, merket plass nr.
Vei/vann/avløp
Offentlig
Forretningsfører
Obos Innlandet. Tlf 22 86 55 00.
Borettslaget
Sollitunet Øvre borettslag består av tilsammen 62 enheter.
Borettslaget hadde et årsresultat på kr 8.751.805,- i 2024 som ble oveført som egenkapital. Disponible midler pr. 31.12.2024 utgjorde kr 1.292.000,-.
Megler har kopi av selskapets husordensregler, vedtekter, budsjett og siste års regnskap. Dette kan interessenter få oversendt på forespørsel eller lastes ned sammen med salgsoppgaven.
Forkjøpsrett
Dersom forkjøpsretten blir benyttet, vil kjøper bli løst fra den inngåtte kontrakten. Den forkjøpsberettigede trer da inn i kontrakten på samme vilkår og i henhold til lov om borettslag.
Styregodkjennelse
Kjøper skal godkjennes av styret i borettslaget. Kjøper bærer selv risikoen for godkjenning.
Dyrehold
Det er tillatt å holde dyr så lenge dyreholdet ikke er til sjenanse for de øvrige beboerne. Dyrehold tillates kun etter søknad til styret og undertegning av borettslagets dyreholdserklæring. Se borettslagets husordensregler for ytterligere informasjon.
Forsikring
Borettslaget er fullverdiforsikret i Tryg Skadeforsikring med polisenr. 8053414. Kjøper må selv sørge for innboforsikring.
Ligningsverdi
Kr. ... som primærbolig
Kr. ... som sekundærbolig iflg Skatt Øst.
Eiendomsskatt
Eiendomsskatt er inkludert i fellesutgiftene.
Felleskostnader
15 269,- pr Mnd
Kommunale avgifter, forsikring, renovasjon, eiendomsskatt, vaktmester, renter andel fellesgjeld, oppvarming à konto, forretningsførser og regnskap samt drift og vedlikehold.
Felleskostnadene er fordelt slik:
Garasje kr. 150,-
Felleskostnader kr. 4.506,-
À konto oppvarming kr. 955,-
Kapitalkostnader kr. 9657,-
Andel fellesgjeld/fellesformue
Andel fellesgjeld kr. 2.370.000,-
Andel formue kr. 21.106,-
Lånevilkår
Lånegiver: OBOS Banken
Lånetype: annuitetslån med flytende rente
Rentesats: 4,89%
Innfrielsesdato: 30.01.2063
Avdragsfrihet: til januar 2028
Økning etter avdragsfri periode: Ca kr. 1900,-
Kjøper oppfordres særskilt å vurdere konsekvensene av eventuelle renteendringer, lengde på evt avdragsfri periode, samt de økonomiske konsekvenser ved utløpet av en avdragsfri periode. Endringer i disse forhold vil medføre endringer i størrelsen av felleskostnadene.
Kjøper forutsettes også å være innforstått med at fellesgjelden i borettslaget og felleskostnadene kan variere over tid, og at den kan øke som følge av beslutninger i borettslagets styre eller generalforsamling.
Kjøpers ansvar for øvrige andelseieres mislighold
Boligen inngår i et OBOS-tilknyttet borettslag. Dersom borettslaget påføres økonomisk tap som følge av manglende innbetalte felleskostnader, garanterer OBOS overfor borettslaget full inndekning av disse manglende innbetalte felleskostnader.
Ferdigattest/midlertidig brukstillatelse
Det foreligger ferdigattest datert
Utleie
Det er ikke tillatt å leie ut eller overlate bruken av boligen til andre uten styrets samtykke og godkjennelse av leietaker. Søknadsskjema for utleie/bruksoverlating fås ved henvendelse til styret i borettslaget eller til forretningsfører. Med godkjenning fra styret er utleie tillatt for inntil 3 år, dersom andelseier selv eller person nevnt i Borettslagsloven § 5-6 (3) har bebodd eiendommen i minst ett av de to siste årene. Adgangen til bruksoverlating (utleie) er begrenset. Merk at mulighet for korttidsutleie av hele boligen er begrenset til 30 dager jf borettslagslovens § 5-4.
Servitutter/rettigheter/forpliktelser
Grunnboksutskrift for borettslaget er innhentet og kan fås ved henvendelse til megler.
Reguleringsmessige forhold/Kommunale planer
Boligen er regulert til ... formål ihht reguleringsplan ... datert...
Innhentede reguleringsbestemmelser og utsnitt av reguleringsplan oppbevares på ansvarlig meglers kontor og kan utleveres på forespørsel.
Oppgjør
Samlet kjøpesum og omkostninger forutsettes innbetalt til klientkonto fra kjøpers konto i norsk finansinstitusjon.
Overtagelse
Etter avtale med selger.
Eierskifteforsikring
Selger har tegnet boligselgerforsikring
Se vedlagte egenerklæring og tilstandsrapport for mer informasjon.
Boligkjøperforsikring
Kjøper har anledning til å tegne Boligkjøperforsikring fra Tryg.
Forsikringen gir deg umiddelbart tilgang til spesialisert advokat, og fritar deg for den økonomiske prosessrisikoen ved reklamasjoner. Boligkjøperforsikringen gjelder fra kontraktsmøtet og opphører automatisk etter fem år. Du finner mer informasjon om denne vedlagt.
Prisen avhenger av hvilken type bolig du kjøper. Prisen på forsikringen legges inn i oppgjøret for din nye bolig, og du får ingen særskilt regning på denne.
Leilighet med andels- eller aksjenummer 8.900 kroner.
Leilighet og rekkehus med seksjonsnummer 13.900 kroner.
Rekkehus med eget gnr/bnr 17.900 kroner
Enebolig, fritidsbolig, tomannsbolig, tomt 17.900 kroner.
OBOS Eiendomsmeglere mottar kostnadsdekning for formidling av denne forsikringen.
Energimerking
Eier skal legge frem energiattest for kjøper, før avtale om salg av boligen/bygningen blir inngått. Dersom eier ikke har lagt frem energiattest, og eier etter skriftlig anmodning fra kjøper ikke har lagt frem energiattest før avtale om salg er inngått, kan kjøper få laget en energiattest ved hjelp av ekspert for selgers regning, innen ett år etter at avtale om salg er inngått. Kjøper må skriftlig anmode om en energiattest innen kjøpekontrakten er underskrevet.
Strømstøtteordning
Selger har ikke bundet opp eiendommen i strømstøtteordningen Norgespris.
Budgivning
Som kjøper vil du få forelagt kopi av budjournal. Eiendomsmeglingsforskriften § 6-3 3. ledd forbyr oppdragsansvarlig i forbrukerforhold å videreformidle bud til selger med kortere akseptfrist enn til kl 12.00 første virkedag etter siste annonserte visning. Lørdag regnes ikke som virkedag. Vi fraråder derfor å inngi slike bud da de ikke vil bli videreformidlet til selger. Ethvert bud må ha en akseptfrist som muliggjør en forsvarlig avvikling av budrunden, samt at det må komme megler i hende minst et kvarter før tidligere bud går ut. For øvrig henvises til forbrukerinformasjon i vedlagt budskjema. I følge eiendomsmeglingsforskriften § 6-3 første ledd har oppdragsansvarlig en plikt til å oppfordre oppdragsgiver til ikke å ta imot bud direkte fra budgiver, men henvise til oppdragstaker.
Løsøre og tilbehør
Det er kun integrerte hvitevarer på kjøkken som medfølger dersom annet ikke er avtalt. For øvrig legges listen over løsøre og tilbehør, utarbeidet av Norges Eiendomsmeglerforbund, Eiendomsmeglerforetakenes Forening og Eiendomsadvokatenes Servicekontor, gjeldende fra 1.februar 2012, til grunn for salget dersom ikke annet fremkommer av salgsoppgaven. Listen er tilgjengelig hos oppdragsansvarlig samt på www.nef.no. Til orientering er det full avtalefrihet om hva som skal følge med bolig og fritidsbolig ved salg.
Lov om hvitvasking
I henhold til lov om hvitvasking og terrorfinansiering har megler plikt til å gjennomføre kontrolltiltak ovenfor kunder. Dette innebærer å bekrefte kunders identitet på bakgrunn av fremvist gyldig legitimasjon. Videre innebærer det å få bekreftet identiteten til eventuelle reelle rettighetshavere, og å innhente opplysninger om kundeforholdets formål.
Dersom megler får mistanke om brudd på hvitvaskingsreglementet i forbindelse med en eiendomshandel, og han ikke klarer å få avkreftet denne mistanke, har han plikt til å rapportere dette til Økokrim. Melding sendes Økokrim uten at partene varsles. Megler kan i enkelte tilfeller også ha plikt til å stanse gjennomføring av handelen.
Lovanvendelse og kontraktsbetingelser
Eiendommen selges etter reglene i avhendingsloven.
Følgende gjelder ved salg til forbrukerkjøper*:
Eiendommen skal overleveres kjøper i tråd med det som er avtalt. Det er viktig at kjøper setter seg grundig inn i alle salgsdokumentene, herunder salgsoppgave, tilstandsrapport og selgers egenerklæring. Kjøper anses kjent med forhold som er tydelig beskrevet i salgsdokumentene. Forhold som er beskrevet i salgsdokumentene kan ikke påberopes som mangler. Dette gjelder uavhengig av om kjøper har lest dokumentene. Alle interessenter oppfordres til å undersøke eiendommen nøye, gjerne sammen med fagkyndig før bud inngis. Kjøper som velger å kjøpe usett kan ikke gjøre gjeldende som mangel noe han burde blitt kjent med ved undersøkelsen.
Dersom det er behov for avklaringer, anbefaler vi at kjøper rådfører seg med eiendomsmegler eller en bygningssakyndig før det legges inn bud.
Hvis eiendommen ikke er i samsvar med det kjøperen må kunne forvente ut ifra alder, type og synlig tilstand, kan det være en mangel. Det samme gjelder hvis det er holdt tilbake eller gitt uriktige opplysninger om eiendommen. Dette gjelder likevel bare dersom man kan gå ut ifra at det virket inn på avtalen at opplysningen ikke ble gitt eller at feil opplysninger ikke ble rettet i tide på en tydelig måte. En bolig som har blitt brukt i en viss tid, har vanligvis blitt utsatt for slitasje og skader kan ha oppstått. Slik bruksslitasje må kjøper regne med, og det kan avdekkes enkelte forhold etter overtakelse som nødvendiggjør utbedringer. Normal slitasje og skader som nødvendiggjør utbedring, er innenfor hva kjøper må forvente og vil ikke utgjøre en mangel.
Boligen kan ha en mangel dersom det er avvik mellom opplyst og faktisk areal, forutsatt at avviket er på 2% eller mer og minimum 1 kvm.
Ved beregning av et eventuelt prisavslag eller erstatning må kjøper selv dekke tap/kostnader opptil et beløp på kr 10 000 (egenandel).
Selgeren er ikke kjent med at eiendommen er beheftet med mangler i relasjon til offentligrettslige krav ut over det som er opplyst tidligere, jfr Avhendingsloven § 3-2.
*Med forbrukerkjøper menes kjøp av eiendom når kjøperen er en fysisk person som ikke hovedsakelig handler som ledd i næringsvirksomhet.
Dersom kjøper ikke er forbruker selges eiendommen "som den er", jfr Avhendingslovens § 3-9:
Selgers ansvar er da begrenset og vil være en del av kontraktsvilkårene. jf. avhl. § 3-9, 2. pktm.
Informasjon om kjøpers undersøkelsesplikt, herunder oppfordringen om å undersøke eiendommen nøye, gjelder også for kjøpere som ikke anses som forbrukere.
I forhold til mangler, er det kun Avhendingslovens § 3-7 "manglende opplysninger om eiendommen" og § 3-8 "uriktige opplysninger om eiendommen" som kan påberopes, med mindre boligen er i vesentlig dårligere stand enn kjøperen hadde grunn til å regne med ut ifra kjøpesum og forholdene ellers, jfr Avhendingsloven§ 3-9. Avhendingsloven § 3-3 (2) fravikes, og hvorvidt en innendørs arealsvikt karakteriseres som en mangel vurderes etter avhendingsloven § 3-8.
Finansiering
OBOS-banken tilbyr lån til alle slags boliger. På obosbanken.no kan du sjekke hvor mye du kan få i lån, beregne lånekostnader og søke om finansiering. Skal du kjøpe nytt før du har solgt din nåværende bolig, får du mellomfinansiering til samme rente som boliglånet.
Det gjøres oppmerksom på at OBOS Eiendomsmeglere kan motta kostnadsdekning for formidling av finansielle tjenester.
Salgsoppgave
Salgsoppgaven er opprettet 22.01.2026 og utformet iht. lov om eiendomsmegling av 29.06.2007. Følgende dokumenter følger som vedlegg til salgsoppgaven: selgers egenerlæring, tilstandsrapport, energiattest, opplysninger fra borettslaget. Salgsoppgaven er ufullstendig uten alle vedlegg.
Ansvarlig megler
Eiendomsmegler Erlend Kvaløy
Salgsoppgaven beskriver vesentlig og lovpålagt informasjon om eiendommen
Se komplett salgsoppgaveNyttige lenker
Nærområdet
OBOS eiendomsmeglere - Hamar
Annonseinformasjon
| FINN-kode | 447640925 |
|---|---|
| Sist endret | 02. feb. 2026 12:20 |
| Referanse | 715250169 |
Annonsene kan være mangelfulle i forhold til lovpålagt opplysningsplikt. Før bindende avtale inngås oppfordres interessenter til å innhente komplett informasjon fra meglerforetaket, selger eller utleier.



































