Bildegalleri

Margarethas vei 27 presenteres av PrivatMegleren ved Ansh Chattree.
ROLVSRUD PARK | LØRENSKOG
TRIVELIG 3-ROMS SELVEIER MED SOLRIK BALKONG | GARASJEPLASS INK | HEIS | 2 BODER | ROLIG OG SENTRAL BELIGGENHET
Prisantydning5 450 000 kr
Nøkkelinfo
- Boligtype
- Leilighet
- Eieform
- Eier (Selveier)
- Soverom
- 2
- Internt bruksareal
- 89 m² (BRA-i)
- Bruksareal
- 92 m²
- Eksternt bruksareal
- 3 m² (BRA-e)
- Balkong/Terrasse
- 13 m² (TBA)
- Etasje
- 3
- Byggeår
- 2006
- Energimerking
- E - Rød
- Rom
- 3
- Tomteareal
- 10 474 m² (eiet)
Fasiliteter
Barnevennlig
Balkong/Terrasse
Garasje/P-plass
Kabel-TV
Heis
Offentlig vann/kloakk
Parkett
Vaktmester-/vektertjeneste
Sentralt
Bredbåndstilknytning
Moderne
Rolig
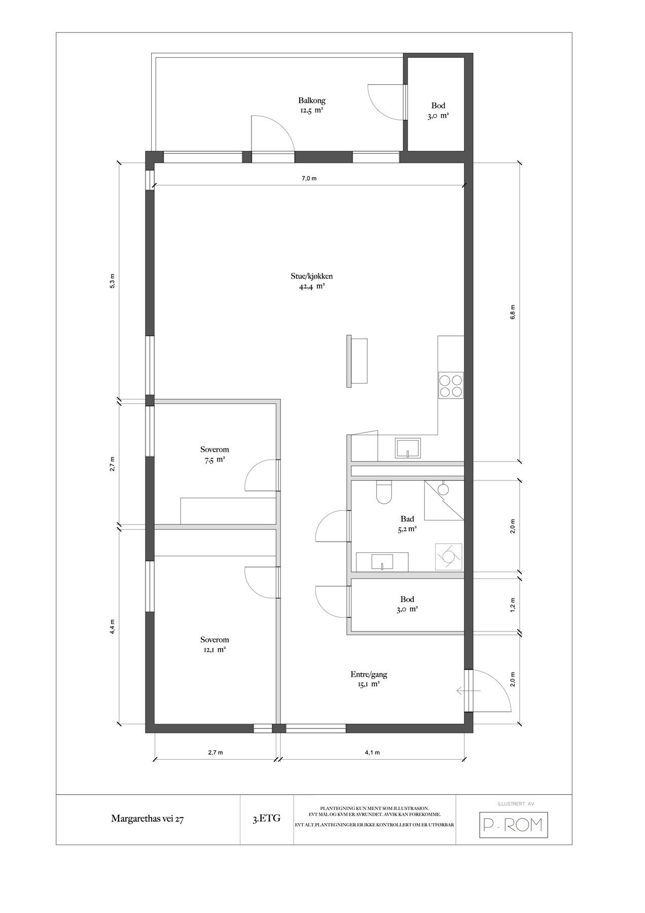
Om boligen
Velkommen til Margarethas vei 27, en innbydende og velholdt 3-roms leilighet beliggende i 3. etasje i et rolig og attraktivt boligområde. Leiligheten byr på en god og funksjonell planløsning, lys stue- og kjøkkenløsning, to soverom og utgang til en romslig balkong på ca. 13 kvm med gode solforhold. Heisadkomst fra felles garasjeanlegg hvor egen garasjeplass med elbillader medfølger, gir en enkel og komfortabel hverdag. Her bor du med nærhet til både servicetilbud, kollektivtransport og grønne omgivelser - et hjem som passer perfekt for deg som ønsker både ro og tilgjengelighet.
Høydepunkter:
. 3-roms leilighet i 3. etasje med god planløsning
. Stor balkong på ca. 13 kvm med gode solforhold
. Heisadkomst
. Egen garasjeplass
. Lys og åpen stue- og kjøkkenløsning med hyggelig atmosfære
. To soverom med garderobeskap
. Helfliset bad med varmekabler og opplegg for vaskemaskin
. Innvendig bod
. Utvendig bod ved balkong
Høydepunkter:
. 3-roms leilighet i 3. etasje med god planløsning
. Stor balkong på ca. 13 kvm med gode solforhold
. Heisadkomst
. Egen garasjeplass
. Lys og åpen stue- og kjøkkenløsning med hyggelig atmosfære
. To soverom med garderobeskap
. Helfliset bad med varmekabler og opplegg for vaskemaskin
. Innvendig bod
. Utvendig bod ved balkong
NB: Knappen for å vise hele beskrivelsen har kun en visuell effekt.
NB: Knappen for å vise hele beskrivelsen har kun en visuell effekt.
Salgsoppgaven beskriver vesentlig og lovpålagt informasjon om eiendommen
Se komplett salgsoppgaveNærområdet
PrivatMegleren Grünerløkka
Kun det beste på dine vegne
Annonseinformasjon
| FINN-kode | 447541057 |
|---|---|
| Sist endret | 02. feb. 2026 05:15 |
| Referanse | 302251128 |
Annonsene kan være mangelfulle i forhold til lovpålagt opplysningsplikt. Før bindende avtale inngås oppfordres interessenter til å innhente komplett informasjon fra meglerforetaket, selger eller utleier.




























