Bildegalleri

Velkommen til Pettersvollen 5E

Konnerud

Meget pen to-roms leilighet med høy standard. Vannbåren gulvvarme. Null fellesgjeld. Heis.

Prisantydning2 950 000 kr
Totalpris
2 961 040 kr
Omkostninger
11 040 kr
Felleskost/mnd.
3 742 kr
Fellesformue
12 313 kr
Formuesverdi
835 148 kr

Nøkkelinfo

Boligtype
Leilighet
Eieform
Andel
Soverom
1
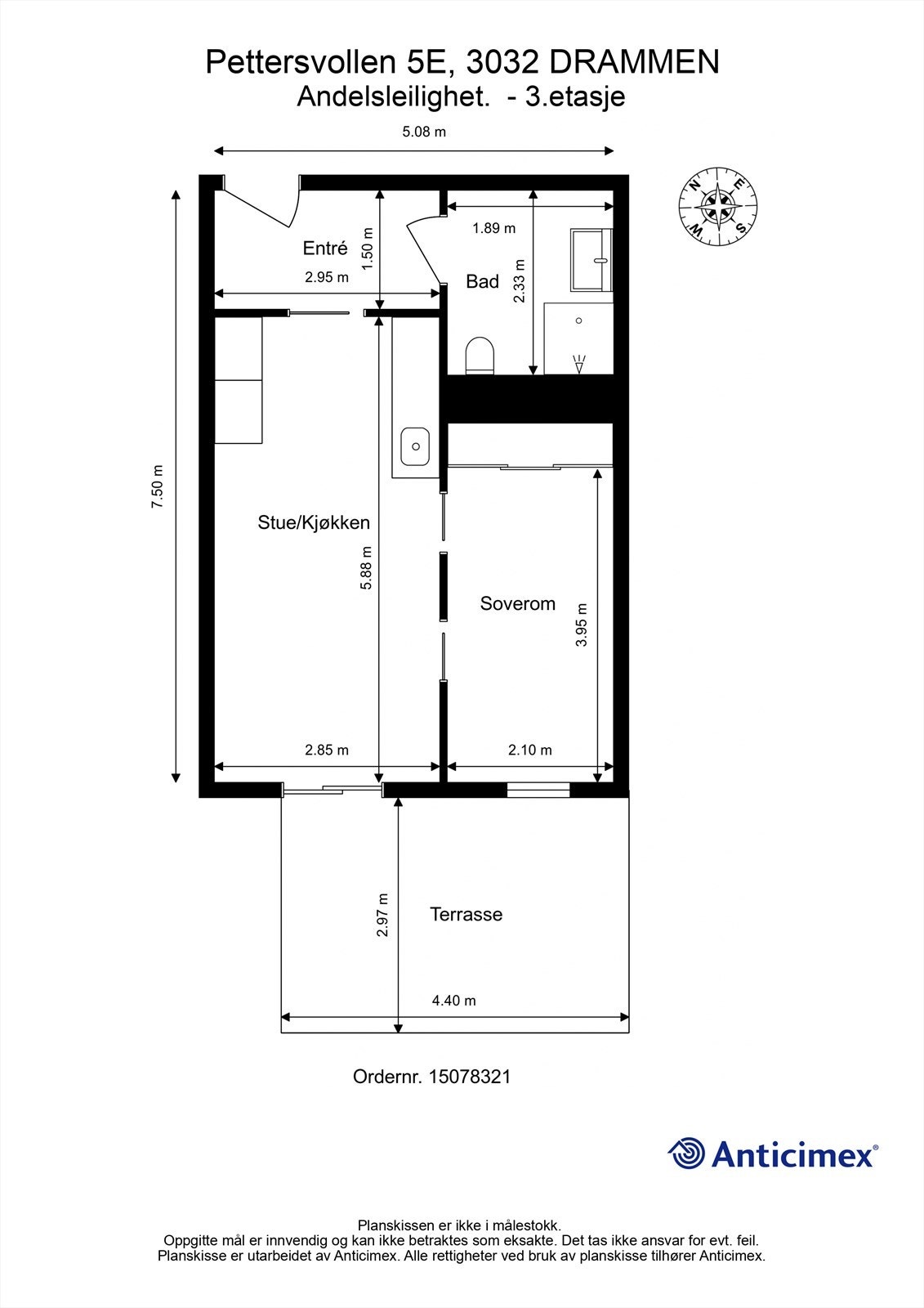
Internt bruksareal
38 m² (BRA-i)
Bruksareal
43 m²
Eksternt bruksareal
5 m² (BRA-e)
Balkong/Terrasse
13 m² (TBA)
Etasje
3
Byggeår
2023
Energimerking
C - Rød
Tomteareal
1 315 m² (eiet)

Les mer om bruksareal her

Fasiliteter

Takterrasse
Balkong/Terrasse
Barnevennlig
Heis
Kjæledyr tillatt
Parkett
Rolig
Sentralt
Utsikt
Turterreng
Balansert ventilasjon

Visning

mandag, 02. februar
17:00 – 17:45
Visningspåmelding

Om boligen

Lekker to-roms leilighet med høy standard

  • Selger har nedbetalt sin andel fellesgjeld og har pr. dd. kr 0,- i andel fellesgjeld
  • Leiligheten ligger i 3. etasje fra gateplan, men i 1. etasje fra atrium som kun er tilgjengelig for beboere
  • Gulvvarme i alle rom og balansert ventilasjon
  • Pent kjøkken og pen flislagt bad
  • Leiligheten disponerer en bod på ca. 5 kvm
  • Terrasseplatting på ca. 13 kvm
  • Heisadkomst til leilighetens etasjeplan
  • Gjenværende garanti fra utbygger (5 år fra 2023)
  • Pent atrium som kun er for beboere og felles takterrasse
  • Leiligheten ligger i nærheten av flott turterreng med lysløype
  • Eiendommen er i direkte tilknytning til Konnerudsenteret, som er bydelens naturlige samlingssted for handel


Velkommen til visning!

Salgsoppgaven beskriver vesentlig og lovpålagt informasjon om eiendommen

Se komplett salgsoppgave

Nærområdet

Annonseinformasjon

FINN-kode447529680
Sist endret02. feb. 2026 08:31
ReferanseKR20.265

Rapporter annonse

Annonsene kan være mangelfulle i forhold til lovpålagt opplysningsplikt. Før bindende avtale inngås oppfordres interessenter til å innhente komplett informasjon fra meglerforetaket, selger eller utleier.