Bildegalleri

Emir Resulbegovic v. Emera Eiendomsmegling ønsker velkommen til Rolf Hofmos gate 6!
Bo godt på Ensjø
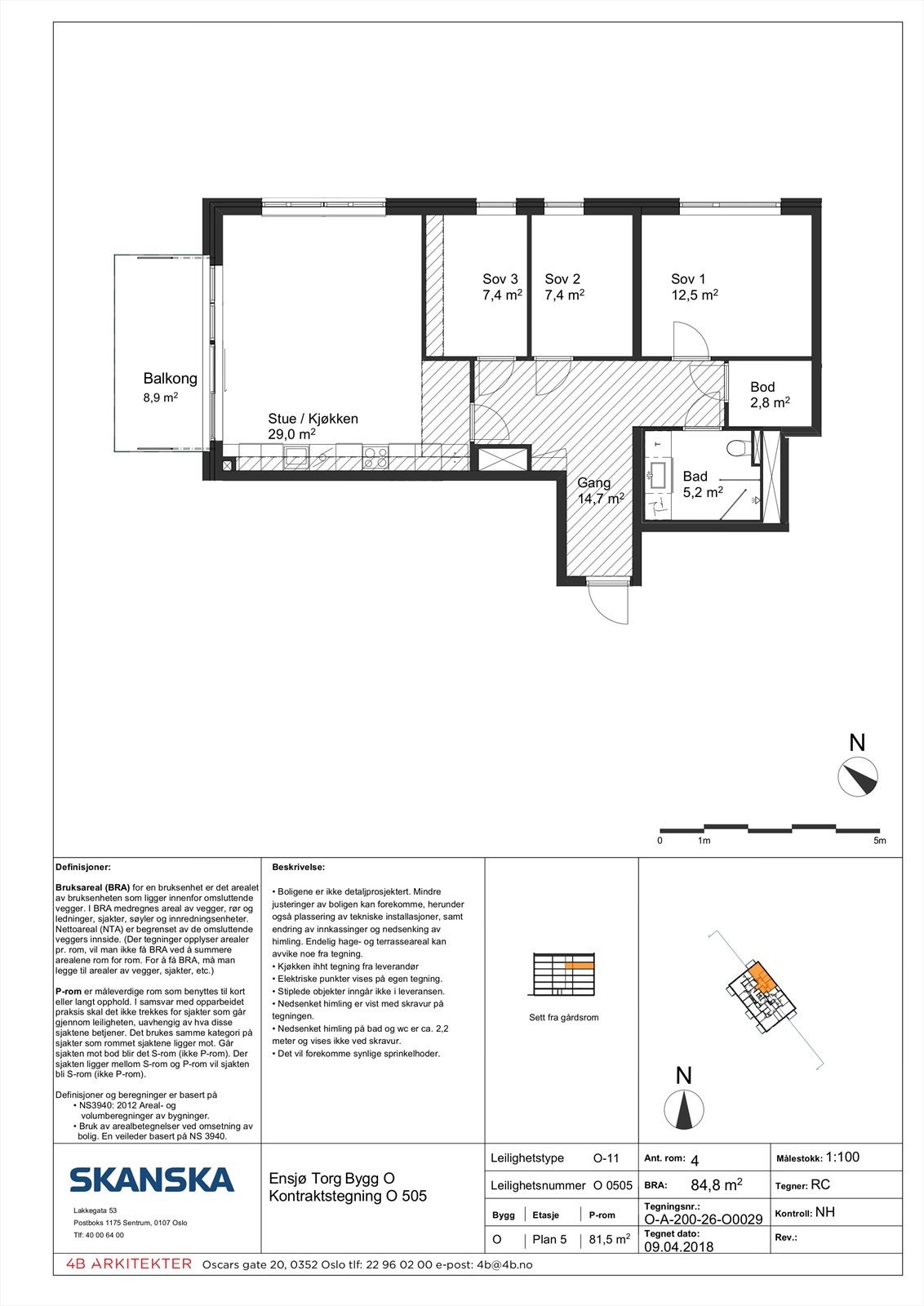
Stilren og lekker 3R hjørneleilighet med høy standard | Stor balkong på 9 m² | Vannbåren gulvvarme | Garasjeopsjon m. el
Prisantydning8 500 000 kr
Nøkkelinfo
- Boligtype
- Leilighet
- Eieform
- Eier (Selveier)
- Soverom
- 2
- Internt bruksareal
- 85 m² (BRA-i)
- Bruksareal
- 90 m²
- Eksternt bruksareal
- 5 m² (BRA-e)
- Balkong/Terrasse
- 9 m² (TBA)
- Etasje
- 5
- Byggeår
- 2020
- Energimerking
- B - Mørkegrønn
- Rom
- 3
- Tomteareal
- 1 610 m² (eiet)
Fasiliteter
Balkong/Terrasse
Barnevennlig
Bredbåndstilknytning
Garasje/P-plass
Heis
Kjæledyr tillatt
Kabel-TV
Offentlig vann/kloakk
Parkett
Rolig
Sentralt
Vaktmester-/vektertjeneste
Lademulighet
Balansert ventilasjon
Visning
søndag, 01. februar
14:30 – 15:30
mandag, 02. februar
17:30 – 18:30
Vi har påmelding til alle våre visninger. Dette gjør at eiendomsmegleren kan planlegge godt og gi personlig oppfølging til hver enkelt som kommer. For deg som vurderer å kjøpe bolig, betyr dette en mer ryddig og tilrettelagt visningsopplevelse. Påmelding og avmelding gjøres enkelt, og du er også velkommen til å ta kontakt med megleren i forkant dersom du har noe du lurer på.
VisningspåmeldingOm boligen
Velkommen til Rolf Hofmos gate 6,
Dette er et stilrent og moderne hjem i et nyere bygg fra 2020. Leiligheten holder høy standard og har attraktiv beliggenhet på hjørnet, noe som gir spesielt gode lysforhold. Planløsningen er helt optimal med naturlig soneinndeling og gode møbleringsmuligheter. Fra allrommet er det utgang til en stor balkong på 9 m².
Opsjon på kjøp av garasjeplass med lader i lukket anlegg. Pris kr. 500.000 + omk.
- Stor, velholdt og lekker hjørneleilighet i 5. etasje
- Balansert ventilasjon og vannbåren gulvvarme
- Opprinnelig tiltenkt som 4-roms
- Påkostet kjøkken med kjøkkenøy
- Luftige soverom med gode garderobeløsninger
- Spesialtilpasset garderobe i entréen
- Praktisk innvendig bod og kjellerbod
- T-bane, butikker, caféer, apotek og treningssenter rett i nærheten
Dette er et stilrent og moderne hjem i et nyere bygg fra 2020. Leiligheten holder høy standard og har attraktiv beliggenhet på hjørnet, noe som gir spesielt gode lysforhold. Planløsningen er helt optimal med naturlig soneinndeling og gode møbleringsmuligheter. Fra allrommet er det utgang til en stor balkong på 9 m².
Opsjon på kjøp av garasjeplass med lader i lukket anlegg. Pris kr. 500.000 + omk.
- Stor, velholdt og lekker hjørneleilighet i 5. etasje
- Balansert ventilasjon og vannbåren gulvvarme
- Opprinnelig tiltenkt som 4-roms
- Påkostet kjøkken med kjøkkenøy
- Luftige soverom med gode garderobeløsninger
- Spesialtilpasset garderobe i entréen
- Praktisk innvendig bod og kjellerbod
- T-bane, butikker, caféer, apotek og treningssenter rett i nærheten
NB: Knappen for å vise hele beskrivelsen har kun en visuell effekt.
NB: Knappen for å vise hele beskrivelsen har kun en visuell effekt.
Salgsoppgaven beskriver vesentlig og lovpålagt informasjon om eiendommen
Se komplett salgsoppgaveNyttige lenker
Nærområdet
Emera eiendomsmegling
Annonseinformasjon
| FINN-kode | 447527882 |
|---|---|
| Sist endret | 26. jan. 2026 14:45 |
| Referanse | EMERA2.25229 |
Annonsene kan være mangelfulle i forhold til lovpålagt opplysningsplikt. Før bindende avtale inngås oppfordres interessenter til å innhente komplett informasjon fra meglerforetaket, selger eller utleier.
























































