Bildegalleri

Nordvik ved Jørgen Nyhus har gleden av å presentere Slagenveien 78d og dette innholdsrike og pene rekkehuset. Fotograf: Magik.
Trudvang / Solvang
Lys, romslig og pent rekkehus med bl.a. 3 soverom, 2 stuer, 2 bad og garasje | sentralt og barnevennlig
Prisantydning3 800 000 kr
Nøkkelinfo
- Boligtype
- Rekkehus
- Eieform
- Andel
- Soverom
- 3
- Internt bruksareal
- 132 m² (BRA-i)
- Bruksareal
- 150 m²
- Eksternt bruksareal
- 18 m² (BRA-e)
- Balkong/Terrasse
- 68 m² (TBA)
- Byggeår
- 1982
- Energimerking
- D - Rød
- Rom
- 3
- Tomteareal
- 19 917 m² (festet)
- Festeavgift
- 39 970 kr
Fasiliteter
Balkong/Terrasse
Barnevennlig
Bredbåndstilknytning
Garasje/P-plass
Offentlig vann/kloakk
Peis/Ildsted
Rolig
Sentralt
Turterreng
Lademulighet
Visning
søndag, 08. februar
15:30 – 16:15
Alle våre visninger har påmelding. På denne måten sikrer vi at megler har god oversikt og tid til å imøtekomme alle interessenter. Meld deg på visning ved å trykke på lenken visningspåmelding.
VisningspåmeldingOm boligen
Slagenveien 78 D er en romslig og arealeffektiv rekkehusleilighet m/attraktiv beliggenhet i populære og hyggelige Trudvanglia. Området er svært sentralt, samtidig som det byr på rolige og trivelige omgivelser.
Boligen har kort gangavstand til det meste hverdagen krever, som skoler, barnehager, idrettsanlegg, flotte turområder, togstasjon og Tønsberg sentrum. Dagligvarebutikk ligger like i nærheten, og det er trygge sykkel- og gangveier hele veien inn til sentrum.
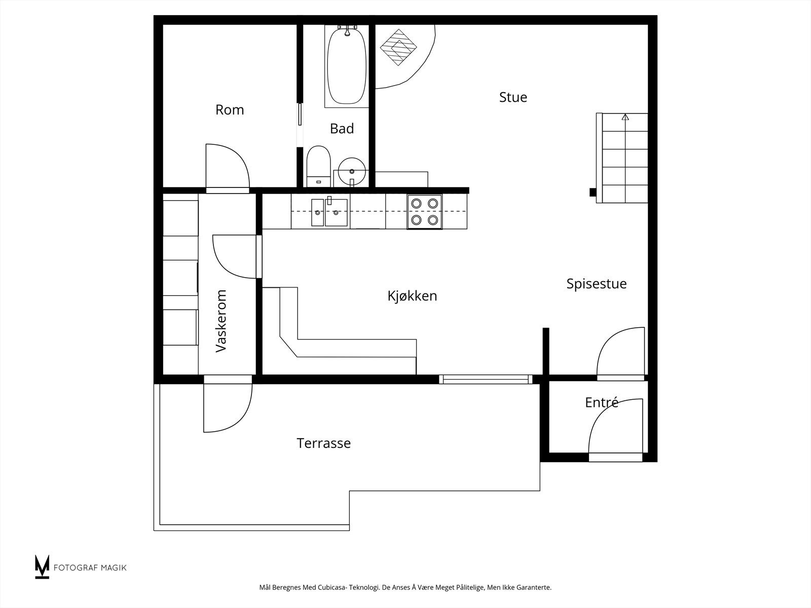
Leiligheten går over to plan og har en gjennomtenkt planløsning m/bl.a. to stuer, to bad og tre soverom. Boligen holder en normalt god standard og fremstår i lyse, moderne fargetoner med et gjennomgående godt helhetsinntrykk.
Parkering skjer enkelt i egen garasje eller på to biloppstillingsplasser rett utenfor inngangspartiet.
Boligen har kort gangavstand til det meste hverdagen krever, som skoler, barnehager, idrettsanlegg, flotte turområder, togstasjon og Tønsberg sentrum. Dagligvarebutikk ligger like i nærheten, og det er trygge sykkel- og gangveier hele veien inn til sentrum.
Leiligheten går over to plan og har en gjennomtenkt planløsning m/bl.a. to stuer, to bad og tre soverom. Boligen holder en normalt god standard og fremstår i lyse, moderne fargetoner med et gjennomgående godt helhetsinntrykk.
Parkering skjer enkelt i egen garasje eller på to biloppstillingsplasser rett utenfor inngangspartiet.
NB: Knappen for å vise hele beskrivelsen har kun en visuell effekt.
NB: Knappen for å vise hele beskrivelsen har kun en visuell effekt.
Salgsoppgaven beskriver vesentlig og lovpålagt informasjon om eiendommen
Se komplett salgsoppgaveNyttige lenker
Nærområdet
Nordvik Tønsberg
Annonseinformasjon
| FINN-kode | 447524213 |
|---|---|
| Sist endret | 03. feb. 2026 12:01 |
| Referanse | 25-0001/26 |
Annonsene kan være mangelfulle i forhold til lovpålagt opplysningsplikt. Før bindende avtale inngås oppfordres interessenter til å innhente komplett informasjon fra meglerforetaket, selger eller utleier.



























































