Bildegalleri

Fredrik Christoffersen presenterer: Bordalsvegen 15! Foto: Magnus Røisland
Edland - Vågslid
Enebolig med alt på én flate - 3 soverom - Bad fra ca. 2009 - Garasjebygg m/bod og verksted
Prisantydning1 600 000 kr
Nøkkelinfo
- Boligtype
- Enebolig
- Eieform
- Eier (Selveier)
- Soverom
- 3
- Internt bruksareal
- 110 m² (BRA-i)
- Bruksareal
- 149 m²
- Eksternt bruksareal
- 39 m² (BRA-e)
- Balkong/Terrasse
- 34 m² (TBA)
- Etasje
- 1
- Byggeår
- 1975
- Energimerking
- E - Oransje
- Tomteareal
- 2 189 m² (eiet)
Fasiliteter
Alpinanlegg
Balkong/Terrasse
Barnevennlig
Garasje/P-plass
Hage
Peis/Ildsted
Rolig
Utsikt
Bademulighet
Turterreng
Visning
lørdag, 31. januar
13:00 – 14:00
For å delta på visning, ber vi om at du melder deg på. Da sikrer vi at du får nødvendig informasjon og at det er satt av tilstrekkelig med tid. Kontakt megler dersom annet tidspunkt ønskes. Husk å lese salgsoppgaven før visningen, så du stiller forberedt. NB!!! Visning utgår dersom det ikke er noen påmeldte innen kl 12:00 dagen før visning!
Ønsker du kun å bli holdt orientert, kan du fra eiendommens hjemmeside få varsel om solgtpris, eller kontakte megler.
VisningspåmeldingOm boligen
Fin enebolig med alt på én flate beliggende i Vågslid i Vinje kommune med fjell og vakker natur. Det er kort vei til skianlegg, langrennsløyper og flotte turområder hele året.
Pent bad fra ca. 2009 med dusjkabinett og servantinnredning med skuffer og skap. Det er belegg på gulv med gulvvarme, våtromsplater på vegg og takess i himling.
Kjøkkeninnredning fra ca. 2005 med heltre fronter, heltre benkeplate og rikelig med lagringsplass og arbeidsflater. Kjøkkenet er i en åpen løsning mot stue og spisestue.
Boligen inneholder:
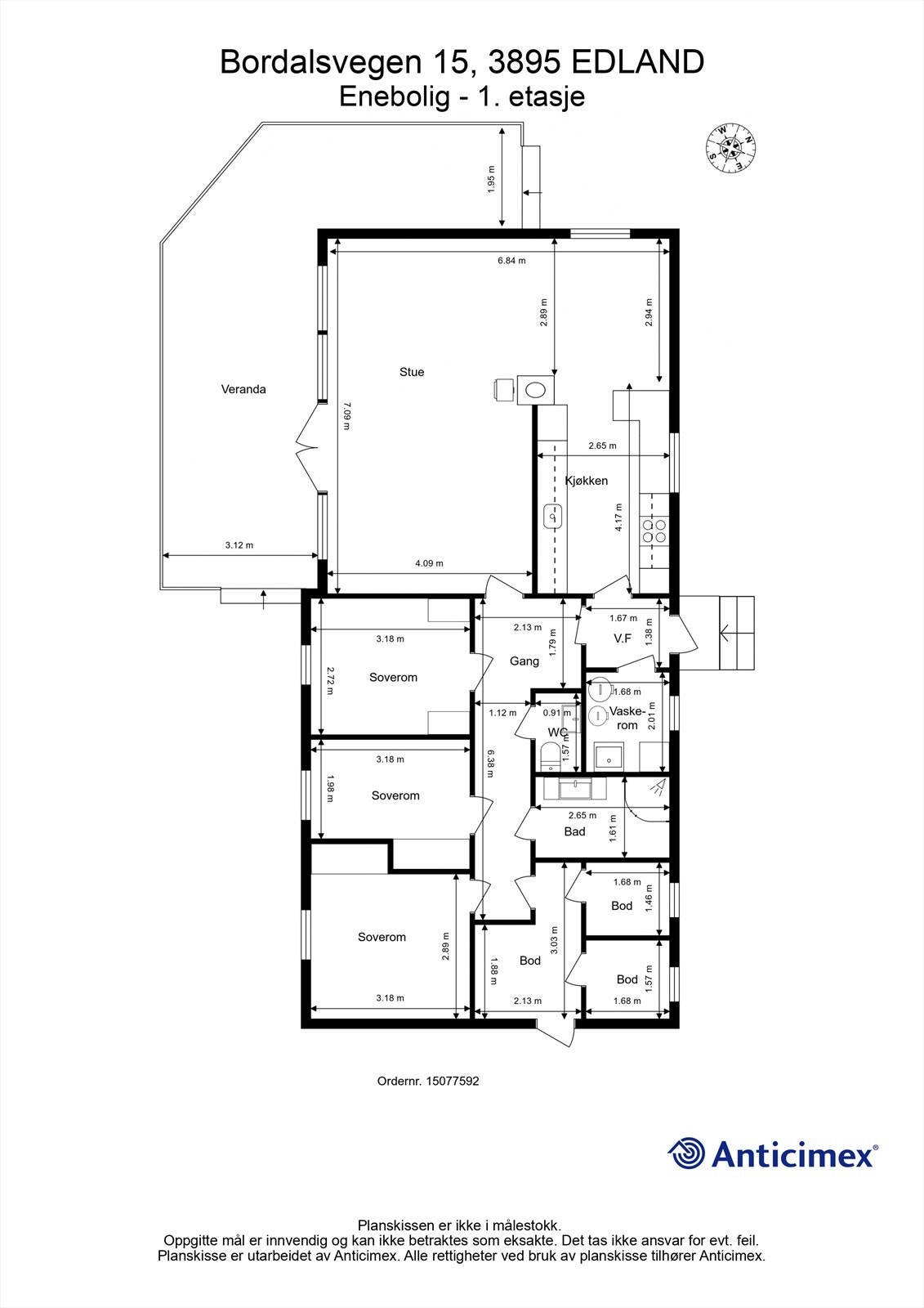
Vindfang, vaskerom, gang, tre soverom, tre boder, toalett, bad, stue og kjøkken.
I tillegg er det en garasjebygning med garasjeplass, bod og verksted.
Pent bad fra ca. 2009 med dusjkabinett og servantinnredning med skuffer og skap. Det er belegg på gulv med gulvvarme, våtromsplater på vegg og takess i himling.
Kjøkkeninnredning fra ca. 2005 med heltre fronter, heltre benkeplate og rikelig med lagringsplass og arbeidsflater. Kjøkkenet er i en åpen løsning mot stue og spisestue.
Boligen inneholder:
Vindfang, vaskerom, gang, tre soverom, tre boder, toalett, bad, stue og kjøkken.
I tillegg er det en garasjebygning med garasjeplass, bod og verksted.
NB: Knappen for å vise hele beskrivelsen har kun en visuell effekt.
NB: Knappen for å vise hele beskrivelsen har kun en visuell effekt.
Salgsoppgaven beskriver vesentlig og lovpålagt informasjon om eiendommen
Se komplett salgsoppgaveNyttige lenker
Nærområdet
Krogsveen Skien
Verdien av en god megler.
Annonseinformasjon
| FINN-kode | 447522993 |
|---|---|
| Sist endret | 29. jan. 2026 14:46 |
| Referanse | KR26.25106 |
Annonsene kan være mangelfulle i forhold til lovpålagt opplysningsplikt. Før bindende avtale inngås oppfordres interessenter til å innhente komplett informasjon fra meglerforetaket, selger eller utleier.











































