Bildegalleri

Velkommen til Liv Molvigs allé 3!
Værste/Byhaven
Attraktiv og moderne 3-roms fra 2024 med balkong mot syd/vest | IN-ordning
Prisantydning4 150 000 kr
Nøkkelinfo
- Boligtype
- Leilighet
- Eieform
- Andel
- Soverom
- 2
- Internt bruksareal
- 64 m² (BRA-i)
- Bruksareal
- 69 m²
- Eksternt bruksareal
- 5 m² (BRA-e)
- Balkong/Terrasse
- 8 m² (TBA)
- Etasje
- 4
- Byggeår
- 2024
- Energimerking
- A - Lysegrønn
- Rom
- 3
- Tomteareal
- 1 550 m² (eiet)
Fasiliteter
Barnevennlig
Balkong/Terrasse
Kabel-TV
Heis
Offentlig vann/kloakk
Parkett
Turterreng
Utsikt
Vaktmester-/vektertjeneste
Sentralt
Bredbåndstilknytning
Moderne
Rolig
Balansert ventilasjon
Om boligen
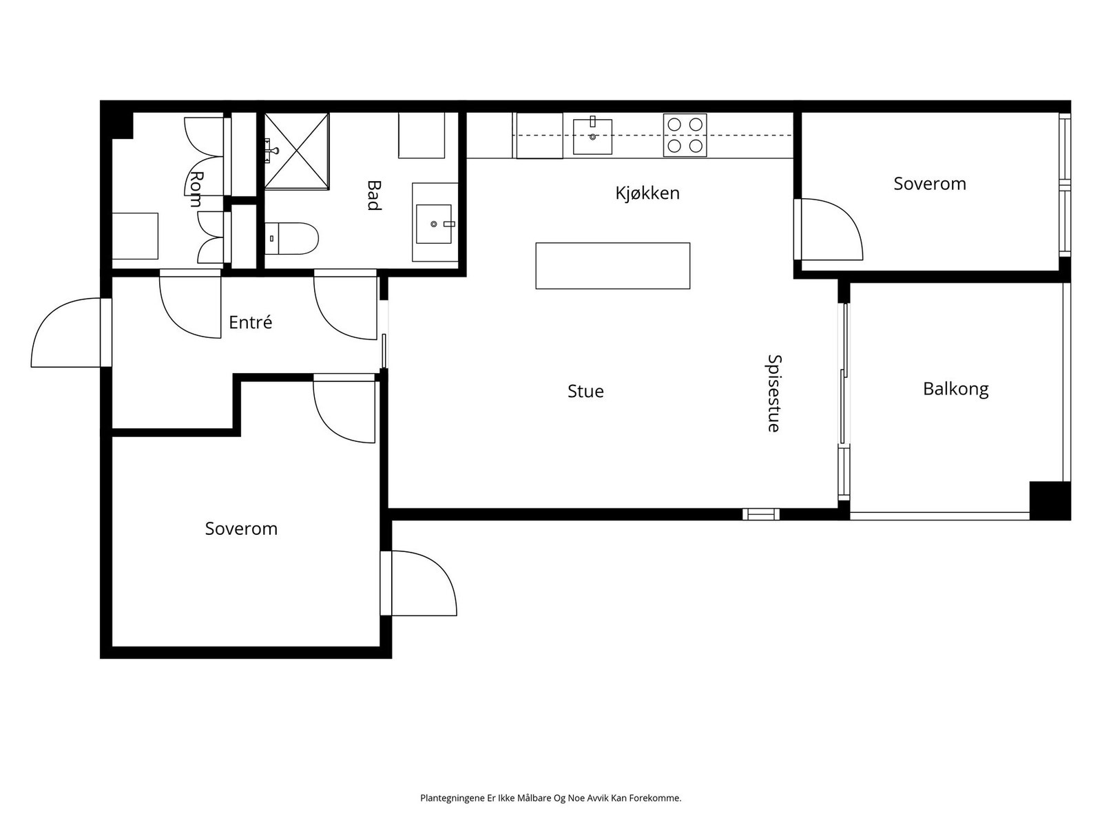
Moderne og lettstelt leilighet fra 2024 beliggende i 4. etasje i populære Byhaven på Værste. Leiligheten har en gjennomtenkt planløsning med åpen stue- og kjøkkenløsning, to soverom, bad, entré og bod. Boligen fremstår med lyse og tidsriktige overflater, gjennomgående parkettgulv og flislagt bad.
Boligen disponerer et internt bruksareal på 64 kvm, samt ekstern bod på ca. 5 kvm og en balkong på ca. 8 kvm som gir gode uteoppholdsmuligheter.
Eiendommen ligger sentralt og attraktivt til i et urbant og moderne boligområde med kort vei til butikker, serveringssteder, dagligvare, helsetjenester, stadion og høyskole. Værstetorvet og Matværste ligger i umiddelbar nærhet, og det er gangavstand til Fredrikstad sentrum via gangbro. Enkel adkomst til gratis byferge som knytter området til Gamlebyen og øvrige deler av byen.
Området byr på gode tur-, rekreasjons- og fritidstilbud, med nærhet til både grøntområder, sjø, skjærgård og badestrender.
Boligen disponerer et internt bruksareal på 64 kvm, samt ekstern bod på ca. 5 kvm og en balkong på ca. 8 kvm som gir gode uteoppholdsmuligheter.
Eiendommen ligger sentralt og attraktivt til i et urbant og moderne boligområde med kort vei til butikker, serveringssteder, dagligvare, helsetjenester, stadion og høyskole. Værstetorvet og Matværste ligger i umiddelbar nærhet, og det er gangavstand til Fredrikstad sentrum via gangbro. Enkel adkomst til gratis byferge som knytter området til Gamlebyen og øvrige deler av byen.
Området byr på gode tur-, rekreasjons- og fritidstilbud, med nærhet til både grøntområder, sjø, skjærgård og badestrender.
NB: Knappen for å vise hele beskrivelsen har kun en visuell effekt.
NB: Knappen for å vise hele beskrivelsen har kun en visuell effekt.
Salgsoppgaven beskriver vesentlig og lovpålagt informasjon om eiendommen
Se komplett salgsoppgaveNyttige lenker
Nærområdet

PrivatMegleren Sarpsborg
Kun det beste på dine vegne
Annonseinformasjon
| FINN-kode | 447513084 |
|---|---|
| Sist endret | 09. feb. 2026 14:12 |
| Referanse | 193250249 |
Annonsene kan være mangelfulle i forhold til lovpålagt opplysningsplikt. Før bindende avtale inngås oppfordres interessenter til å innhente komplett informasjon fra meglerforetaket, selger eller utleier.
































